1508 Hedrick Drive
Melbourne, FL 32901
MLS #: 1059290
Property Type: Residential
Beds: 4
Full Baths: 3.00
List Date: 10-10-2025
Year Built: 1957
2,088 Sq. Ft.
Zoning: Residential
Property Description
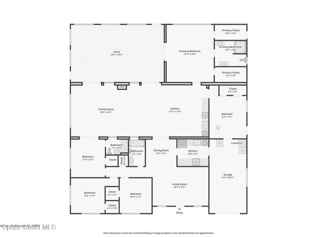
Spacious 4-bedroom, 3-bath concrete block home offering 2, 088 square feet of living space on a 0.2-acre lot. This unique property features a flexible floor plan with a primary kitchen plus hookups for a secondary kitchenette--perfect for multi-generational living or guest accommodations. The roof is approximately 5 years old, and recent updates include a new electrical panel and durable laminate flooring throughout. Enjoy energy savings with window A/C units that allow for cooling specific areas as needed. The home also includes a one-car garage, a double-wide driveway, and an additional bonus room (not under A/C) connected to the laundry area, offering even more versatility. Step outside to a large screened lanai overlooking a spacious backyard filled with mature, productive fruit trees. Floor plan available upon request.
Interior Features
Built-in Features, Ceiling Fan(s), Open Floorplan, Primary Downstairs, Walk-In Closet(s)
Equipment / Appliances
Dishwasher, Electric Cooktop, Gas Range, Microwave, Refrigerator
Street
Hedrick Drive
County
Brevard
Listing Status
Active
Home Style
Ranch
Floor
Tile, Vinyl
Tax Year
2023
Pool
No
Private Pool
No
Utilities
Cable Available
Additional Rooms
Bedroom 2, Bedroom 3, Bedroom 4, Bedroom 5, Dining Room, Family Room, Kitchen, Living Room, Primary Bedroom
Waterfront
No
ZipCode
Subdivision
Magnolia Manor
Construction
Stucco
Roof Type
Shingle
Tax Amount
$677.48
Fireplace
Wood Burning
Furnishings
Unfurnished
Parking
Attached, Off Street
HOA Dues
$0.00
PDF Downloads
1508 Hedrick DriveMelbourne, FL 32901
This listing is courtesy of Redfin Corp..

Real Estate and Luxury homes in Melbourne Beach, Merritt Island, Cocoa Beach, Lansing Island, Tortoise Island, Vero Beach, Barefoot Bay, Cape Canaveral, Cocoa, Grant Valkaria, Indialantic, Indian Harbour Beach, Malabar, Melbourne, Palm Bay, Rockledge, Satellite Beach, Titusville, West Melbourne and surrounding areas in Brevard and Central Florida.
Property Listing Data contained within this site is the property of Brevard MLS and is provided for consumers looking to purchase real estate. Any other use is prohibited. We are not responsible for errors and omissions on this web site. All information contained herein should be deemed reliable but not guaranteed, all representations are approximate, and individual verification is recommended.