S Singleton Avenue
Titusville, FL 32796
MLS #: 1059542
Property Type: Vacantland
List Date: 10-14-2025
0 Sq. Ft.
Property Description
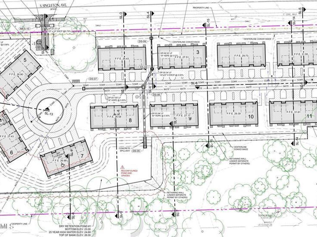
Approved for 44 multifamily condo units! Demand for housing continues to expand in the Titusville and surrounding areas. Units are 3 bedroom, 2.5 bath, 1 car garage appealing to both end-users and investors. Units are arranged in 11 buildings of 4 units each in a townhouse-style format, and were designed to be able to build to scale the site as desired. Ideally situated in Titusville, FL, near the Indian River, Kennedy Space Center, and SpaceX launch facilities. Titusville is experiencing increased demand due to the resurgence of the space industry and continued population growth. Excellent resale or rental prospects with demand from aerospace professionals and retires.
S Singleton AvenueTitusville, FL 32796
This listing is courtesy of Fathom Realty FL, LLC.

Real Estate and Luxury homes in Melbourne Beach, Merritt Island, Cocoa Beach, Lansing Island, Tortoise Island, Vero Beach, Barefoot Bay, Cape Canaveral, Cocoa, Grant Valkaria, Indialantic, Indian Harbour Beach, Malabar, Melbourne, Palm Bay, Rockledge, Satellite Beach, Titusville, West Melbourne and surrounding areas in Brevard and Central Florida.
Property Listing Data contained within this site is the property of Brevard MLS and is provided for consumers looking to purchase real estate. Any other use is prohibited. We are not responsible for errors and omissions on this web site. All information contained herein should be deemed reliable but not guaranteed, all representations are approximate, and individual verification is recommended.