1471 Lavender Drive
Melbourne, FL 32940
MLS #: 1026856
Property Type: Vacantland
List Date: 10-11-2024
0 Sq. Ft.
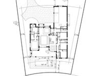
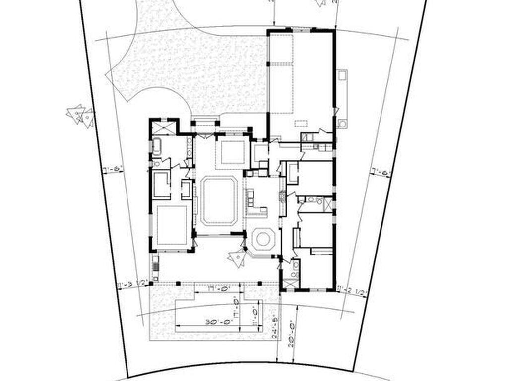
Property Description
In recent years, the planned community of Viera ranked in the Top 10 Master Planned Communities in the nation. This is a .32 Acre Lot in Aripeka Phase 2 on a pond. The proposed 4/3/3 floor plan shown was designed specifically for this lot. It is copyrighted by the builder and may be transferred to a new owner if desired, trimming time from the design phase of your build. This is an excellent location with easy access to Viera shops and restaurants to the north, as well as close to The King Center for Performing Arts, Costco, and more to the south. The wooded areas throughout this upscale neighborhood in Viera's southern village are being carefully preserved, retaining a more natural setting, as the developer and builder work around the existing beauty of the land. Drive by is ok.
1471 Lavender DriveMelbourne, FL 32940
This listing is courtesy of Newton Real Estate Group.

Real Estate and Luxury homes in Melbourne Beach, Merritt Island, Cocoa Beach, Lansing Island, Tortoise Island, Vero Beach, Barefoot Bay, Cape Canaveral, Cocoa, Grant Valkaria, Indialantic, Indian Harbour Beach, Malabar, Melbourne, Palm Bay, Rockledge, Satellite Beach, Titusville, West Melbourne and surrounding areas in Brevard and Central Florida.
Property Listing Data contained within this site is the property of Brevard MLS and is provided for consumers looking to purchase real estate. Any other use is prohibited. We are not responsible for errors and omissions on this web site. All information contained herein should be deemed reliable but not guaranteed, all representations are approximate, and individual verification is recommended.