7823 Loren Cove Drive
Melbourne, FL 32940
MLS #: 1034417
Property Type: Residential
Beds: 3
Full Baths: 2.00
List Date: 01-16-2025
Year Built: 2018
1,669 Sq. Ft.
Zoning: Residential
Property Description
Garden view privacy with easy access to Publix at Addison. No carpeting anywhere! Chef's dream kitchen with dry bar, wine/beverage refrigerator and kitchen island (all soft close). Luxuriously tall doorways, crown molding trim and ceiling fans throughout make this property airy and full of natural light on this end multiplex unit. Larger square footage makes it more spacious than most others in-line (especially large kitchen, primary shower and primary closet). The extended screened in lanai with pavers and dwarf mango tree make it both beautiful and peaceful. Privacy and convenience with screened in main entryway. Addison Clubhouse (fees apply) is a few minutes away with resort style community amenity with adult only pool and kids pool, pickleball courts, social activities, access to fitness equipment and community rooms. Loren Cove has small workout room and community room close by. Exterior maintained by Artemis Lifestyles including Pest Control and Landscape Maintenance.
Exterior Features
Impact Windows, Storm Shutters
Interior Features
Breakfast Bar, Built-in Features, Ceiling Fan(s), Entrance Foyer, His and Hers Closets, Kitchen Island, Pantry, Primary Bathroom -Tub with Separate Shower, Split Bedrooms, Walk-In Closet(s)
Equipment / Appliances
Convection Oven, Dishwasher, Disposal, Electric Water Heater, Gas Oven, Gas Range, Ice Maker, Microwave, Plumbed For Ice Maker, Refrigerator, Tankless Water Heater, Wine Cooler
Street
Loren Cove Drive
County
Brevard
Listing Status
Active
Home Style
Half Duplex
Floor
Tile
Tax Year
2024
Pool
No
Private Pool
No
Utilities
Cable Connected, Electricity Connected, Natural Gas Connected, Sewer Connected, Water Connected
Additional Rooms
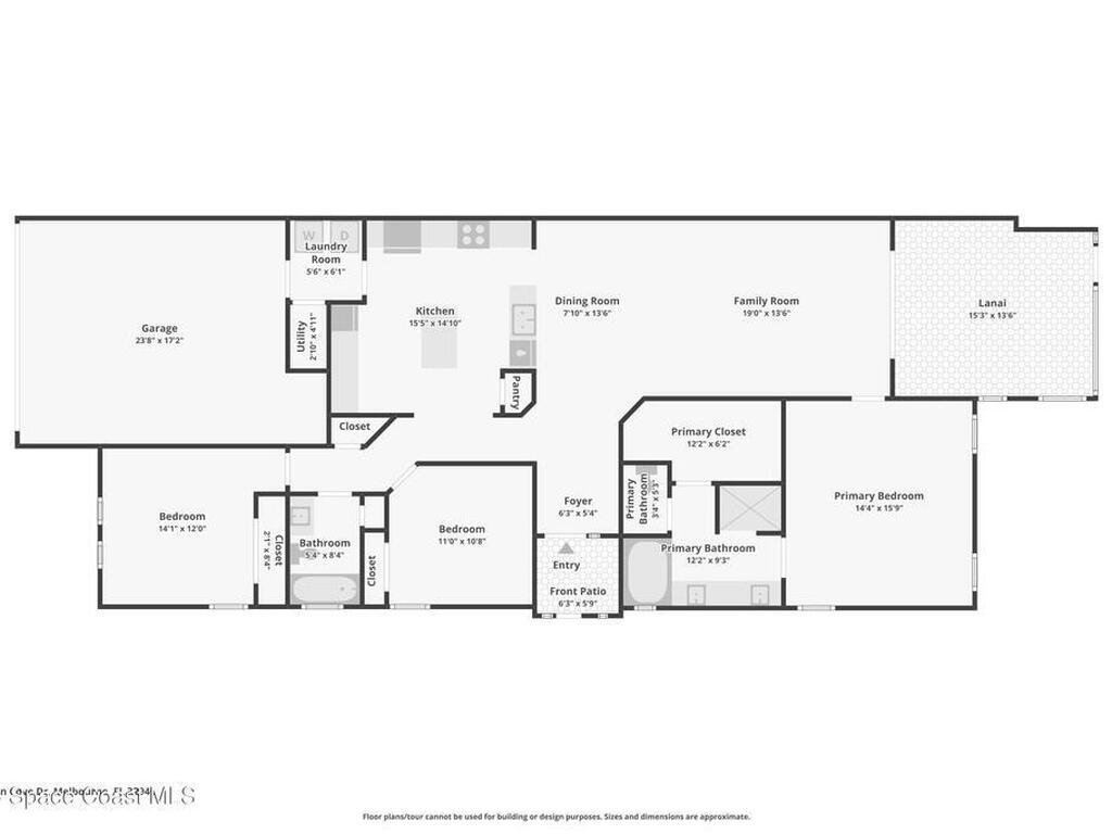
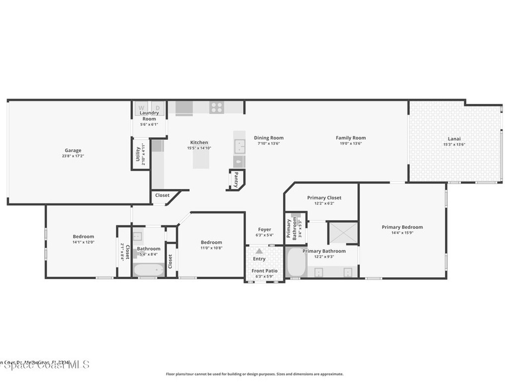
Bedroom 2, Bedroom 3, Dining Room, Florida Room, Kitchen, Laundry, Living Room, Other Room, Primary Bathroom, Primary Bedroom
Waterfront
No
ZipCode
Subdivision
Loren Cove
Construction
Concrete, Stucco
Roof Type
Shingle
Tax Amount
$4,836.17
Furnishings
Partially
Home View
City, Other, Trees/Woods
Parking
Additional Parking, Attached, Garage, Garage Door Opener, Parking Lot
HOA Dues
$0.00
7823 Loren Cove DriveMelbourne, FL 32940
This listing is courtesy of One Sotheby's International.

Real Estate and Luxury homes in Melbourne Beach, Merritt Island, Cocoa Beach, Lansing Island, Tortoise Island, Vero Beach, Barefoot Bay, Cape Canaveral, Cocoa, Grant Valkaria, Indialantic, Indian Harbour Beach, Malabar, Melbourne, Palm Bay, Rockledge, Satellite Beach, Titusville, West Melbourne and surrounding areas in Brevard and Central Florida.
Property Listing Data contained within this site is the property of Brevard MLS and is provided for consumers looking to purchase real estate. Any other use is prohibited. We are not responsible for errors and omissions on this web site. All information contained herein should be deemed reliable but not guaranteed, all representations are approximate, and individual verification is recommended.