2075 Highway A1a Highway #2202b
Indian Harbour Beach, FL 32937
MLS #: 1043499
Property Type: Residential
Beds: 3
Full Baths: 3.00
Half Baths: 1
List Date: 04-17-2025
Year Built: 2004
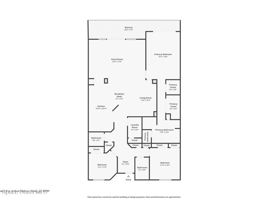
2,225 Sq. Ft.
Property Description
Priced below value, this oceanfront condo is filled with beautiful morning sun, creating a light, bright, and uplifting atmosphere to start each day. The association has completed the SIRS/Milestone inspection, and thanks to the meticulously maintained complex, no repairs were required. In addition, the community maintains strong reserve funding, offering buyers valuable peace of mind and minimizing the likelihood of future special assessments--an important advantage for long-term ownership and investment. This condo also offers breathtaking, unobstructed ocean, beach, and dune views from the living area and primary bedroom, both with private balconies. Second-floor location adds everyday convenience--easy dog walks, carrying groceries, and quick access without waiting for the 2023 elevator. Features include tiled main areas, engineered hardwood in the primary suite, His & Her walk-in closets, an open kitchen, A/C 3-4 yo w/infrared air filter & smart thermostat. New year, New home!
Exterior Features
Balcony, Storm Shutters
Interior Features
Breakfast Bar, Breakfast Nook, Ceiling Fan(s), Eat-in Kitchen, Entrance Foyer, His and Hers Closets, Open Floorplan, Primary Bathroom -Tub with Separate Shower, Smart Thermostat, Split Bedrooms, Walk-In Closet(s)
Equipment / Appliances
Dishwasher, Disposal, Dryer, Electric Oven, Electric Range, Electric Water Heater, Microwave, Refrigerator, Washer
Street
Highway A1a Highway
County
Brevard
Listing Status
Active
Floor
Carpet, Tile, Wood
Tax Year
2024
Pool
No
Private Pool
No
Utilities
Cable Connected, Electricity Available, Natural Gas Not Available, Sewer Connected, Water Connected
Additional Rooms
Bathroom 1, Bathroom 3, Bedroom 1, Bedroom 2, Great Room, Kitchen, Laundry, Living Room, Other Room, Primary Bathroom, Primary Bedroom
Waterfront
Yes
Water Type
ZipCode
Subdivision
Somerset Oceanfront Condo
Construction
Block, Concrete, Stucco
Roof Type
Membrane
Tax Amount
$10,700.90
Furnishings
Negotiable
Home View
Beach, Ocean, Water
Parking
Assigned, Parking Lot, Underground
HOA Dues
$0.00
2075 Highway A1a Highway #2202bIndian Harbour Beach, FL 32937
This listing is courtesy of NextHome Space Coast Experts.

Real Estate and Luxury homes in Melbourne Beach, Merritt Island, Cocoa Beach, Lansing Island, Tortoise Island, Vero Beach, Barefoot Bay, Cape Canaveral, Cocoa, Grant Valkaria, Indialantic, Indian Harbour Beach, Malabar, Melbourne, Palm Bay, Rockledge, Satellite Beach, Titusville, West Melbourne and surrounding areas in Brevard and Central Florida.
Property Listing Data contained within this site is the property of Brevard MLS and is provided for consumers looking to purchase real estate. Any other use is prohibited. We are not responsible for errors and omissions on this web site. All information contained herein should be deemed reliable but not guaranteed, all representations are approximate, and individual verification is recommended.