1144 Monroe Avenue
St. Cloud, FL 34769
MLS #: 1057410
Property Type: Residential
Beds: 3
Full Baths: 2.00
List Date: 09-17-2025
Year Built: 1986
1,230 Sq. Ft.
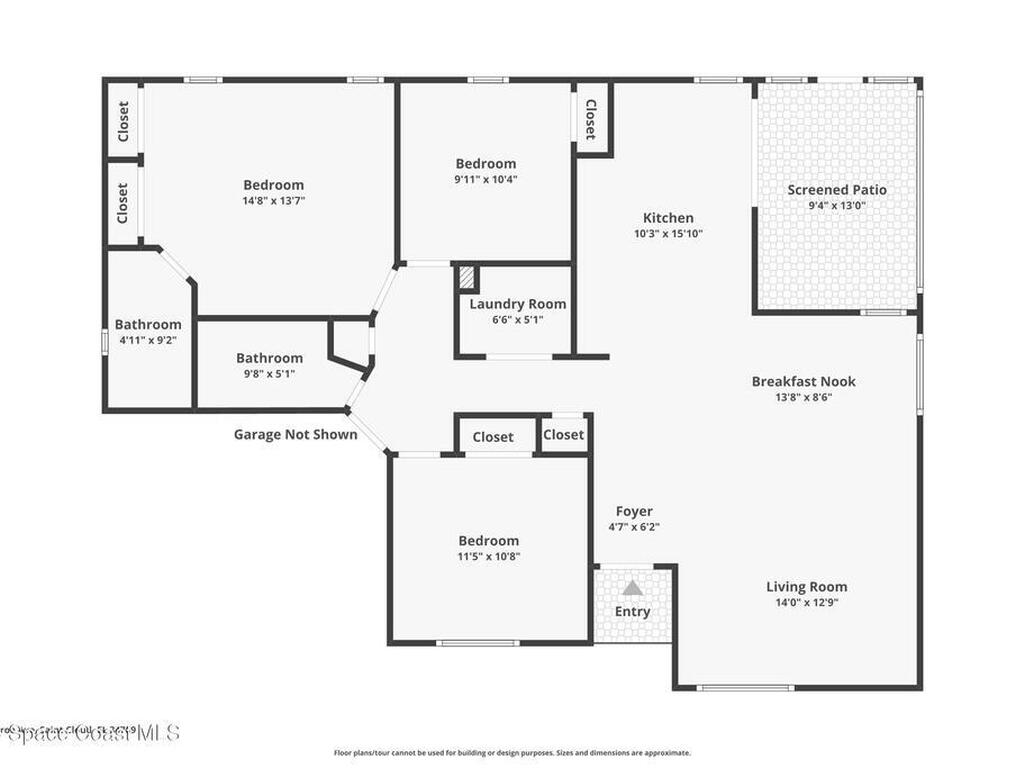
Property Description
Welcome to this charming 3-bedroom, 2-bathroom corner-lot home nestled in the community of Palamar Oaks Village in St. Cloud. Step inside to an inviting open floor plan with vaulted ceilings, tile flooring, and abundant natural light. The cozy wood-burning fireplace creates the perfect focal point for gatherings or quiet evenings at home. The kitchen offers newer 2024/2025 stainless steel appliances, a breakfast bar, and sliding glass doors that lead to a screened patio overlooking the backyard -- ideal for enjoying morning coffee or evening breezes. All bedrooms are conveniently situated on one side of the home, with the primary suite featuring its own bathroom and a stand-alone shower and California closet. Just down the hall, you'll find two additional guest bedrooms--one featuring a custom California closet--along with a full bathroom. Additional highlights include a 2018 roof, 2021 A/C, 2025 Water Heater, 2-car garage and an indoor laundry room for added convenience.
Interior Features
Breakfast Bar, Built-in Features, Ceiling Fan(s), Open Floorplan, Primary Bathroom - Shower No Tub, Vaulted Ceiling(s)
Equipment / Appliances
Dishwasher, Disposal, Dryer, Electric Range, Electric Water Heater, Microwave, Refrigerator, Washer, Water Softener Owned
Street
Monroe Avenue
County
Osceola
Listing Status
Active
Home Style
Other, Traditional
Floor
Laminate, Tile
Tax Year
2024
Pool
No
Private Pool
No
Utilities
Sewer Connected, Water Connected
Additional Rooms
Kitchen, Living Room, Primary Bedroom
Waterfront
No
ZipCode
Subdivision
None
Construction
Brick
Roof Type
Shingle
Tax Amount
$1,661.12
Fireplace
Wood Burning
Furnishings
Unfurnished
Parking
Garage, Garage Door Opener
HOA Dues
$0.00
1144 Monroe AvenueSt. Cloud, FL 34769
This listing is courtesy of EXP Realty LLC.

Real Estate and Luxury homes in Melbourne Beach, Merritt Island, Cocoa Beach, Lansing Island, Tortoise Island, Vero Beach, Barefoot Bay, Cape Canaveral, Cocoa, Grant Valkaria, Indialantic, Indian Harbour Beach, Malabar, Melbourne, Palm Bay, Rockledge, Satellite Beach, Titusville, West Melbourne and surrounding areas in Brevard and Central Florida.
Property Listing Data contained within this site is the property of Brevard MLS and is provided for consumers looking to purchase real estate. Any other use is prohibited. We are not responsible for errors and omissions on this web site. All information contained herein should be deemed reliable but not guaranteed, all representations are approximate, and individual verification is recommended.