8255 N Wickham Road #101 A&B
Melbourne, FL 32940
MLS #: 1057582
Property Type: Commercial
List Date: 09-19-2025
Year Built: 2000
0 Sq. Ft.
7,920 Total Sq. Ft.
Property Description
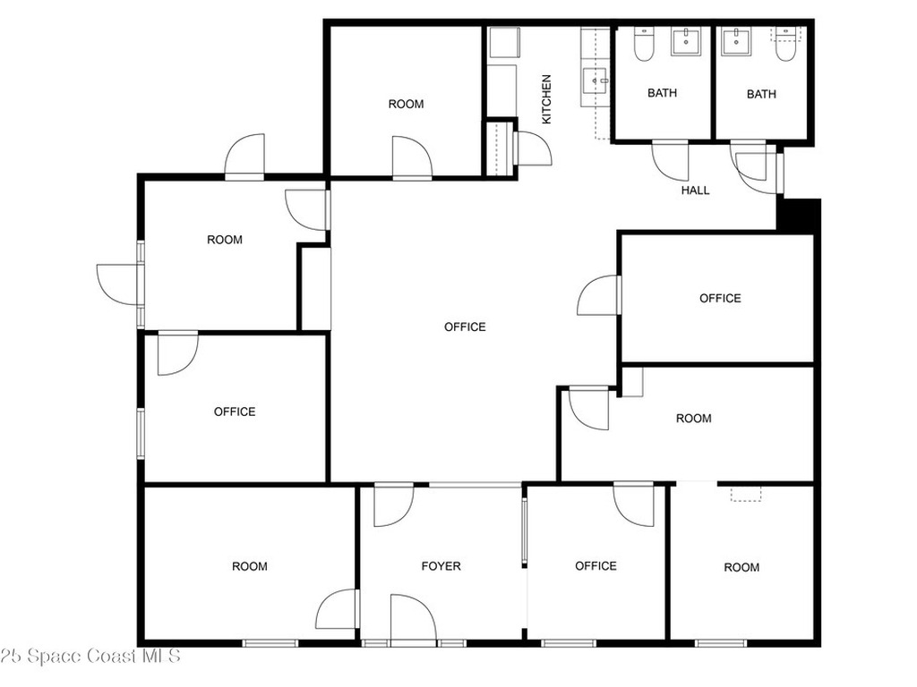
Beautifully remodeled Viera/Suntree office space available for lease featuring 1, 895 sq. ft. with excellent Wickham Road exposure! This property offers pylon signage with LED, two private entrances, and two restrooms. Conveniently located just off I-95, surrounded by shopping and dining. The space is move-in ready, making it an ideal opportunity for any professional office use. Maximize your business potential in this high-growth area! Minutes from the Brevard County Government Center, School Board Building, and Viera Courthouse. Floor plan attached in the listing. Call today to schedule your showing!
PDF Downloads
8255 N Wickham Road #101 A&BMelbourne, FL 32940
This listing is courtesy of Waterman Real Estate Inc..

Real Estate and Luxury homes in Melbourne Beach, Merritt Island, Cocoa Beach, Lansing Island, Tortoise Island, Vero Beach, Barefoot Bay, Cape Canaveral, Cocoa, Grant Valkaria, Indialantic, Indian Harbour Beach, Malabar, Melbourne, Palm Bay, Rockledge, Satellite Beach, Titusville, West Melbourne and surrounding areas in Brevard and Central Florida.
Property Listing Data contained within this site is the property of Brevard MLS and is provided for consumers looking to purchase real estate. Any other use is prohibited. We are not responsible for errors and omissions on this web site. All information contained herein should be deemed reliable but not guaranteed, all representations are approximate, and individual verification is recommended.