326 Haley Court
Melbourne, FL 32940
MLS #: 1057733
Property Type: Residential
Beds: 2
Full Baths: 2.00
List Date: 09-22-2025
Year Built: 2001
1,658 Sq. Ft.
Zoning: Single Family
Property Description
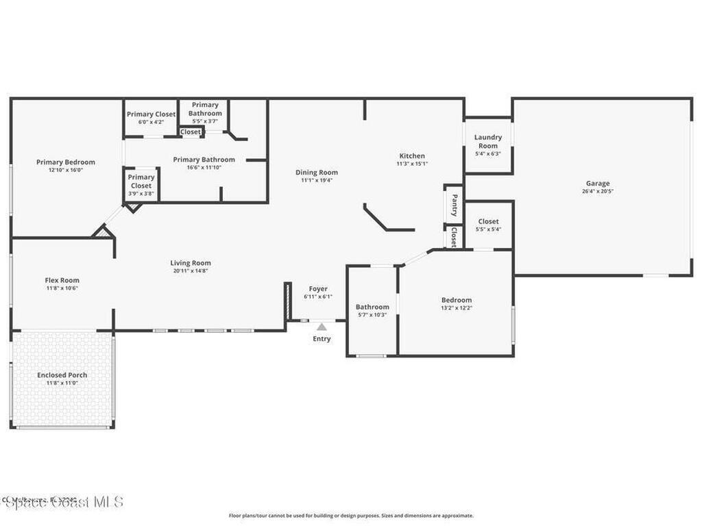
Fabulous Duplex in SUNTREE'S most desired gated neighborhood of MAGNOILIA POINTE. Located in the Cul-De-Sac of Haley Ct you will love the serene location! Features include 2 large bedrooms, 2 full baths, a flex room and screened porch for enjoying the wildlife and views of the water. Roof was completed 9/2018, A/C replaced 5/2019, gas hot water heater and gas dryer. Oversized 2 car garage and CBS construction add to the desirability. Your monthly maintenance includes lawn care, paint and roofs! Wonderful Community Pool just walking distance. Don't miss this opportunity! This enclave is located just minutes from everything you need to call this home.
Interior Features
Breakfast Bar, Ceiling Fan(s), Eat-in Kitchen, Entrance Foyer, Open Floorplan, Solar Tube(s), Split Bedrooms
Equipment / Appliances
Dishwasher, Disposal, Dryer, Electric Range, Gas Water Heater, Microwave, Refrigerator, Washer
Street
Haley Court
County
Brevard
Listing Status
Active
Home Style
Half Duplex
Floor
Carpet, Tile
Tax Year
2023
Pool
No
Private Pool
No
Utilities
Cable Available, Electricity Available, Electricity Connected, Natural Gas Available, Natural Gas Connected, Sewer Available, Water Available, Water Connected
Waterfront
No
ZipCode
Subdivision
Magnolia Pointe Unit 2
Construction
Block, Stucco
Roof Type
Shingle
Tax Amount
$1,912.11
Furnishings
Unfurnished
Home View
Pond, Trees/Woods
Parking
Garage
HOA Dues
$0.00
326 Haley CourtMelbourne, FL 32940
This listing is courtesy of RE/MAX Aerospace Realty.

Real Estate and Luxury homes in Melbourne Beach, Merritt Island, Cocoa Beach, Lansing Island, Tortoise Island, Vero Beach, Barefoot Bay, Cape Canaveral, Cocoa, Grant Valkaria, Indialantic, Indian Harbour Beach, Malabar, Melbourne, Palm Bay, Rockledge, Satellite Beach, Titusville, West Melbourne and surrounding areas in Brevard and Central Florida.
Property Listing Data contained within this site is the property of Brevard MLS and is provided for consumers looking to purchase real estate. Any other use is prohibited. We are not responsible for errors and omissions on this web site. All information contained herein should be deemed reliable but not guaranteed, all representations are approximate, and individual verification is recommended.