7981 Bradwick Way
Melbourne, FL 32940
MLS #: 1058451
Property Type: Residential
Beds: 4
Full Baths: 3.00
List Date: 09-30-2025
Year Built: 1997
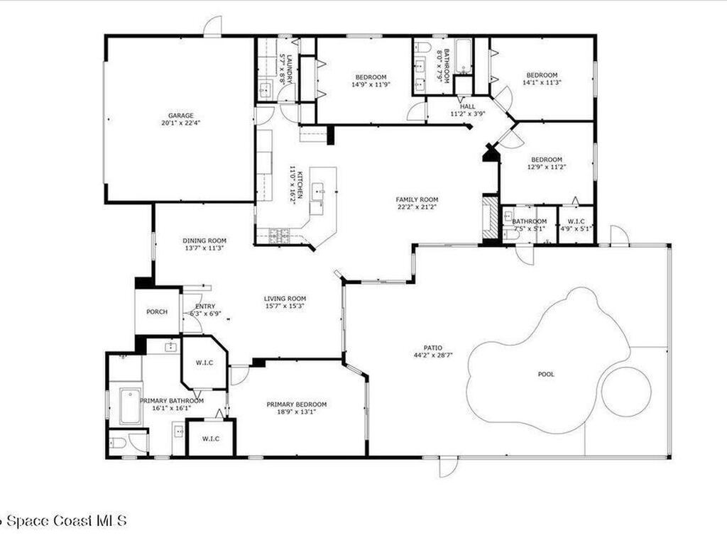
2,449 Sq. Ft.
Property Description
PRICE REDUCED AGAIN! MOTIVATED SELLER!! Wow take a look! All the work is done in this 4 bdrm/3 bath renovated home on the 8th TEE at the Baytree National Golf Course! Awesome view overlooking the heated pool & spa across the pond to the 8th tee! Spacious home with higher ceilings, open floor plan, split bedrms. All tile floors thruout! There is a long list of upgrades including recent (extra wide) paver driveway/patio and front entry! All newer windows (2 impact) the rest have accordion shutters. Window coverings are plantation shutters and wood blinds. The recently updated kitchen includes solid wood Shaker style cabinets and granite countertops w/granite backsplash with undermount lighting! Newer pendant lighting too. All newer gas 5 burner Cooktop, French door refrigerator with in-door ice & water, Wifi Self cleaning Double wall oven with convection & Air fryer built in! Newer OTR microwave, Garbage disposal & sink.
Exterior Features
Impact Windows, Storm Shutters
Interior Features
Ceiling Fan(s), Guest Suite, His and Hers Closets, Primary Bathroom - Tub with Shower, Split Bedrooms, Walk-In Closet(s)
Equipment / Appliances
Convection Oven, Dishwasher, Disposal, Double Oven, Dryer, Electric Oven, Electric Water Heater, Gas Cooktop, Ice Maker, Microwave, Refrigerator, Washer
Street
Bradwick Way
County
Brevard
Listing Status
Active
Home Style
Traditional
Tax Year
2024
Pool
Yes
Private Pool
Yes
Pool Description
Gas Heat, Heated, Pool Cover, Screen Enclosure
Utilities
Electricity Connected, Natural Gas Connected, Sewer Connected, Water Connected
Waterfront
Yes
Water Type
ZipCode
Subdivision
Baytree PUD Phase 1 Stage 1-5
Construction
Block, Stucco
Roof Type
Shingle
Tax Amount
$6,938.38
Fireplace
Other
Furnishings
Negotiable
Home View
Golf Course, Pond
Parking
Garage, Garage Door Opener
HOA Dues
$0.00
7981 Bradwick WayMelbourne, FL 32940
This listing is courtesy of RE/MAX Aerospace Realty.

Real Estate and Luxury homes in Melbourne Beach, Merritt Island, Cocoa Beach, Lansing Island, Tortoise Island, Vero Beach, Barefoot Bay, Cape Canaveral, Cocoa, Grant Valkaria, Indialantic, Indian Harbour Beach, Malabar, Melbourne, Palm Bay, Rockledge, Satellite Beach, Titusville, West Melbourne and surrounding areas in Brevard and Central Florida.
Property Listing Data contained within this site is the property of Brevard MLS and is provided for consumers looking to purchase real estate. Any other use is prohibited. We are not responsible for errors and omissions on this web site. All information contained herein should be deemed reliable but not guaranteed, all representations are approximate, and individual verification is recommended.