950 Vanessa Court #F
Port Orange, FL 32127
MLS #: 1058503
Property Type: Residential
Beds: 3
Full Baths: 3.00
Half Baths: 1
List Date: 10-01-2025
Year Built: 1988
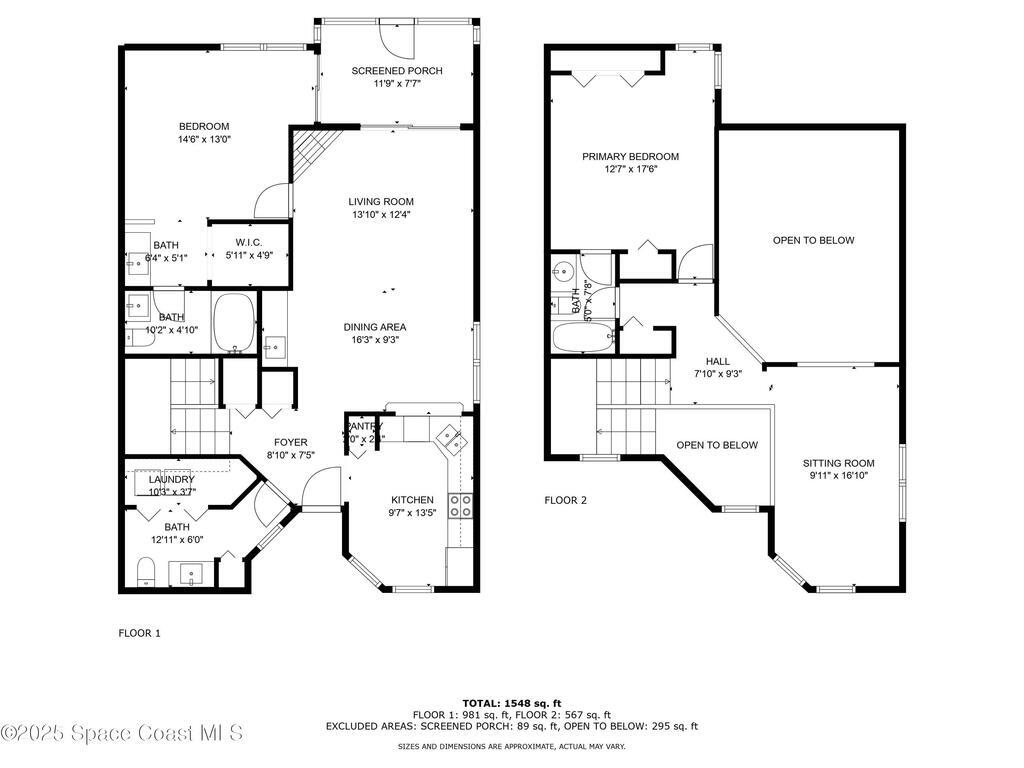
1,453 Sq. Ft.
Zoning: Residential
Property Description
PRICED TO SELL! Discover the charm of this beautiful end-unit townhouse, nestled in a serene waterside setting. Step into the welcoming foyer, which leads to a convenient updated half-bath/laundry room. The spacious kitchen flows seamlessly into the large, vaulted dining and family room, where new flooring, baseboards and painting create a fresh, inviting ambiance. Entertain from the built in bar with sink then sit by the cozy electric fireplace or unwind on the private lanai, newly screened and carpeted. This home offers two spacious bedrooms and a versatile loft that can serve as a third bedroom. The first-floor master suite features a walk-in closet, updated his-and-her vanities, new flooring, and direct access to the lanai. With numerous upgrades throughout, this home combines modern convenience with tranquil living. Newly painted interior, garage door/opener.
Interior Features
Breakfast Bar, Ceiling Fan(s), Eat-in Kitchen, Entrance Foyer, Guest Suite, Open Floorplan, Other, Pantry, Primary Bathroom - Tub with Shower, Primary Downstairs, Skylight(s), Smart Thermostat, Split Bedrooms, Vaulted Ceiling(s), Walk-In Closet(s), Wet Bar
Equipment / Appliances
Dishwasher, Disposal, Dryer, Electric Range, Electric Water Heater, Microwave, Refrigerator, Washer
Street
Vanessa Court
County
Volusia
Listing Status
Active
Home Style
Contemporary
Floor
Carpet, Laminate, Tile
Tax Year
2024
Pool
No
Private Pool
No
Utilities
Cable Available, Electricity Available, Sewer Connected, Water Connected
Additional Rooms
Bathroom 1, Bathroom 2, Bathroom 3, Bedroom 2, Dining Room, Family Room, Kitchen, Laundry, Loft, Other Room, Primary Bedroom
Waterfront
No
ZipCode
Subdivision
None
Construction
Frame, Wood Siding
Roof Type
Shingle
Tax Amount
$3,096.74
Fireplace
Electric
Furnishings
Unfurnished
Home View
Trees/Woods, Water
Parking
Attached, Garage, Garage Door Opener
HOA Dues
$0.00
950 Vanessa Court #FPort Orange, FL 32127
This listing is courtesy of Waterman Real Estate, Inc..

Real Estate and Luxury homes in Melbourne Beach, Merritt Island, Cocoa Beach, Lansing Island, Tortoise Island, Vero Beach, Barefoot Bay, Cape Canaveral, Cocoa, Grant Valkaria, Indialantic, Indian Harbour Beach, Malabar, Melbourne, Palm Bay, Rockledge, Satellite Beach, Titusville, West Melbourne and surrounding areas in Brevard and Central Florida.
Property Listing Data contained within this site is the property of Brevard MLS and is provided for consumers looking to purchase real estate. Any other use is prohibited. We are not responsible for errors and omissions on this web site. All information contained herein should be deemed reliable but not guaranteed, all representations are approximate, and individual verification is recommended.