9525 Southern Garden Circle
Altamonte Springs, FL 32714
MLS #: 1059595
Property Type: Residential
Beds: 4
Full Baths: 3.00
Half Baths: 1
List Date: 10-14-2025
Year Built: 1999
2,527 Sq. Ft.
Property Description
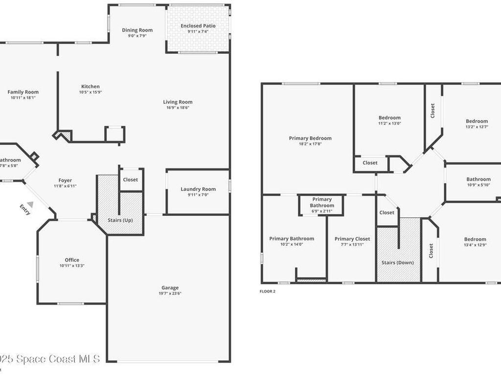
Located in the highly sought-after, gated community of Camden Club, this beautifully updated 2-story, 4 bed 2.5 bath home offers the perfect blend of comfort and style. Step inside to find ceramic tile and laminate flooring throughout, complemented by freshly painted walls. The updated kitchen is a dream, featuring granite countertops, wood cabinetry and a center island. Upstairs, retreat to the expansive primary suite, complete with a en-suite bath featuring a double vanity, garden tub, walk-in shower, and oversized walk-in closet. Three additional, generously sized bedrooms share a full bath. Enjoy the attractive amenities of this gated community, including a clean pool, fun playground, secure entrance, and lawn maintenance included--making everyday living effortless. Zoned for top-rated Seminole County schools minutes from Lake Lotus Park, RDV Sportsplex and major roadways I4, 414+ 429. Don't miss this opportunity to own a home in one of Central Florida's most desirable communities!
Interior Features
Breakfast Bar, Ceiling Fan(s), Kitchen Island, Pantry, Primary Bathroom -Tub with Separate Shower, Walk-In Closet(s)
Equipment / Appliances
Dishwasher, Electric Range, Microwave, Refrigerator
Street
Southern Garden Circle
County
Seminole
Listing Status
Active
Floor
Carpet, Tile, Vinyl
Pool
No
Private Pool
No
Utilities
Electricity Connected, Water Connected
Waterfront
No
ZipCode
Subdivision
None
Construction
Block
Tax Amount
$0.00
Furnishings
Unfurnished
Parking
Attached, Garage
HOA Dues
$0.00
PDF Downloads
9525 Southern Garden CircleAltamonte Springs, FL 32714
This listing is courtesy of Gallo Realty Group LLC.

Real Estate and Luxury homes in Melbourne Beach, Merritt Island, Cocoa Beach, Lansing Island, Tortoise Island, Vero Beach, Barefoot Bay, Cape Canaveral, Cocoa, Grant Valkaria, Indialantic, Indian Harbour Beach, Malabar, Melbourne, Palm Bay, Rockledge, Satellite Beach, Titusville, West Melbourne and surrounding areas in Brevard and Central Florida.
Property Listing Data contained within this site is the property of Brevard MLS and is provided for consumers looking to purchase real estate. Any other use is prohibited. We are not responsible for errors and omissions on this web site. All information contained herein should be deemed reliable but not guaranteed, all representations are approximate, and individual verification is recommended.