8761 Cocoa Court
Cape Canaveral, FL 32920
MLS #: 1059976
Property Type: Residential
Beds: 2
Full Baths: 3.00
Half Baths: 1
List Date: 10-18-2025
Year Built: 1980
1,192 Sq. Ft.
Property Description
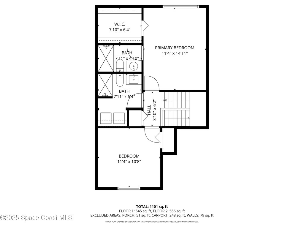
Perfect beachside getaway! This 2BR, 2.5 Bathroom townhouse is in the gated community of Ocean Woods. Easy care Townhouse with tile floor and laminate floors downstairs and engineered hardwood and tile floors upstairs. First floor has half bath, spacious kitchen, LR and eat-in kitchen and patio doors that lead to a large wood deck with beautiful oak trees perfect for entertaining. There is a fire pit, outdoor shower and accent lighting resulting in the back patio even more inviting and special. Upstairs you will find two bedrooms, 2 baths and a washer and dryer conveniently located between the two bedrooms. New roof in 2014, flat roof in 2019. 2.5 ton A/C from 2014 and new electrical panel with surge protection in 2016. This community has so much to offer from pickleball, tennis, two swimming pools (one for adults only), beach access, clubhouse, racquetball and a sauna. Come check it out!
Exterior Features
Fire Pit, Outdoor Shower
Interior Features
Breakfast Bar, Walk-In Closet(s)
Equipment / Appliances
Dishwasher, Dryer, Electric Oven, Electric Range, Electric Water Heater, Microwave, Refrigerator, Washer
Street
Cocoa Court
County
Brevard
Listing Status
Active
Home Style
Other
Floor
Tile, Wood
Tax Year
2023
Pool
No
Private Pool
No
Utilities
Cable Available, Electricity Connected, Water Available
Waterfront
No
ZipCode
Subdivision
Ocean Woods Stage 3-B
Construction
Block, Concrete, Other, Stucco
Roof Type
Other
Tax Amount
$0.00
Furnishings
Negotiable
Home View
Other
Parking
Carport
HOA Dues
$0.00
8761 Cocoa CourtCape Canaveral, FL 32920
This listing is courtesy of RE/MAX Elite.

Real Estate and Luxury homes in Melbourne Beach, Merritt Island, Cocoa Beach, Lansing Island, Tortoise Island, Vero Beach, Barefoot Bay, Cape Canaveral, Cocoa, Grant Valkaria, Indialantic, Indian Harbour Beach, Malabar, Melbourne, Palm Bay, Rockledge, Satellite Beach, Titusville, West Melbourne and surrounding areas in Brevard and Central Florida.
Property Listing Data contained within this site is the property of Brevard MLS and is provided for consumers looking to purchase real estate. Any other use is prohibited. We are not responsible for errors and omissions on this web site. All information contained herein should be deemed reliable but not guaranteed, all representations are approximate, and individual verification is recommended.