1416 Sun Terrace
Titusville, FL 32780
MLS #: 1060307
Property Type: Residential
Beds: 3
Full Baths: 2.00
List Date: 10-23-2025
Year Built: 1956
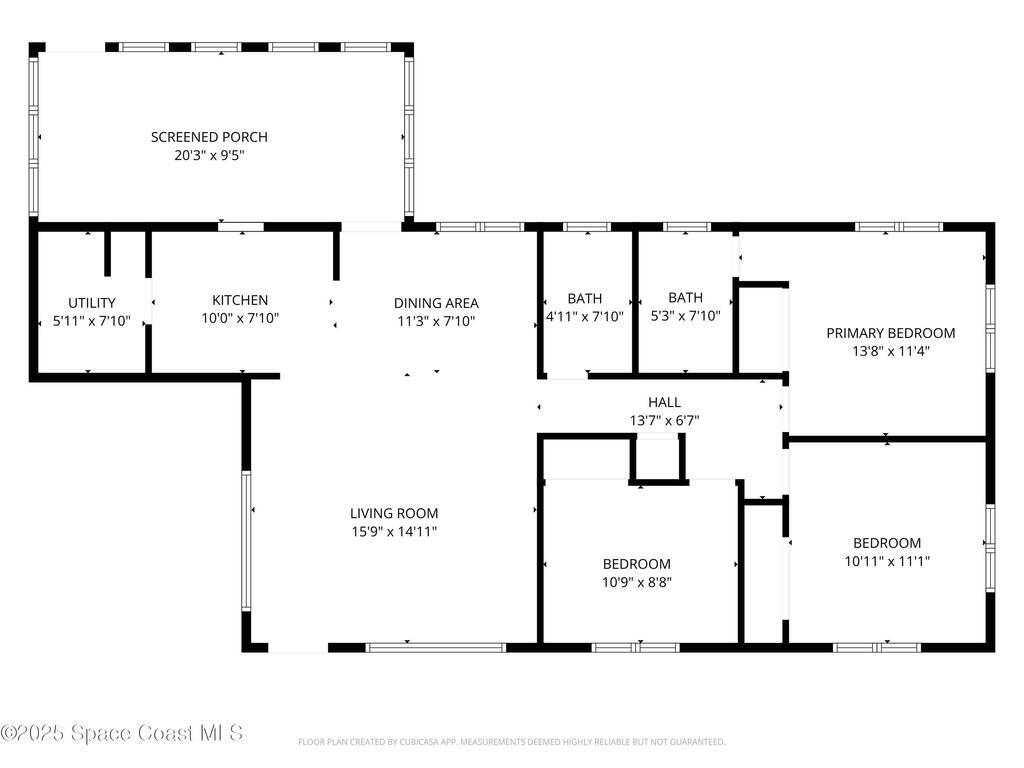
1,270 Sq. Ft.
Zoning: Residential
Property Description
Welcome to this beautifully landscaped home that perfectly combines comfort, convenience, and Florida living at its best.This charming property features hurricane-impact windows, a new 2024 AC system with updated ductwork, and a durable metal roof for long-lasting protection. The kitchen offers quartz countertops, soft-close cabinets and drawers, a large kitchen sink, and new piping in both the kitchen and laundry room.Additional updates include a 2023 water heater, washer (4 years old), and a new dryer. Step outside to enjoy a fenced backyard, complete with two storage sheds and an amazing 9x16 swim spa with jet current--perfect for exercise or relaxation. The custom-built locked stairs add both safety and style to this outdoor oasis.With its thoughtful updates, quality features, and inviting outdoor space, this home is ready for you to move in and start enjoying the Florida lifestyle. Many fruit trees!Located at the end of a dead-end road, this home offers tons of privacy!
Exterior Features
Impact Windows
Interior Features
Eat-in Kitchen, Primary Bathroom - Tub with Shower, Primary Downstairs
Equipment / Appliances
Dishwasher, Double Oven, Dryer, Electric Range, Electric Water Heater, Microwave, Plumbed For Ice Maker, Refrigerator, Washer
Street
Sun Terrace
County
Brevard
Listing Status
Active Under Contract
Home Style
Traditional
Floor
Other, Terrazzo
Tax Year
2025
Pool
No
Private Pool
No
Utilities
Cable Available, Electricity Connected, Sewer Connected, Water Connected
Additional Rooms
Bedroom 2, Bedroom 3, Dining Room, Florida Room, Kitchen, Laundry, Living Room, Primary Bathroom
Waterfront
No
ZipCode
Subdivision
Whispering Hills Golf Estates Addn No 1
Construction
Block, Concrete
Roof Type
Metal
Tax Amount
$1,796.05
Furnishings
Unfurnished
Home View
Trees/Woods
Parking
Attached Carport, Carport
HOA Dues
$0.00
PDF Downloads
1416 Sun TerraceTitusville, FL 32780
This listing is courtesy of EXP Realty, LLC.

Real Estate and Luxury homes in Melbourne Beach, Merritt Island, Cocoa Beach, Lansing Island, Tortoise Island, Vero Beach, Barefoot Bay, Cape Canaveral, Cocoa, Grant Valkaria, Indialantic, Indian Harbour Beach, Malabar, Melbourne, Palm Bay, Rockledge, Satellite Beach, Titusville, West Melbourne and surrounding areas in Brevard and Central Florida.
Property Listing Data contained within this site is the property of Brevard MLS and is provided for consumers looking to purchase real estate. Any other use is prohibited. We are not responsible for errors and omissions on this web site. All information contained herein should be deemed reliable but not guaranteed, all representations are approximate, and individual verification is recommended.