41 Derby Street
Cocoa, FL 32922
MLS #: 1060534
Property Type: Residential
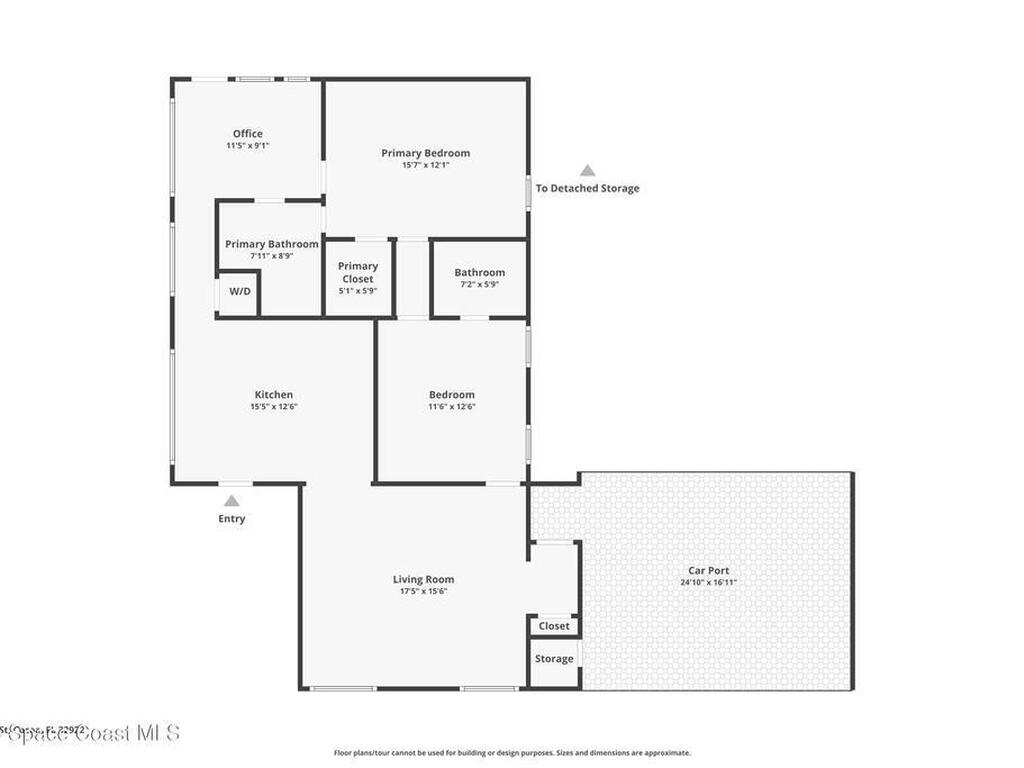
Beds: 2
Full Baths: 2.00
List Date: 10-26-2025
Year Built: 1922
1,325 Sq. Ft.
Zoning: Residential
Property Description
One of Cocoa Village's most distinctive homes, the ''Cement Bungalow'' was lovingly restored and reimagined with no detail overlooked. This complete frame-out renovation features all-new hurricane windows, electrical, plumbing, and insulation blending the character and nostalgia of a historic cottage with the comfort, efficiency, and peace of mind of modern construction. Every space showcases thoughtful craftsmanship and elegant design, from the expansive primary suite and inviting living areas to the gourmet kitchen and guest suite with private bath. The spacious double lot has meticulously maintained landscaping and includes a detached cottage with workshop, storage, greenhouse and an attached carport and spacious paver driveway. Enjoy the welcoming charm of the front porch or unwind on the private back porch complete with an outdoor soaking tub overlooking the garden. This home is just steps from Historic Cocoa Village, shopping, dining and the Indian River
Exterior Features
Courtyard, Impact Windows
Interior Features
Breakfast Bar, Ceiling Fan(s), Split Bedrooms, Walk-In Closet(s)
Street
Derby Street
County
Brevard
Listing Status
Active
Home Style
Historic
Floor
Wood
Tax Year
2025
Pool
No
Private Pool
No
Utilities
Cable Connected, Electricity Connected, Sewer Connected, Water Connected
Waterfront
No
ZipCode
Subdivision
Derbys Addn To Cocoa
Construction
Concrete, Stucco
Roof Type
Metal
Tax Amount
$2,459.50
Furnishings
Unfurnished
Parking
Attached Carport, Carport, RV Access/Parking
HOA Dues
$0.00
41 Derby StreetCocoa, FL 32922
This listing is courtesy of Atlantic Group Real Estate.

Real Estate and Luxury homes in Melbourne Beach, Merritt Island, Cocoa Beach, Lansing Island, Tortoise Island, Vero Beach, Barefoot Bay, Cape Canaveral, Cocoa, Grant Valkaria, Indialantic, Indian Harbour Beach, Malabar, Melbourne, Palm Bay, Rockledge, Satellite Beach, Titusville, West Melbourne and surrounding areas in Brevard and Central Florida.
Property Listing Data contained within this site is the property of Brevard MLS and is provided for consumers looking to purchase real estate. Any other use is prohibited. We are not responsible for errors and omissions on this web site. All information contained herein should be deemed reliable but not guaranteed, all representations are approximate, and individual verification is recommended.