413 N Indian River Drive
Cocoa, FL 32922
MLS #: 1060580
Property Type: Residential
Beds: 3
Full Baths: 3.00
List Date: 10-27-2025
Year Built: 2004
2,189 Sq. Ft.
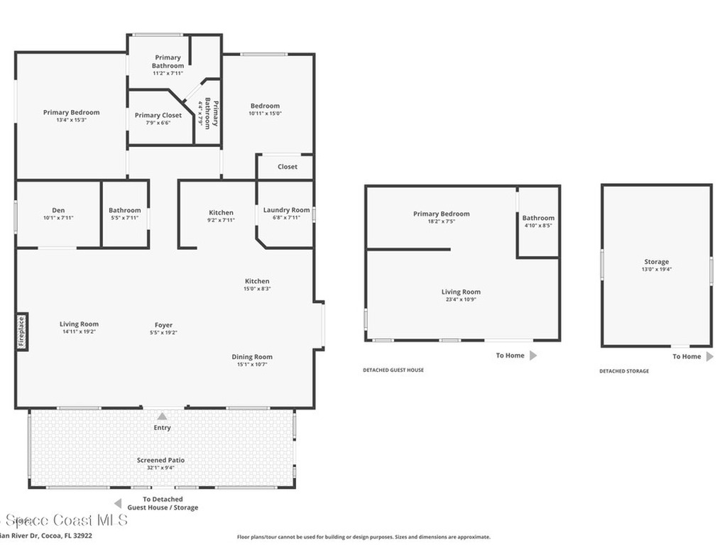
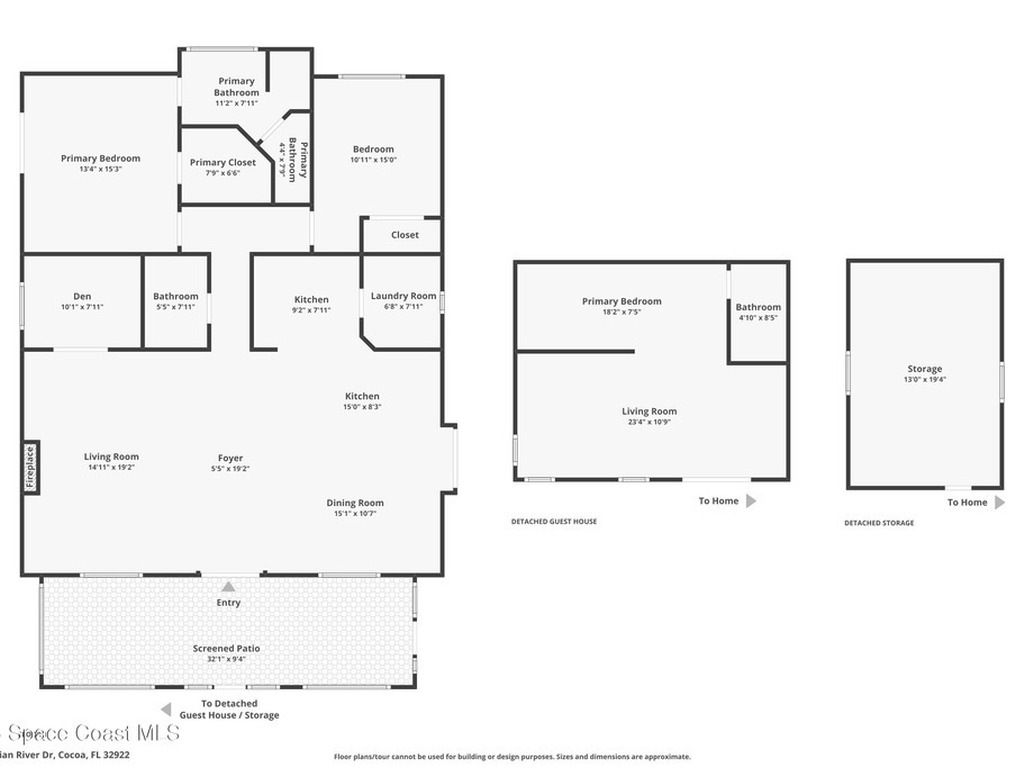
Property Description
A sensational custom home with a newly built guest cottage (ADU) and attached carport located just steps from Historic Cocoa Village. Enjoy sweeping views of the Intracoastal Waterway from both the main residence and the guest cottage. A newly constructed 100' dock offers an exceptional waterfront setting for entertaining, with the potential to extend an additional 50'. Inside, the designer kitchen features luxurious quartz countertops, stainless steel appliances, and architectural upgrades throughout. Custom built-ins and thoughtful finishes elevate every space. An expansive screened front porch creates an inviting outdoor living and dining area where you can relax and take in the river breezes. The property also features a fenced area perfect for pets, a large storage shed, magnificent side patio, and a sprawling front lawn with plenty of room for expansion. Experience the perfect blend of refined design, and water views all just outside of Historic Cocoa Village.
Exterior Features
Impact Windows
Interior Features
Breakfast Bar, Built-in Features, Ceiling Fan(s), Eat-in Kitchen, Open Floorplan, Vaulted Ceiling(s), Walk-In Closet(s)
Equipment / Appliances
Convection Oven, Dishwasher, Dryer, Electric Oven, Electric Water Heater, Induction Cooktop, Microwave, Refrigerator, Washer
Street
Indian River Drive
County
Brevard
Listing Status
Active
Home Style
Contemporary
Floor
Tile, Vinyl, Wood
Tax Year
2025
Pool
No
Private Pool
No
Utilities
Cable Connected, Sewer Connected, Water Connected
Waterfront
Yes
Water Type
ZipCode
Subdivision
None
Construction
Block, Composition Siding
Tax Amount
$0.00
Fireplace
Gas
Furnishings
Unfurnished
Home View
Intracoastal, River
Parking
Additional Parking, Carport, Detached Carport
HOA Dues
$0.00
413 N Indian River DriveCocoa, FL 32922
This listing is courtesy of Atlantic Group Real Estate.

Real Estate and Luxury homes in Melbourne Beach, Merritt Island, Cocoa Beach, Lansing Island, Tortoise Island, Vero Beach, Barefoot Bay, Cape Canaveral, Cocoa, Grant Valkaria, Indialantic, Indian Harbour Beach, Malabar, Melbourne, Palm Bay, Rockledge, Satellite Beach, Titusville, West Melbourne and surrounding areas in Brevard and Central Florida.
Property Listing Data contained within this site is the property of Brevard MLS and is provided for consumers looking to purchase real estate. Any other use is prohibited. We are not responsible for errors and omissions on this web site. All information contained herein should be deemed reliable but not guaranteed, all representations are approximate, and individual verification is recommended.