520 7th Square
Vero Beach, FL 32962
MLS #: 1061169
Property Type: Residential
Beds: 3
Full Baths: 3.00
List Date: 11-03-2025
Year Built: 2005
2,042 Sq. Ft.
Zoning: Condominium
Property Description
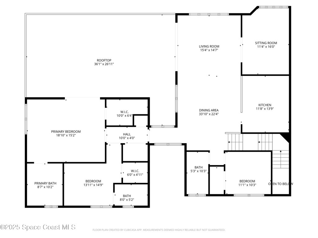
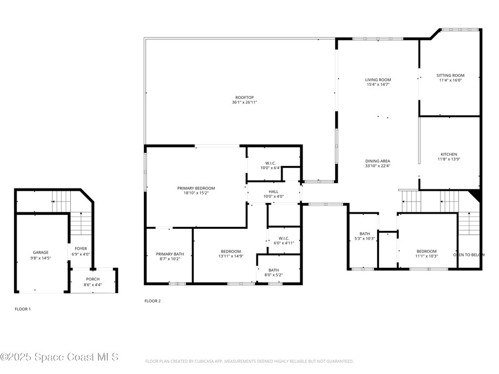
Perched just over 2, 200 sq ft, this elegant penthouse condo features 3 bedrooms, 3 baths, and a single-car garage, delivering a perfect balance of space and flow. Inside, discover a thoughtful layout with interior laundry for convenience and a den/office that adapts to work, study, or leisure. Large windows and sliding glass doors invite sunlight and invite seamless indoor-outdoor living. Step outside to a stunning 800+ sq ft patio that frames a beautiful water feature, providing serene, resort-like vistas from every angle. The residence sits just steps from the community pool, offering effortless relaxation, while easy access to US-1 puts shopping, dining, beaches, parks, and entertainment within reach. Premium touches include, upgraded lighting, walk-in closets and much more. This home is ideal for entertaining or quiet evenings at home, with a layout designed to maximize flow between the chef's kitchen, breakfast nook, and expansive great room.
Exterior Features
Balcony, Impact Windows
Interior Features
Ceiling Fan(s), Entrance Foyer, Open Floorplan, Primary Bathroom -Tub with Separate Shower, Walk-In Closet(s)
Equipment / Appliances
Dishwasher, Disposal, Dryer, Electric Range, Electric Water Heater, Microwave, Refrigerator, Washer
Street
7th Square
County
Indian River
Listing Status
Active
Home Style
Spanish
Floor
Carpet, Tile
Tax Year
2025
Pool
No
Private Pool
No
Utilities
Cable Connected, Electricity Connected, Sewer Connected, Water Connected
Additional Rooms
Bedroom 1, Bedroom 2, Bedroom 3, Den, Dining Room, Kitchen, Living Room, Other Room
Waterfront
No
ZipCode
Subdivision
None
Construction
Block, Stucco
Roof Type
Membrane, Tile
Tax Amount
$3,329.00
Furnishings
Furnished
Home View
Pond, Pool
Parking
Assigned, Attached, Garage, Gated
HOA Dues
$0.00
PDF Downloads
520 7th SquareVero Beach, FL 32962
This listing is courtesy of Keller Williams Rlty Vero Bch.

Real Estate and Luxury homes in Melbourne Beach, Merritt Island, Cocoa Beach, Lansing Island, Tortoise Island, Vero Beach, Barefoot Bay, Cape Canaveral, Cocoa, Grant Valkaria, Indialantic, Indian Harbour Beach, Malabar, Melbourne, Palm Bay, Rockledge, Satellite Beach, Titusville, West Melbourne and surrounding areas in Brevard and Central Florida.
Property Listing Data contained within this site is the property of Brevard MLS and is provided for consumers looking to purchase real estate. Any other use is prohibited. We are not responsible for errors and omissions on this web site. All information contained herein should be deemed reliable but not guaranteed, all representations are approximate, and individual verification is recommended.