1795 N Highway A1a #401
Indialantic, FL 32903
MLS #: 1061457
Property Type: Residential
Beds: 3
Full Baths: 3.00
List Date: 11-06-2025
Year Built: 2022
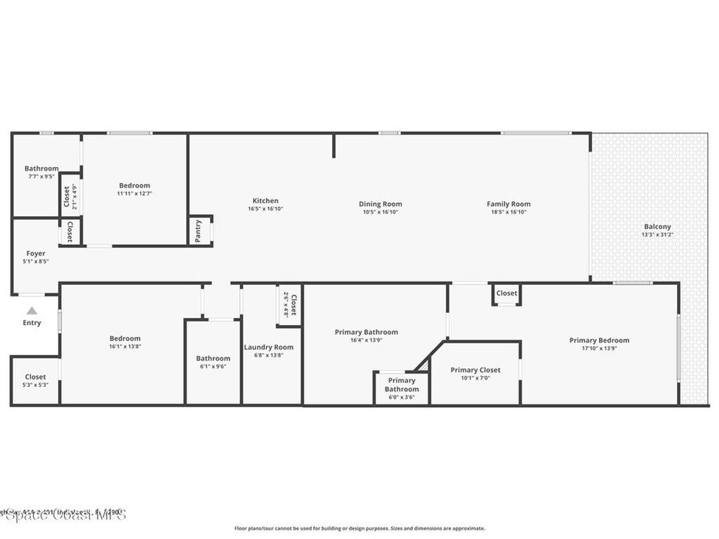
2,209 Sq. Ft.
Property Description
Built in 2022, this NE-corner condo delivers a modern beachfront lifestyle with unobstructed views of the ocean & rocket launches. Elevated 10' ceilings & floor-to-ceiling glass frame the horizon, while sliding doors open to a nearly 300 sq ft terrace that blurs the line between indoors & out. High-end finishes define every space, from custom cabinetry, quartz counters & stainless appliances in the kitchen to the custom bar/buffet at dining, built-in media center, window treatments & closet systems. Impact-rated glass, 1 3/4 solid core interior doors & concrete block walls provide peace of mind, complemented by fire sprinkler protection for safety. Community amenities elevate every day with a clubhouse, fitness facility, heated pool, hot tub & putting green. Blending sleek style with coastal ease, this residence is designed for both comfort & connection, offering an unmatched opportunity to embrace oceanfront living at its most effortless.
Exterior Features
Balcony, Impact Windows, Storm Shutters
Interior Features
Breakfast Bar, Built-in Features, Ceiling Fan(s), Entrance Foyer, Guest Suite, Kitchen Island, Open Floorplan, Pantry, Primary Bathroom -Tub with Separate Shower, Split Bedrooms, Vaulted Ceiling(s), Walk-In Closet(s)
Equipment / Appliances
Convection Oven, Dishwasher, Disposal, Dryer, Electric Cooktop, Electric Water Heater, Microwave, Refrigerator, Washer, Wine Cooler
Street
County
Brevard
Listing Status
Active Under Contract
Floor
Tile, Wood
Tax Year
2023
Pool
No
Private Pool
No
Utilities
Cable Connected, Electricity Connected, Sewer Connected, Water Connected
Waterfront
Yes
Water Type
ZipCode
Subdivision
The Palm Beach Condominium
Construction
Block, Concrete, Stucco
Roof Type
Concrete, Tile
Tax Amount
$0.00
Furnishings
Unfurnished
Home View
Beach, Ocean, Water
Parking
Additional Parking, Attached, Covered, Garage, Garage Door Opener, Guest, Underground
HOA Dues
$0.00
PDF Downloads
1795 N Highway A1a #401Indialantic, FL 32903
This listing is courtesy of Compass Florida LLC.

Real Estate and Luxury homes in Melbourne Beach, Merritt Island, Cocoa Beach, Lansing Island, Tortoise Island, Vero Beach, Barefoot Bay, Cape Canaveral, Cocoa, Grant Valkaria, Indialantic, Indian Harbour Beach, Malabar, Melbourne, Palm Bay, Rockledge, Satellite Beach, Titusville, West Melbourne and surrounding areas in Brevard and Central Florida.
Property Listing Data contained within this site is the property of Brevard MLS and is provided for consumers looking to purchase real estate. Any other use is prohibited. We are not responsible for errors and omissions on this web site. All information contained herein should be deemed reliable but not guaranteed, all representations are approximate, and individual verification is recommended.