100 Kristi Drive
Indian Harbour Beach, FL 32937
MLS #: 1061711
Property Type: Residential
Beds: 2
Full Baths: 2.00
List Date: 11-09-2025
Year Built: 1978
1,218 Sq. Ft.
Zoning: Residential
Property Description
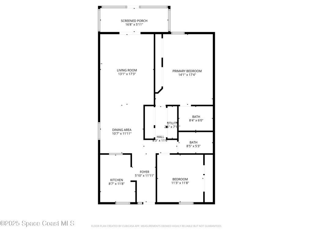
Welcome to Coastal Comfort at 100 Kristi DriveTucked away in the desirable Harbour Villa community, this charming two-bedroom, two-bath townhome captures the relaxed lifestyle that makes Indian Harbour Beach so special. Step inside to find an inviting open layout with abundant natural light and a comfortable flow from living to dining areas. The kitchen offers plenty of cabinetry and workspace, ideal for both everyday living and easy entertaining.The primary suite features ample closet space and a private bath, while the guest bedroom and second bath provide a perfect setup for visiting family or a home office. A private patio extends the living area outdoors--perfect for morning coffee or evening gatherings surrounded by ocean breezes.Thoughtfully maintained, this residence combines the charm of a mature community with the convenience of low-maintenance living. The Harbour Villa HOA takes care of exterior upkeep, allowing you to enjoy more time for what matters!
Exterior Features
Courtyard
Interior Features
Ceiling Fan(s)
Equipment / Appliances
Dishwasher, Disposal, Dryer, Electric Oven, Electric Range, Electric Water Heater, Ice Maker, Microwave, Refrigerator, Washer
Street
Kristi Drive
County
Brevard
Listing Status
Active
Home Style
Villa
Floor
Carpet, Tile
Tax Year
2025
Pool
No
Private Pool
No
Utilities
Cable Connected, Electricity Connected, Sewer Connected, Water Connected
Waterfront
No
ZipCode
Subdivision
Harbour Villa Section 1
Construction
Block, Concrete, Stucco
Roof Type
Shingle
Tax Amount
$0.00
Furnishings
Unfurnished
Parking
Additional Parking, Assigned, Detached, Parking Lot, Unassigned
HOA Dues
$0.00
PDF Downloads
100 Kristi DriveIndian Harbour Beach, FL 32937
This listing is courtesy of BHHS Florida Realty.

Real Estate and Luxury homes in Melbourne Beach, Merritt Island, Cocoa Beach, Lansing Island, Tortoise Island, Vero Beach, Barefoot Bay, Cape Canaveral, Cocoa, Grant Valkaria, Indialantic, Indian Harbour Beach, Malabar, Melbourne, Palm Bay, Rockledge, Satellite Beach, Titusville, West Melbourne and surrounding areas in Brevard and Central Florida.
Property Listing Data contained within this site is the property of Brevard MLS and is provided for consumers looking to purchase real estate. Any other use is prohibited. We are not responsible for errors and omissions on this web site. All information contained herein should be deemed reliable but not guaranteed, all representations are approximate, and individual verification is recommended.