1815 Villa Espana Trail
Melbourne, FL 32935
MLS #: 1062011
Property Type: Residential
Beds: 5
Full Baths: 7.00
Half Baths: 1
List Date: 11-13-2025
Year Built: 1978
5,745 Sq. Ft.
Property Description
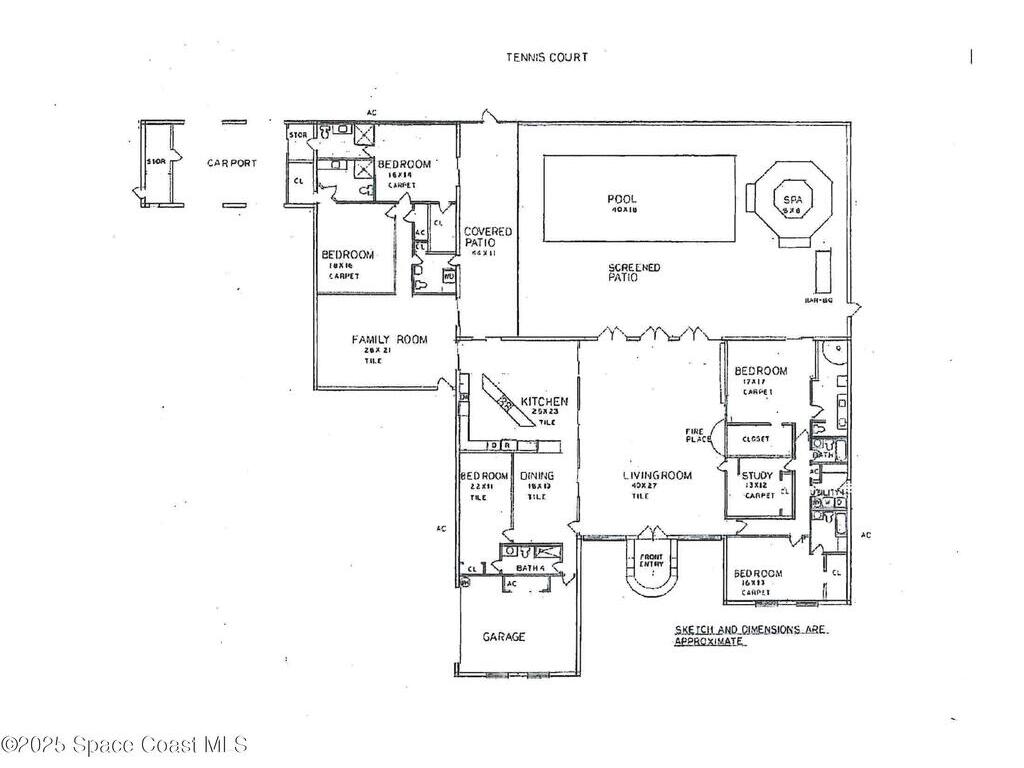
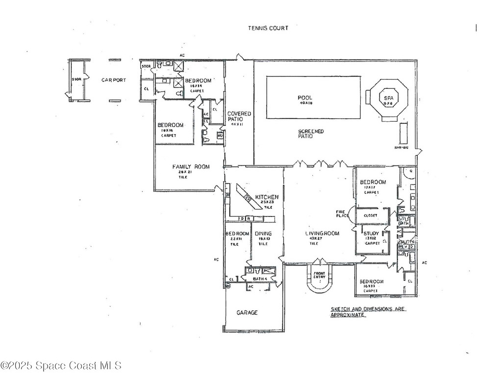
Nestled within a unique gated community in the heart of Melbourne, this 2.46-acre estate offers a spacious, multigenerational home designed to accommodate multiple families. Enjoy a game of tennis on your private court, cool off in the 18x40 pool, or relax in the spa (note: spa leaks) on your private screened patio. The 40x27 living room features a fireplace and wet bar, opening to the screened pool area for seamless entertaining. Children can enjoy TV time in the 28x21 family room located on the opposite side of the house. The three-way split floor plan, with separate entrances, hosts five primary suites and a study, providing room and privacy for family, extended family, and guests. The eat-in kitchen (25x23) and formal dining room (18x13) are perfect for family meals and entertaining.
Exterior Features
Outdoor Shower
Interior Features
Breakfast Bar, Ceiling Fan(s), Kitchen Island, Open Floorplan, Vaulted Ceiling(s), Walk-In Closet(s), Wet Bar
Equipment / Appliances
Dishwasher, Disposal, Double Oven, Dryer, Electric Cooktop, Freezer, Microwave, Refrigerator, Washer
Street
Villa Espana Trail
County
Brevard
Listing Status
Active
Floor
Carpet, Marble, Tile
Tax Year
2024
Pool
Yes
Private Pool
Yes
Pool Description
In Ground, Screen Enclosure
Utilities
Cable Available, Electricity Connected, Water Available
Waterfront
No
ZipCode
Subdivision
None
Construction
Block, Concrete, Stucco
Tax Amount
$7,133.07
Fireplace
Electric
Furnishings
Unfurnished
Parking
Attached, Carport, Circular Driveway, Garage, Garage Door Opener, RV Access/Parking
HOA Dues
$0.00
PDF Downloads
1815 Villa Espana TrailMelbourne, FL 32935
This listing is courtesy of Rahal Real Estate LLC.

Real Estate and Luxury homes in Melbourne Beach, Merritt Island, Cocoa Beach, Lansing Island, Tortoise Island, Vero Beach, Barefoot Bay, Cape Canaveral, Cocoa, Grant Valkaria, Indialantic, Indian Harbour Beach, Malabar, Melbourne, Palm Bay, Rockledge, Satellite Beach, Titusville, West Melbourne and surrounding areas in Brevard and Central Florida.
Property Listing Data contained within this site is the property of Brevard MLS and is provided for consumers looking to purchase real estate. Any other use is prohibited. We are not responsible for errors and omissions on this web site. All information contained herein should be deemed reliable but not guaranteed, all representations are approximate, and individual verification is recommended.