208 The Road To Waterford Bay #C-2
Melbourne Beach, FL 32951
MLS #: 1062599
Property Type: Residential
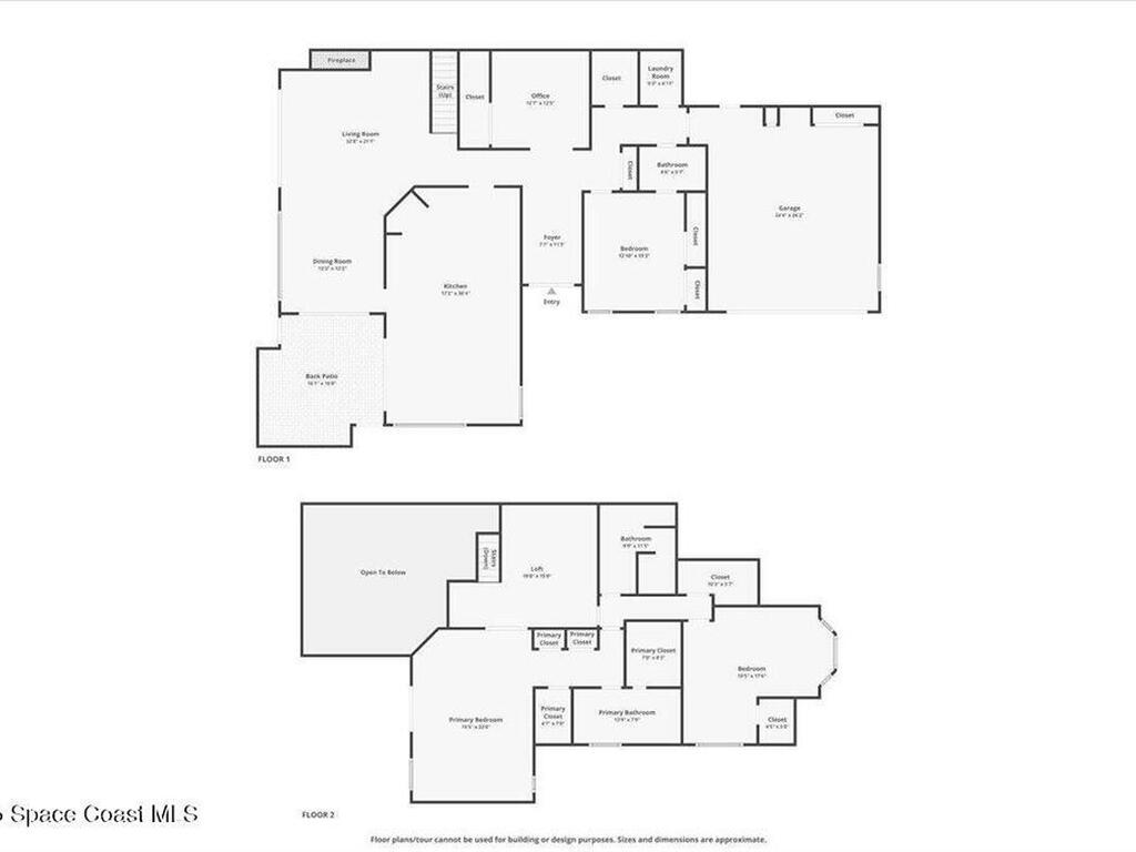
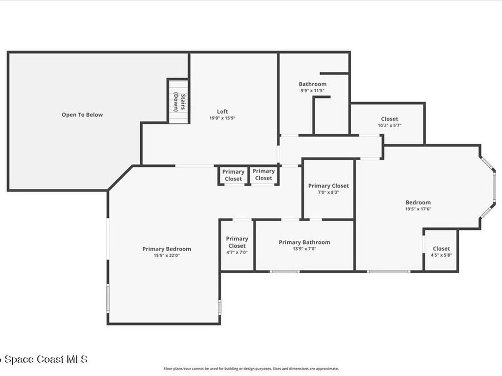
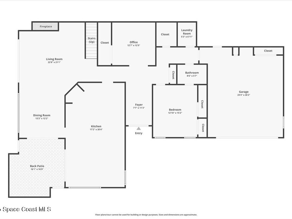
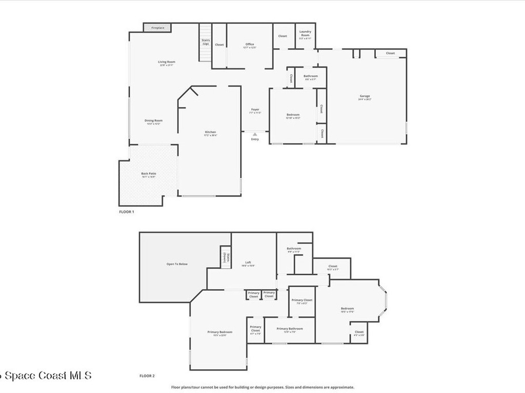
Beds: 3
Full Baths: 4.00
Half Baths: 1
List Date: 11-20-2025
Year Built: 1987
2,856 Sq. Ft.
Property Description
Welcome to your private retreat nestled within the exclusive, gated enclave of Waterford Bay, a boutique community of just five homes. This remarkable residence offers the space of a single-family home with virtually no exterior upkeep required all secured behind private gates.This home features 3 appointed bedrooms + a flex room & Office and 3.5 baths equating to generous living space without the burdensome yard work, painting and insurance typically associated with homeownership. The monthly association fee truly covers it all: exterior maintenance, landscaping, insurance, pool access and more.Inside, open living spaces open up to 2 outdoor living spaces perfect for entertaining friends, quiet evenings with river views or multigenerational comfort. While you won't find waterfront slips or dockage, you will find sweeping river views and the understated joy of a river-adjacent setting paired with private beach access just moments away.
Exterior Features
Balcony, Courtyard, Storm Shutters
Interior Features
Breakfast Nook, Built-in Features, Ceiling Fan(s), Eat-in Kitchen, Guest Suite, His and Hers Closets, Kitchen Island, Primary Bathroom -Tub with Separate Shower, Skylight(s), Vaulted Ceiling(s), Walk-In Closet(s)
Equipment / Appliances
Dishwasher, Electric Cooktop, Electric Oven, Electric Water Heater, Microwave, Refrigerator
Street
County
Brevard
Listing Status
Active
Home Style
Traditional
Floor
Tile, Wood
Pool
No
Private Pool
No
Utilities
Cable Available, Electricity Available, Electricity Connected, Sewer Available, Sewer Connected, Water Available, Water Connected
Waterfront
Yes
Water Type
ZipCode
Subdivision
Waterford Bay Condo Ph II
Construction
Block, Concrete, Stucco
Roof Type
Shingle
Tax Amount
$0.00
Fireplace
Wood Burning
Furnishings
Unfurnished
Home View
River, Water
Parking
Attached, Garage, On Street
HOA Dues
$0.00
PDF Downloads
208 The Road To Waterford Bay #C-2Melbourne Beach, FL 32951
This listing is courtesy of Avanti Way Realty LLC.

Real Estate and Luxury homes in Melbourne Beach, Merritt Island, Cocoa Beach, Lansing Island, Tortoise Island, Vero Beach, Barefoot Bay, Cape Canaveral, Cocoa, Grant Valkaria, Indialantic, Indian Harbour Beach, Malabar, Melbourne, Palm Bay, Rockledge, Satellite Beach, Titusville, West Melbourne and surrounding areas in Brevard and Central Florida.
Property Listing Data contained within this site is the property of Brevard MLS and is provided for consumers looking to purchase real estate. Any other use is prohibited. We are not responsible for errors and omissions on this web site. All information contained herein should be deemed reliable but not guaranteed, all representations are approximate, and individual verification is recommended.