337 S Point Court
Satellite Beach, FL 32937
MLS #: 1062734
Property Type: Residential
Beds: 4
Full Baths: 4.00
List Date: 11-21-2025
Year Built: 1961
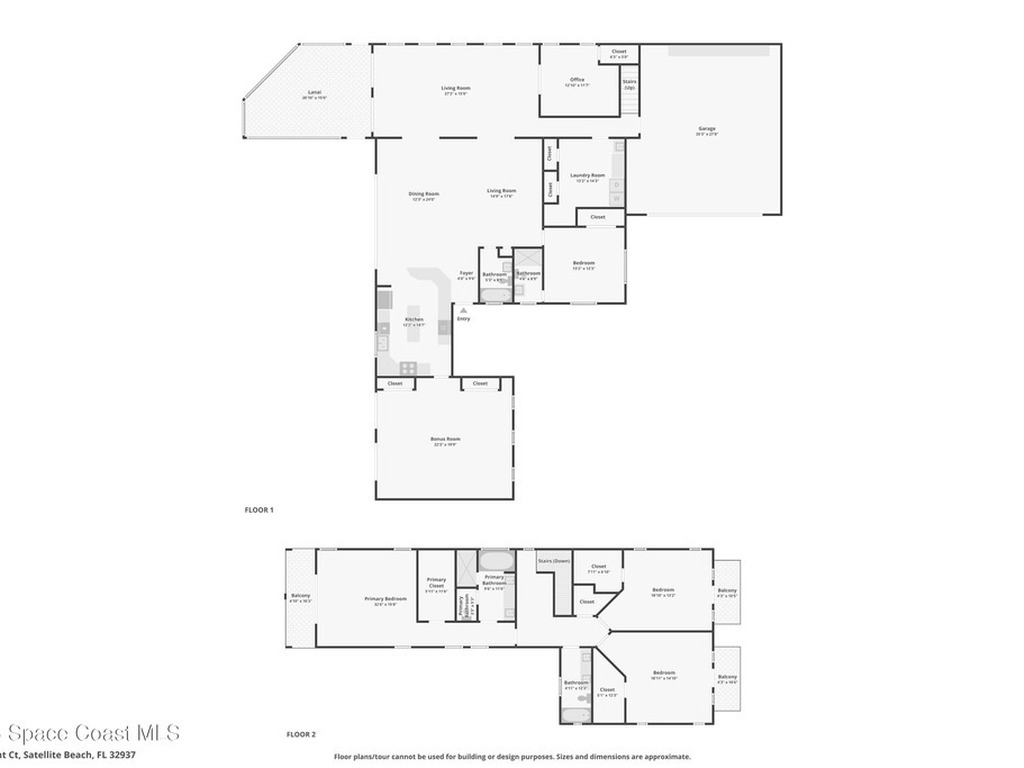
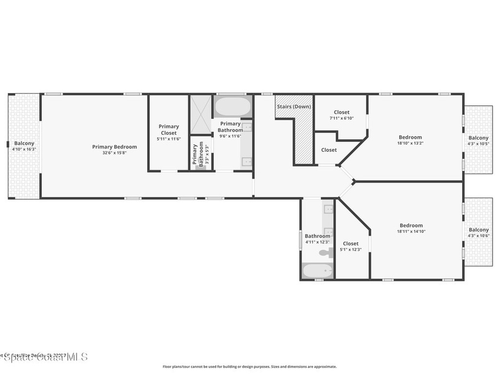
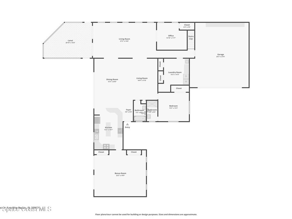
3,945 Sq. Ft.
Property Description
Along 100 ft of shimmering shoreline, this waterfront retreat rises above expectations with a saltwater infinity pool that seems to dissolve into Lake Shepherd, deep-water approach from 6-8 ft to 20 ft at the center, & a full suite of boating luxuries including a 24K-lb lift, floating dock, & Trex decking positioned for perfect views of the boat parade. Mornings unfold on an east-facing screened patio framed by pavers & soft sunrise light, while polished travertine in a French pattern & warm hardwood floors carry indoors through a layout designed for connection. The kitchen delivers granite surfaces, double electric oven, island, convection microwave, warming drawer, & breakfast bar opening to a family room lined with water views, & the primary suite adds a jetted tub, walk-in shower, & spacious walk-in closet. Elevated living continues upstairs with a loft & office served by a private elevator & Juliet balcony capturing Grand Canal sunsets.
Exterior Features
Balcony, Boat Lift, Dock, Outdoor Shower, Storm Shutters
Interior Features
Breakfast Bar, Built-in Features, Ceiling Fan(s), Elevator, Entrance Foyer, Guest Suite, Kitchen Island, Open Floorplan, Primary Bathroom -Tub with Separate Shower, Smart Thermostat, Vaulted Ceiling(s), Walk-In Closet(s)
Equipment / Appliances
Dishwasher, Disposal, Double Oven, Electric Oven, Electric Water Heater, Gas Cooktop, Microwave, Refrigerator, Water Softener Owned
Street
Point Court
County
Brevard
Listing Status
Active
Home Style
Spanish
Floor
Carpet, Tile, Wood
Tax Year
2025
Pool
Yes
Private Pool
Yes
Pool Description
In Ground, Salt Water
Utilities
Electricity Available, Electricity Connected, Natural Gas Connected, Sewer Available, Water Available
Waterfront
Yes
Water Type
ZipCode
Subdivision
Waterway Estates Replat
Construction
Concrete, Frame, Stucco
Tax Amount
$0.00
Furnishings
Unfurnished
Home View
Canal, Intracoastal, Pool, Water
Parking
Attached, Garage, Garage Door Opener, RV Access/Parking
HOA Dues
$0.00
337 S Point CourtSatellite Beach, FL 32937
This listing is courtesy of Compass Florida, LLC.

Real Estate and Luxury homes in Melbourne Beach, Merritt Island, Cocoa Beach, Lansing Island, Tortoise Island, Vero Beach, Barefoot Bay, Cape Canaveral, Cocoa, Grant Valkaria, Indialantic, Indian Harbour Beach, Malabar, Melbourne, Palm Bay, Rockledge, Satellite Beach, Titusville, West Melbourne and surrounding areas in Brevard and Central Florida.
Property Listing Data contained within this site is the property of Brevard MLS and is provided for consumers looking to purchase real estate. Any other use is prohibited. We are not responsible for errors and omissions on this web site. All information contained herein should be deemed reliable but not guaranteed, all representations are approximate, and individual verification is recommended.