5855 Highway A1a
Melbourne Beach, FL 32951
MLS #: 1063085
Property Type: Residential
Beds: 3
Full Baths: 3.00
List Date: 11-28-2025
Year Built: 1972
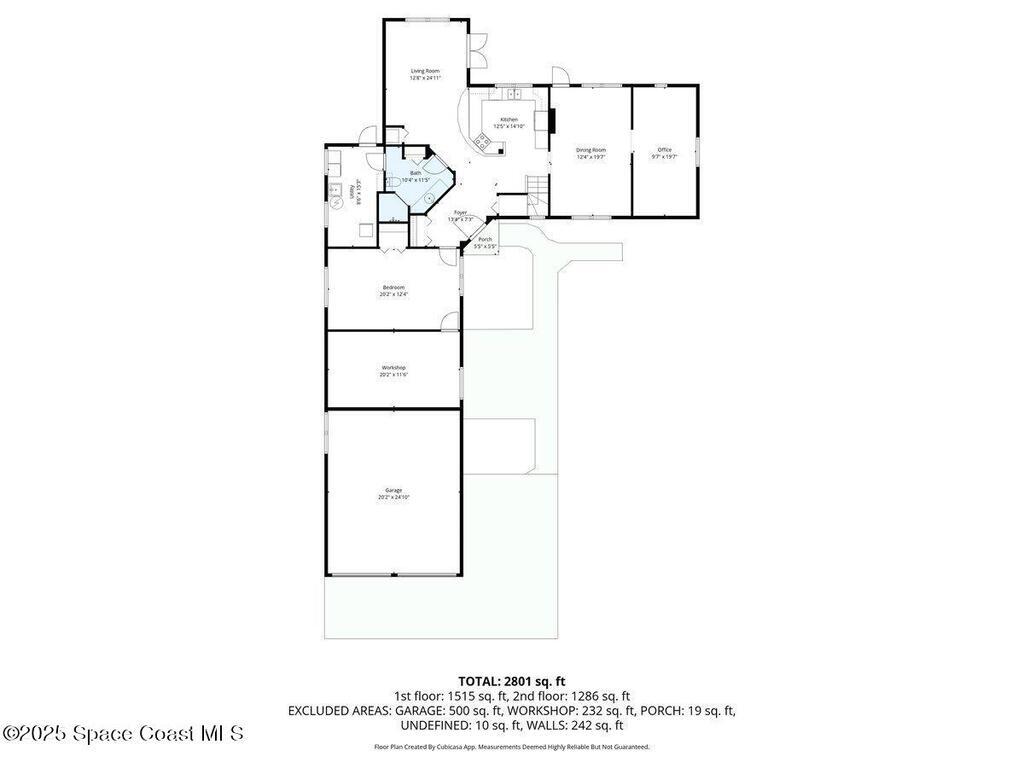
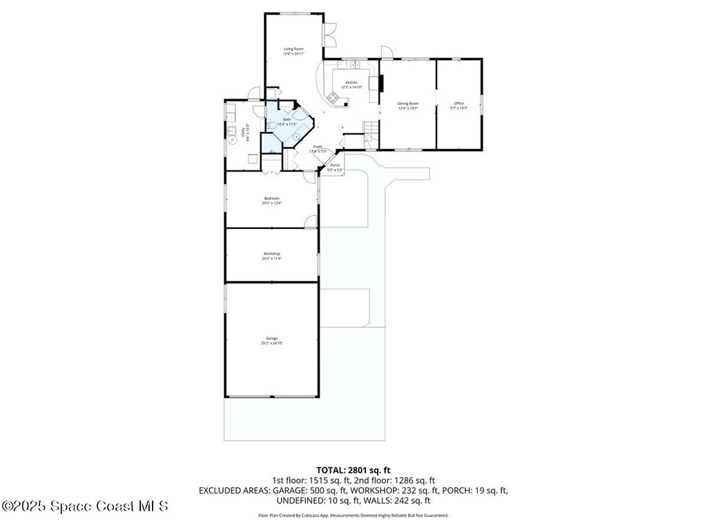
2,892 Sq. Ft.
Property Description
Exceptional oceanfront property offering a private coastal lifestyle on nearly .78 acres. Set well back from A1A the deep front yard creates a quiet retreat with space for a future pool, expanded outdoor living or guest amenities. A wide approach and ample parking area provide smooth access for family and guests. Along the oceanfront enjoy 48' of shoreline framed by mature landscaping for natural privacy far from public beach access and perfect for peaceful mornings beach walks and relaxed seaside living. A grandfathered oceanside gazebo with hot tub sits just steps from the dunes offering a unique spot for gatherings unwinding under the stars or watching spectacular space shuttle launches. The second-story oceanside deck provides elevated views and refreshing breezes ideal for sunrise coffee or evening cocktails. A 273 sq ft workshop with a separate entrance adds flexibility for hobbies or storage. A rare chance to enjoy space serenity and the true oceanfront lifestyle.
Exterior Features
Balcony
Interior Features
Breakfast Bar, Ceiling Fan(s), Entrance Foyer, Open Floorplan, Primary Bathroom -Tub with Separate Shower, Split Bedrooms, Walk-In Closet(s)
Equipment / Appliances
Dishwasher, Electric Range, Microwave, Refrigerator
Street
County
Brevard
Listing Status
Active
Home Style
Other
Floor
Carpet, Tile
Tax Year
2025
Pool
No
Private Pool
No
Utilities
Cable Connected, Electricity Connected, Water Connected
Waterfront
Yes
Water Type
ZipCode
Subdivision
Melbourne Shores 2nd Addn
Construction
Fiber Cement, Frame
Roof Type
Shingle
Tax Amount
$6,626.02
Furnishings
Unfurnished
Home View
Beach, Ocean
Parking
Additional Parking, Garage, Garage Door Opener, RV Access/Parking
HOA Dues
$0.00
PDF Downloads
5855 Highway A1aMelbourne Beach, FL 32951
This listing is courtesy of One Sotheby's International.

Real Estate and Luxury homes in Melbourne Beach, Merritt Island, Cocoa Beach, Lansing Island, Tortoise Island, Vero Beach, Barefoot Bay, Cape Canaveral, Cocoa, Grant Valkaria, Indialantic, Indian Harbour Beach, Malabar, Melbourne, Palm Bay, Rockledge, Satellite Beach, Titusville, West Melbourne and surrounding areas in Brevard and Central Florida.
Property Listing Data contained within this site is the property of Brevard MLS and is provided for consumers looking to purchase real estate. Any other use is prohibited. We are not responsible for errors and omissions on this web site. All information contained herein should be deemed reliable but not guaranteed, all representations are approximate, and individual verification is recommended.