6940 Sonny Dale Drive
West Melbourne, FL 32904
MLS #: 1063196
Property Type: Commercial
Full Baths: 2.00
List Date: 12-01-2025
Year Built: 2026
0 Sq. Ft.
6,000 Total Sq. Ft.
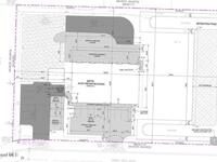
Property Description
Excellent opportunity to lease a 6, 000 SF warehouse situated on +/- 1.53 acres of fenced/cleared yard! New construction... anticipated delivery is Q1 2026. Interior is est. 892 Sf HVAC office with 2 ADA restrooms. Remaining 5, 108 SF +/- is warehouse with concrete floor and est. 15' - 18' 8'' clear height throughout. There are five 10' wide x 14' tall +/- grade level doors. Property is 100% gated and fenced. There is a mix of asphalt and concrete paving in the yard. Utilities include City Water/Sewer and 1-Phase 400 Amp FPL Electric. Property is strategically positioned just off of Nasa Boulevard which is the primary area connector between Interstate 95, Wickham Road and US1. Short drive to the Melbourne International Airport which is home to Northrop Grumman, L3Harris and Extant Aerospace among other employers. Lots of schools, restaurants and childcare nearby. Make this the future home for your business today!
6940 Sonny Dale DriveWest Melbourne, FL 32904
This listing is courtesy of The Ullian Realty Corporation.

Real Estate and Luxury homes in Melbourne Beach, Merritt Island, Cocoa Beach, Lansing Island, Tortoise Island, Vero Beach, Barefoot Bay, Cape Canaveral, Cocoa, Grant Valkaria, Indialantic, Indian Harbour Beach, Malabar, Melbourne, Palm Bay, Rockledge, Satellite Beach, Titusville, West Melbourne and surrounding areas in Brevard and Central Florida.
Property Listing Data contained within this site is the property of Brevard MLS and is provided for consumers looking to purchase real estate. Any other use is prohibited. We are not responsible for errors and omissions on this web site. All information contained herein should be deemed reliable but not guaranteed, all representations are approximate, and individual verification is recommended.