26 W New Haven Avenue
Melbourne, FL 32901
MLS #: 1063512
Property Type: Commercial
Full Baths: 1.00
List Date: 12-04-2025
Year Built: 1926
0 Sq. Ft.
1,221 Total Sq. Ft.
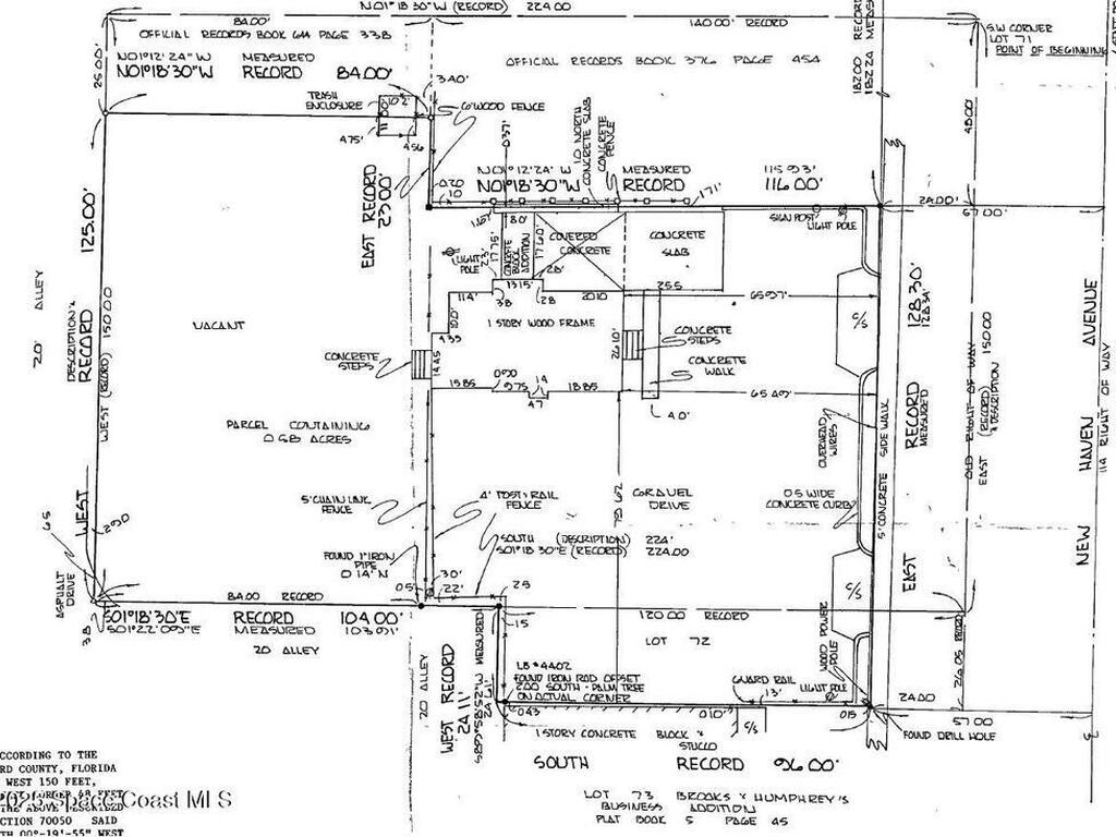
Property Description
Redevelopment opportunity on US 192! Property is est. 0.58 acres. Est. 126' frontage on New Haven Avenue x 200' +/- depth. Site is mostly cleared and has a mix of gravel and grass throughout. Sale includes a 1, 221 SF wood frame building that was constructed in 1926. Utilities include City of Melbourne Water/Sewer and FPL Electric. Traffic Count is est. 34, 000 VPD on New Haven Avenue. Property is strategically positioned directly on US 192 which is an immediate connector between Interstate 95, US1 and the beaches. Close proximity to Downtown Melbourne, the Melbourne International Airport, Melbourne Square Mall, and the Holmes Regional Medical Center. Lots of shopping, dining and schools in the area.
26 W New Haven AvenueMelbourne, FL 32901
This listing is courtesy of The Ullian Realty Corporation.

Real Estate and Luxury homes in Melbourne Beach, Merritt Island, Cocoa Beach, Lansing Island, Tortoise Island, Vero Beach, Barefoot Bay, Cape Canaveral, Cocoa, Grant Valkaria, Indialantic, Indian Harbour Beach, Malabar, Melbourne, Palm Bay, Rockledge, Satellite Beach, Titusville, West Melbourne and surrounding areas in Brevard and Central Florida.
Property Listing Data contained within this site is the property of Brevard MLS and is provided for consumers looking to purchase real estate. Any other use is prohibited. We are not responsible for errors and omissions on this web site. All information contained herein should be deemed reliable but not guaranteed, all representations are approximate, and individual verification is recommended.