6551 Marlbrook Lane
Cocoa, FL 32927
MLS #: 1064153
Property Type: Residential
Beds: 3
Full Baths: 2.00
List Date: 12-12-2025
Year Built: 2025
1,630 Sq. Ft.
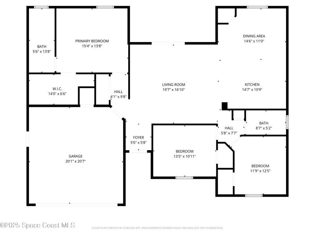
Property Description
Brand New Construction with Hurricane Impact Windows! Open floor plan with 9'4'' ceilings throughout and tray ceilings in the master bedroom and living room. In the kitchen you have 42'' white shaker cabinets, granite countertops with a stunning waterfall edge, and stainless steel appliances. Primary bedroom has a generous size walk-in closet and the primary bathroom has dual sinks, shower and stunning tile work throughout. Split floor plan with two more bedrooms and a bathroom on the other side of the house. Luxury Vinyl Plank and tile floors throughout the house. Centrally located near schools, shopping, highway, less than 25 minute to NASA, less than forty minutes to the airport and less than fifty minutes to all the attractions & theme parks in Orlando.
Exterior Features
Impact Windows
Interior Features
Breakfast Bar, Ceiling Fan(s), Eat-in Kitchen, Open Floorplan, Pantry, Primary Bathroom - Shower No Tub, Primary Downstairs, Split Bedrooms, Walk-In Closet(s)
Equipment / Appliances
Dishwasher, Disposal, Electric Range, Electric Water Heater, Microwave, Refrigerator
Street
Marlbrook Lane
County
Brevard
Listing Status
Active
Home Style
Traditional
Floor
Tile, Vinyl
Tax Year
2025
Pool
No
Private Pool
No
Utilities
Cable Available, Electricity Connected, Water Connected
Waterfront
No
ZipCode
Subdivision
Port St John Unit 6 1st Replat
Construction
Block, Concrete, Stucco
Roof Type
Shingle
Tax Amount
$469.43
Furnishings
Unfurnished
Parking
Attached, Garage, Garage Door Opener
HOA Dues
$0.00
6551 Marlbrook LaneCocoa, FL 32927
This listing is courtesy of Blue Marlin Real Estate.

Real Estate and Luxury homes in Melbourne Beach, Merritt Island, Cocoa Beach, Lansing Island, Tortoise Island, Vero Beach, Barefoot Bay, Cape Canaveral, Cocoa, Grant Valkaria, Indialantic, Indian Harbour Beach, Malabar, Melbourne, Palm Bay, Rockledge, Satellite Beach, Titusville, West Melbourne and surrounding areas in Brevard and Central Florida.
Property Listing Data contained within this site is the property of Brevard MLS and is provided for consumers looking to purchase real estate. Any other use is prohibited. We are not responsible for errors and omissions on this web site. All information contained herein should be deemed reliable but not guaranteed, all representations are approximate, and individual verification is recommended.