145 Escambia Lane #103
Cocoa Beach, FL 32931
MLS #: 1064501
Property Type: Residential
Beds: 2
Full Baths: 3.00
Half Baths: 1
List Date: 12-17-2025
Year Built: 1991
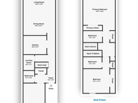
1,400 Sq. Ft.
Property Description
Welcome to Townhomes of Cocoa Beach, a community ideally located between the ocean and river in a sought-after neighborhood. Unlike traditional condos with boxy layouts, this modern home offers a house-like feel with all the advantages of low-maintenance condo living--and no milestone inspection required. Upstairs, both bedrooms feature private ensuites, dual closets, vaulted ceilings, Plantation & storm shutters. The main suite is exceptionally large with a sprawling balcony overlooking lush palm trees & green space. Both bathrooms offer granite vanities & elegant tile finishes. Modern granite kitchen has plenty of cabinets & newer stainless appliances. 1st floor powder room, laundry w/utility sink & attached one-car garage with epoxy floor & impact-rated door. Additional highlights include new water heater, roof, vinyl flooring, newer HVAC & fresh paint. Close to the Cocoa Beach Pier, Publix, dining & shopping, this condo's location & features make it truly stand out. Schedule today!
Exterior Features
Balcony
Interior Features
Breakfast Bar, Ceiling Fan(s), Entrance Foyer, Guest Suite, His and Hers Closets, Primary Bathroom - Shower No Tub, Skylight(s), Vaulted Ceiling(s)
Equipment / Appliances
Dishwasher, Dryer, Electric Oven, Electric Range, Electric Water Heater, Ice Maker, Microwave, Refrigerator, Washer
Street
Escambia Lane
County
Brevard
Listing Status
Active
Home Style
Other
Floor
Carpet, Vinyl
Tax Year
2025
Pool
No
Private Pool
No
Utilities
Cable Connected, Electricity Connected, Natural Gas Not Available, Sewer Connected, Water Connected
Additional Rooms
Bathroom 1, Bathroom 3, Bedroom 2, Dining Room, Kitchen, Laundry, Living Room, Other Room, Primary Bathroom, Primary Bedroom
Waterfront
No
ZipCode
Subdivision
Town Homes of Cocoa Beach Condo
Construction
Concrete, Stucco
Roof Type
Shingle
Tax Amount
$1,666.39
Furnishings
Unfurnished
Home View
Pond, Water
Parking
Attached, Garage, Garage Door Opener, Guest, Unassigned
HOA Dues
$0.00
145 Escambia Lane #103Cocoa Beach, FL 32931
This listing is courtesy of Florida Lifestyle Realty LLC.

Real Estate and Luxury homes in Melbourne Beach, Merritt Island, Cocoa Beach, Lansing Island, Tortoise Island, Vero Beach, Barefoot Bay, Cape Canaveral, Cocoa, Grant Valkaria, Indialantic, Indian Harbour Beach, Malabar, Melbourne, Palm Bay, Rockledge, Satellite Beach, Titusville, West Melbourne and surrounding areas in Brevard and Central Florida.
Property Listing Data contained within this site is the property of Brevard MLS and is provided for consumers looking to purchase real estate. Any other use is prohibited. We are not responsible for errors and omissions on this web site. All information contained herein should be deemed reliable but not guaranteed, all representations are approximate, and individual verification is recommended.