2300 Front Street #400
Melbourne, FL 32901
MLS #: 1064735
Property Type: Residential
Beds: 3
Full Baths: 4.00
Half Baths: 1
List Date: 12-19-2025
Year Built: 2006
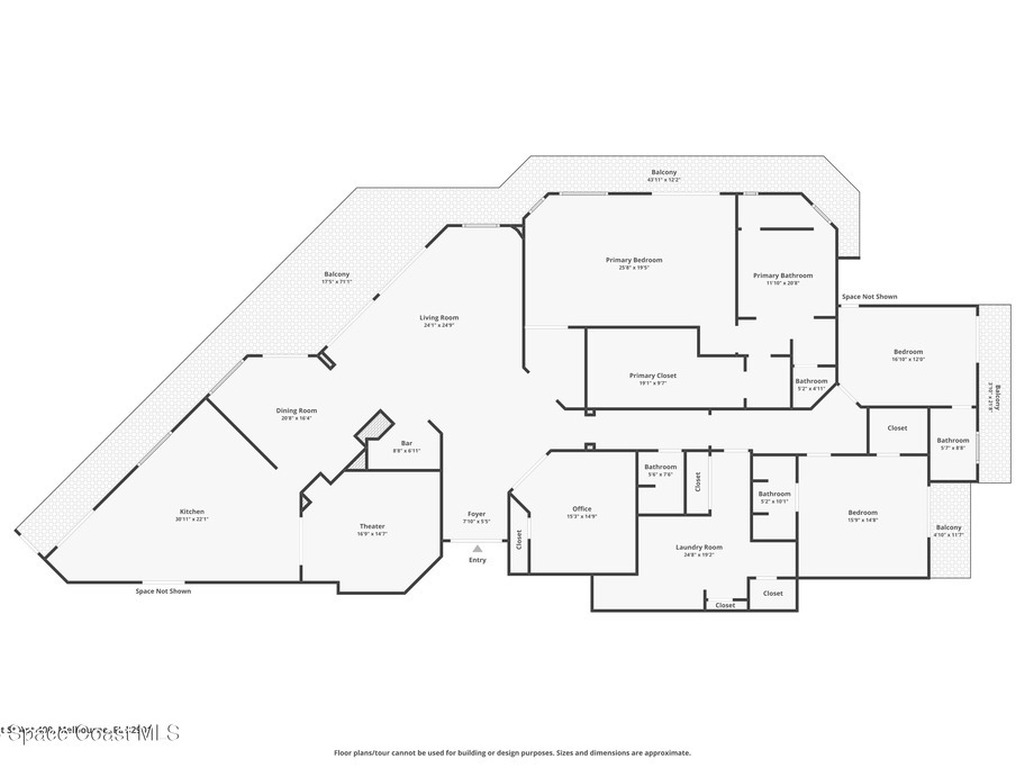
4,104 Sq. Ft.
Property Description
Discreetly set on its own gated island in Florida's Indian River, this top-floor, south-facing residence represents a level of privacy and refinement rarely encountered along the state's coastline. With only six residences in the entire building, the setting feels more like a private enclave than a residential address. Elevated above the water, the residence enjoys long, uninterrupted river views and a sense of separation that is immediately felt upon arrival. Inside, more than 4, 100 square feet unfold in a wide, deliberate layout designed to showcase light, horizon, and flow rather than walls. Every primary living space opens directly to the outdoors, while a nearly 150-foot wraparound terrace forms a continuous gallery around the home, allowing sunrise and sunset to be experienced from a single, unbroken path. This is architecture conceived for presence, not permanence, quietly refined and intentionally rare.
Exterior Features
Balcony, Boat Lift, Boat Slip, Dock, Impact Windows, Storm Shutters
Interior Features
Eat-in Kitchen, Elevator, Entrance Foyer, Kitchen Island, Open Floorplan, Pantry, Primary Bathroom -Tub with Separate Shower, Smart Home, Smart Thermostat, Split Bedrooms, Walk-In Closet(s), Wet Bar
Street
Front Street
County
Brevard
Listing Status
Active
Floor
Tile
Tax Year
2024
Pool
No
Private Pool
No
Utilities
Cable Connected, Electricity Connected, Sewer Connected, Water Connected
Waterfront
Yes
Water Type
ZipCode
Subdivision
Four Winds of Florida A Condominium
Construction
Block, Stucco
Tax Amount
$26,074.30
Furnishings
Negotiable
Home View
Bridge(s), City, Intracoastal, Pool, Protected Preserve, River
Parking
Assigned, Electric Vehicle Charging Station(s), Gated, Secured, Underground
HOA Dues
$0.00
2300 Front Street #400Melbourne, FL 32901
This listing is courtesy of One Sotheby's International.

Real Estate and Luxury homes in Melbourne Beach, Merritt Island, Cocoa Beach, Lansing Island, Tortoise Island, Vero Beach, Barefoot Bay, Cape Canaveral, Cocoa, Grant Valkaria, Indialantic, Indian Harbour Beach, Malabar, Melbourne, Palm Bay, Rockledge, Satellite Beach, Titusville, West Melbourne and surrounding areas in Brevard and Central Florida.
Property Listing Data contained within this site is the property of Brevard MLS and is provided for consumers looking to purchase real estate. Any other use is prohibited. We are not responsible for errors and omissions on this web site. All information contained herein should be deemed reliable but not guaranteed, all representations are approximate, and individual verification is recommended.