1765 Canal Court
Merritt Island, FL 32953
MLS #: 1064910
Property Type: Residential
Beds: 3
Full Baths: 2.00
List Date: 12-23-2025
Year Built: 1968
1,652 Sq. Ft.
Property Description
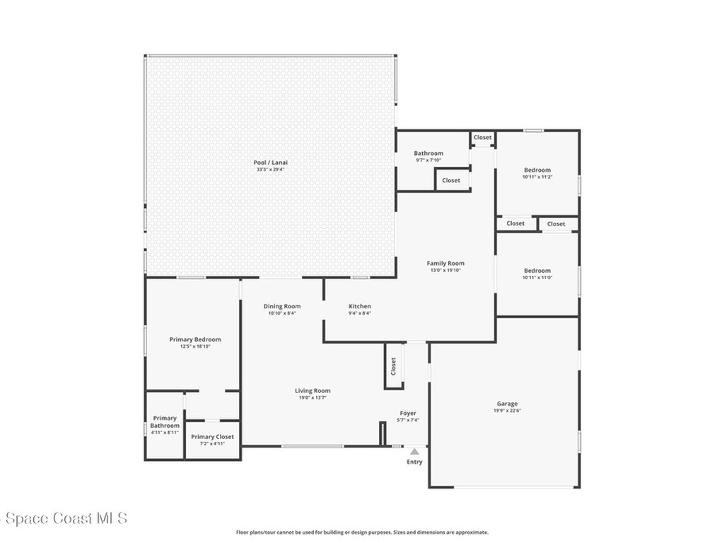
Located in the desirable Waterway Manor neighborhood of Merritt Island, this 3 bedroom, 2 bathroom canal-front pool home offers true Florida waterfront living with direct boating access. The property features a private boat dock and boathouse, ideal for boaters and water enthusiasts. Inside, the home offers a functional galley kitchen with granite countertops, tile flooring throughout most of the living areas, and LVP flooring in select rooms. The screened-in pool and patio create a comfortable outdoor living space overlooking the canal. Recent updates such as fresh paint inside and out, new AC compressor, and pool heater add value while maintaining a practical layout. Centrally located near schools, shopping, dining, beaches, Port Canaveral, and major roadways, this home combines location, boating lifestyle, and everyday convenience. A great opportunity for buyers seeking a waterfront home in Merritt Island with a pool and dock. Don't miss out, schedule a showing today!
Exterior Features
Dock, Other
Interior Features
Ceiling Fan(s), Entrance Foyer, Primary Bathroom - Shower No Tub, Split Bedrooms, Walk-In Closet(s)
Equipment / Appliances
Dishwasher, Electric Range, Microwave, Refrigerator
Street
Canal Court
County
Brevard
Listing Status
Active
Home Style
Traditional
Floor
Tile, Vinyl
Tax Year
2025
Pool
Yes
Private Pool
Yes
Pool Description
In Ground
Utilities
Cable Available, Electricity Available, Electricity Connected, Sewer Available, Sewer Connected, Water Available, Water Connected
Additional Rooms
Bathroom 2, Bedroom 2, Bedroom 3, Family Room, Kitchen, Living Room, Other Room, Primary Bathroom, Primary Bedroom
Waterfront
Yes
Water Type
ZipCode
Subdivision
Waterway Manor Unit 1
Construction
Block, Concrete, Stucco
Roof Type
Shingle
Tax Amount
$6,595.58
Furnishings
Unfurnished
Home View
Canal, Pool
Parking
Attached, Garage
HOA Dues
$0.00
1765 Canal CourtMerritt Island, FL 32953
This listing is courtesy of Florida Lifestyle Realty LLC.

Real Estate and Luxury homes in Melbourne Beach, Merritt Island, Cocoa Beach, Lansing Island, Tortoise Island, Vero Beach, Barefoot Bay, Cape Canaveral, Cocoa, Grant Valkaria, Indialantic, Indian Harbour Beach, Malabar, Melbourne, Palm Bay, Rockledge, Satellite Beach, Titusville, West Melbourne and surrounding areas in Brevard and Central Florida.
Property Listing Data contained within this site is the property of Brevard MLS and is provided for consumers looking to purchase real estate. Any other use is prohibited. We are not responsible for errors and omissions on this web site. All information contained herein should be deemed reliable but not guaranteed, all representations are approximate, and individual verification is recommended.