805 46th Place ##9
Vero Beach, FL 32963
MLS #: 1065124
Property Type: Residential
Beds: 3
Full Baths: 5.00
Half Baths: 1
List Date: 12-29-2025
Year Built: 2026
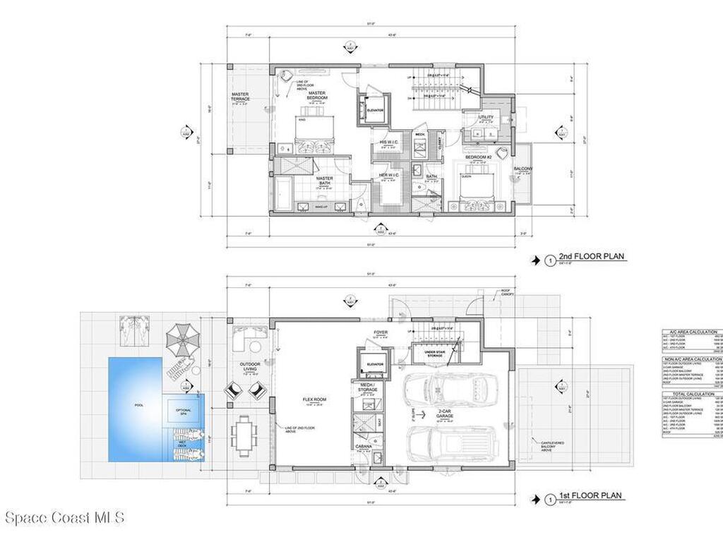
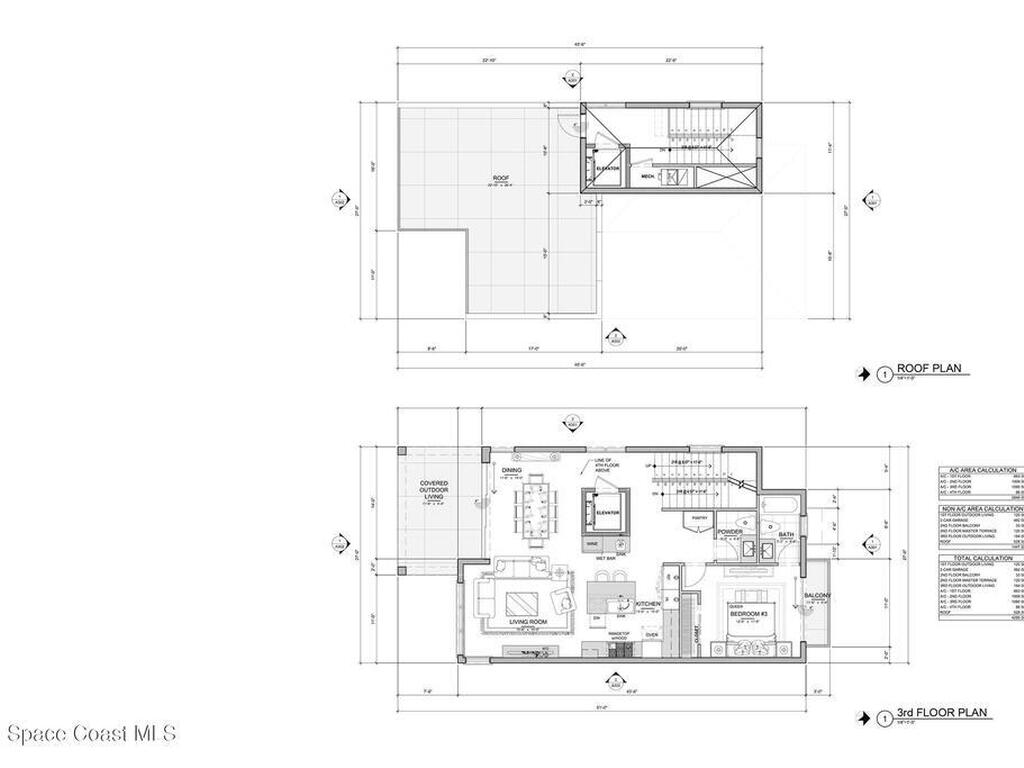
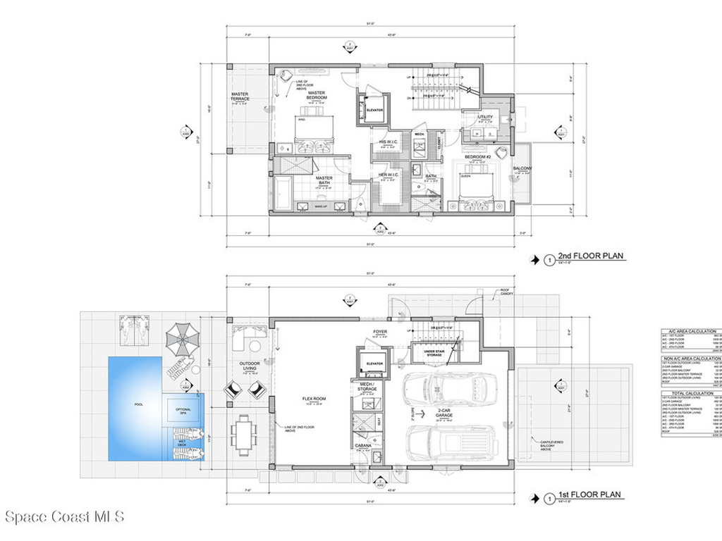
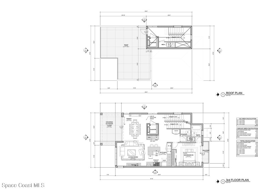
2,848 Sq. Ft.
Property Description
An extraordinary opportunity to own within Indigo, a private oceanfront enclave where architectural distinction, limited inventory, and direct Atlantic frontage define a rare coastal offering. Indigo is a private, gated oceanfront community positioned along 525 feet of direct Atlantic frontage in one of Vero Beach's most desirable coastal locations. This limited-scale development consists of only 21 total residences, including free standing villas and luxury condominium homes, creating a low-density environment that supports long-term value and privacy. Designed by Randall Stofft Architects, the island-inspired contemporary architecture emphasizes elevated views, strong coastal presence, and enduring appeal. This villa offers approximately 2, 848 square feet of interior living space and over 4, 200 total square feet, featuring three bedrooms plus a flex room with ensuite bath, 4.5 bathrooms, and 10-12 foot ceilings throughout. Residence includes private elevator, pool, rooftop terrace..
Exterior Features
Balcony, Impact Windows, Other, Outdoor Kitchen
Interior Features
Ceiling Fan(s), Elevator, His and Hers Closets, Kitchen Island, Pantry, Primary Bathroom - Tub with Shower, Split Bedrooms, Vaulted Ceiling(s), Walk-In Closet(s), Wet Bar
Equipment / Appliances
Convection Oven, Dishwasher, Disposal, Dryer, Electric Cooktop, Gas Cooktop, Induction Cooktop, Microwave, Refrigerator, Washer, Wine Cooler
Street
46th Place
County
Indian River
Listing Status
Active
Home Style
Contemporary
Floor
Other, Stone, Terrazzo, Tile
Tax Year
2025
Pool
Yes
Private Pool
Yes
Pool Description
In Ground
Utilities
Electricity Available, Other, Propane, Sewer Available, Water Available
Waterfront
Yes
Water Type
ZipCode
Subdivision
None
Construction
Block, Concrete, Stucco
Roof Type
Other
Tax Amount
$3,800.67
Furnishings
Unfurnished
Home View
Ocean
Parking
Attached, Garage
HOA Dues
$0.00
PDF Downloads
805 46th Place ##9Vero Beach, FL 32963
This listing is courtesy of RE/MAX Aerospace Realty.

Real Estate and Luxury homes in Melbourne Beach, Merritt Island, Cocoa Beach, Lansing Island, Tortoise Island, Vero Beach, Barefoot Bay, Cape Canaveral, Cocoa, Grant Valkaria, Indialantic, Indian Harbour Beach, Malabar, Melbourne, Palm Bay, Rockledge, Satellite Beach, Titusville, West Melbourne and surrounding areas in Brevard and Central Florida.
Property Listing Data contained within this site is the property of Brevard MLS and is provided for consumers looking to purchase real estate. Any other use is prohibited. We are not responsible for errors and omissions on this web site. All information contained herein should be deemed reliable but not guaranteed, all representations are approximate, and individual verification is recommended.