1811 Westwood Boulevard
Melbourne, FL 32901
MLS #: 1065367
Property Type: Residential
Beds: 3
Full Baths: 1.00
List Date: 01-02-2026
Year Built: 1958
1,035 Sq. Ft.
Property Description
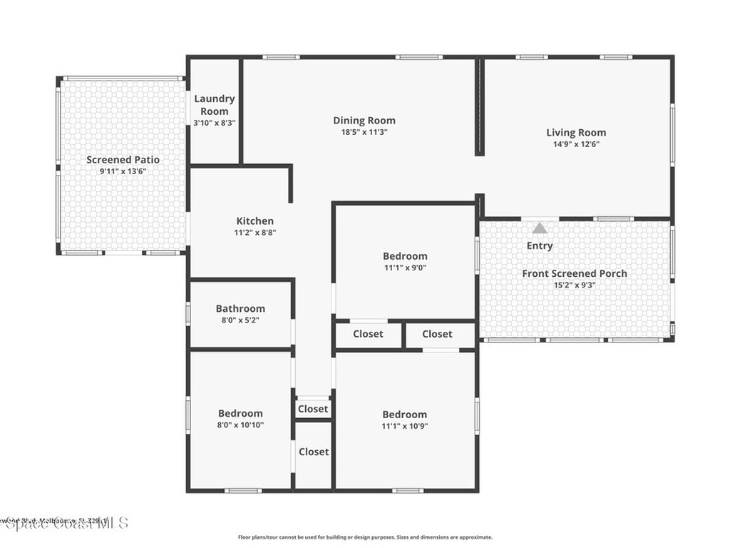
Charming and updated, this 3-bedroom Melbourne home blends comfort, style, and convenience on a quiet dead-end street. Step inside to a bright layout with durable vinyl plank flooring in the main living areas and a refreshed kitchen featuring granite countertops and stainless steel appliances. The bedrooms include newer carpet and ceiling fans for year-round comfort, and the bathroom has been tastefully updated.Major improvements include a newer roof, updated A/C and ductwork, and CPVC plumbing for peace of mind. Enjoy Florida living in the dual screened outdoor areas overlooking a fully fenced backyard, offering privacy and space for relaxing or entertaining. Located close to shopping, dining, Melbourne Square Mall, and commuter routes, this move-in-ready home delivers value, convenience, and modern upgrades in a central Melbourne location.
Interior Features
Ceiling Fan(s)
Equipment / Appliances
Dishwasher, Disposal, Dryer, Electric Range, Electric Water Heater, Microwave, Refrigerator, Washer
Street
Westwood Boulevard
County
Brevard
Listing Status
Active
Floor
Carpet, Vinyl
Pool
No
Private Pool
No
Utilities
Cable Available, Electricity Connected, Sewer Connected, Water Connected
Waterfront
No
ZipCode
Subdivision
Sun Crest
Construction
Block, Concrete, Frame, Wood Siding
Roof Type
Shingle
Tax Amount
$0.00
Furnishings
Negotiable
Parking
RV Access/Parking
HOA Dues
$0.00
1811 Westwood BoulevardMelbourne, FL 32901
This listing is courtesy of NextHome Sunrise Realty.

Real Estate and Luxury homes in Melbourne Beach, Merritt Island, Cocoa Beach, Lansing Island, Tortoise Island, Vero Beach, Barefoot Bay, Cape Canaveral, Cocoa, Grant Valkaria, Indialantic, Indian Harbour Beach, Malabar, Melbourne, Palm Bay, Rockledge, Satellite Beach, Titusville, West Melbourne and surrounding areas in Brevard and Central Florida.
Property Listing Data contained within this site is the property of Brevard MLS and is provided for consumers looking to purchase real estate. Any other use is prohibited. We are not responsible for errors and omissions on this web site. All information contained herein should be deemed reliable but not guaranteed, all representations are approximate, and individual verification is recommended.