1035 Captiva Island Circle
Palm Bay, FL 32908
MLS #: 1065721
Property Type: Residential
Beds: 3
Full Baths: 2.00
List Date: 01-07-2026
Year Built: 2025
1,835 Sq. Ft.
Zoning: Residential
Property Description
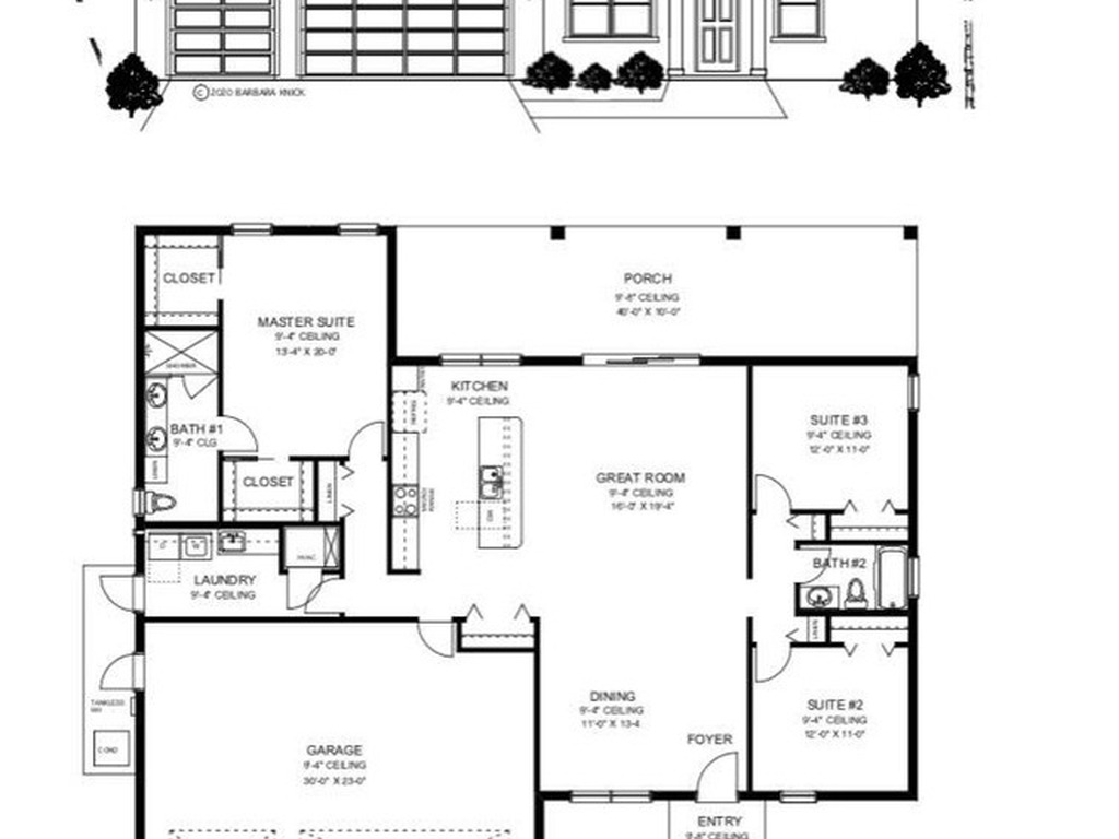
BRAND NEW HOME to close out the community...ONLY 1, 000. DOWN, ALL CLOSING COST PAID w/ use of preferred lender*. HOME WARRANTY! LAST 3 Car . LOT 46 with lake views... Welcome to Palm Bay's newest exclusive community featuring 50 total home-sites. New Home Construction has began on this beautiful 3 bedroom, 2 bath, 3 car garage home with a large covered lanai. This home offers a large great room / open plan design with Dining area, spacious kitchen with many beautiful upgrades with deluxe full appliance package. The master suite features 9'4'' ceiling, 2 large walk in closets, and Master bath retreat with large tile walk in shower, & dual sinks with Quartz countertops. Oversized Laundry room with cabinets & additional extras! Attention to detail in every aspect of this home from flooring, to lighting, cabinets & more. Community offers city water & sewer lots, nice lake-views when entering into this quiet neighborhood. Community is FINAL STAGE Close Out!, so DO NOT MISS an Opportunity
Exterior Features
Storm Shutters
Interior Features
Breakfast Bar, Ceiling Fan(s), His and Hers Closets, Open Floorplan, Pantry, Primary Bathroom - Tub with Shower, Split Bedrooms, Vaulted Ceiling(s), Walk-In Closet(s)
Equipment / Appliances
Dishwasher, Electric Range, Electric Water Heater, Ice Maker, Microwave, Refrigerator
Street
Captiva Island Circle
County
Brevard
Listing Status
Active
Home Style
Traditional
Floor
Carpet, Tile, Vinyl
Tax Year
2023
Pool
No
Private Pool
No
Utilities
Cable Available, Electricity Connected, Sewer Connected, Water Connected
Additional Rooms
Bedroom 2, Bedroom 3, Dining Room, Family Room, Kitchen, Other Room, Primary Bedroom
Waterfront
No
ZipCode
Subdivision
Sanibel Cove
Construction
Block, Concrete, Stucco
Roof Type
Shingle
Tax Amount
$1,004.96
Furnishings
Unfurnished
Parking
Attached, Garage Door Opener
HOA Dues
$0.00
1035 Captiva Island CirclePalm Bay, FL 32908
This listing is courtesy of Waterman Real Estate, Inc..

Real Estate and Luxury homes in Melbourne Beach, Merritt Island, Cocoa Beach, Lansing Island, Tortoise Island, Vero Beach, Barefoot Bay, Cape Canaveral, Cocoa, Grant Valkaria, Indialantic, Indian Harbour Beach, Malabar, Melbourne, Palm Bay, Rockledge, Satellite Beach, Titusville, West Melbourne and surrounding areas in Brevard and Central Florida.
Property Listing Data contained within this site is the property of Brevard MLS and is provided for consumers looking to purchase real estate. Any other use is prohibited. We are not responsible for errors and omissions on this web site. All information contained herein should be deemed reliable but not guaranteed, all representations are approximate, and individual verification is recommended.