453 Bamboo Lane
Melbourne, FL 32935
MLS #: 1066042
Property Type: Residential
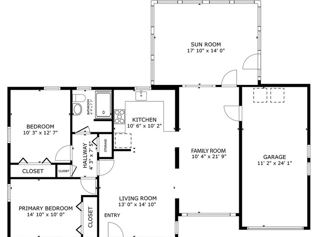
Beds: 2
Full Baths: 1.00
List Date: 01-09-2026
Year Built: 1951
1,030 Sq. Ft.
Zoning: Residential
Property Description
WOW! YOU MUST SEE THIS HOME! Completely remodeled over time to create the most stunning, serene home in the coolest location. The kitchen was redone in 2012 with 52inch cabinets with crown molding, Granite countertops and soft close drawers/cabinet. French door refrigerator, flat top stove, built in microwave (appliances 2025). Plus Pass through to porch. Primary bathroom boasts a new shower in 2025. The A/C and water heater new in 2021; New decking and Pergula out back in 2025 surrounded by dwarf clumping bamboo, multiple fruit trees and intimate solar lighting. Enclosed breezeway with tongue and groove ceiling and beautiful impact rated windows. updated 200 amp electric. Outdoor shower with hot/cold water. External antenna with clear reception to all networks and PBS. lrrigation timer new in 2025. Sprinker system with new 360FT well. Maintenance free shell front yard and embedded solar lighting Plus an Olive Tree! Fully Fenced back yard w/shed. This is a MUST SEE house!
Exterior Features
Impact Windows, Outdoor Shower, Storm Shutters
Interior Features
Ceiling Fan(s), Open Floorplan, Pantry
Equipment / Appliances
Dishwasher, Dryer, Electric Range, Electric Water Heater, Refrigerator, Washer
Street
Bamboo Lane
County
Brevard
Listing Status
Active
Home Style
Ranch
Floor
Tile
Tax Year
2025
Pool
No
Private Pool
No
Utilities
Cable Available, Electricity Available, Electricity Connected, Natural Gas Not Available, Sewer Available, Sewer Connected, Water Available, Water Connected
Waterfront
No
ZipCode
Subdivision
Loveridge Heights Subd
Construction
Concrete, Stucco
Roof Type
Shingle
Tax Amount
$817.96
Furnishings
Unfurnished
Home View
Other
Parking
Attached, Circular Driveway, Garage, Garage Door Opener
HOA Dues
$0.00
PDF Downloads
453 Bamboo LaneMelbourne, FL 32935
This listing is courtesy of RE/MAX Alternative Realty.

Real Estate and Luxury homes in Melbourne Beach, Merritt Island, Cocoa Beach, Lansing Island, Tortoise Island, Vero Beach, Barefoot Bay, Cape Canaveral, Cocoa, Grant Valkaria, Indialantic, Indian Harbour Beach, Malabar, Melbourne, Palm Bay, Rockledge, Satellite Beach, Titusville, West Melbourne and surrounding areas in Brevard and Central Florida.
Property Listing Data contained within this site is the property of Brevard MLS and is provided for consumers looking to purchase real estate. Any other use is prohibited. We are not responsible for errors and omissions on this web site. All information contained herein should be deemed reliable but not guaranteed, all representations are approximate, and individual verification is recommended.