4774 Navaho Trail
Merritt Island, FL 32953
MLS #: 1066382
Property Type: Residential
Beds: 3
Full Baths: 3.00
Half Baths: 1
List Date: 01-13-2026
Year Built: 1981
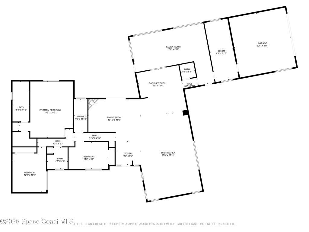
2,871 Sq. Ft.
Zoning: Residential
Property Description
Indian Bay is arguably one of Merritt Island's best neighborhoods, and 4774 Navaho Trl. will show you why. This 3 bedroom 2.5 bath pool home sits on over half an acre with lake views and a private community boat launch to the Indian River. Inside, the home offers more than 2800 square feet with a remodeled kitchen, a sunken family room with a wood-burning fireplace, and a spacious sunroom that can be used as an office, lounge, or flex space overlooking the pool (can be converted into a 4th bedroom!) . Updates include a new AC, a new fence, and a red metal tile roof. The property also features a true two-car garage, two driveways including a circular drive, and a backyard built for relaxing or entertaining. This is the kind of neighborhood where neighbors become family and lasting memories are made. Minutes from daily conveniences like Publix, Target, and Starbucks, 10-15 minutes to Kennedy Space Center, Blue Origin, SpaceX, and the beaches, and about 40 minutes to Orlando Airport.
Exterior Features
Boat Ramp - Private
Interior Features
Ceiling Fan(s), Kitchen Island
Equipment / Appliances
Dishwasher, Dryer, Electric Cooktop, Electric Oven, Electric Water Heater, Microwave, Refrigerator, Washer
Street
Navaho Trail
County
Brevard
Listing Status
Active
Floor
Tile, Vinyl
Tax Year
2025
Pool
Yes
Private Pool
Yes
Pool Description
In Ground
Utilities
Electricity Connected, Water Connected
Waterfront
Yes
Water Type
ZipCode
Subdivision
Indian Bay Estates Phase 1
Construction
Block, Brick, Concrete, Stucco
Tax Amount
$5,866.04
Fireplace
Wood Burning
Furnishings
Negotiable
Home View
Lake
Parking
Attached, Circular Driveway, Garage, Garage Door Opener
HOA Dues
$0.00
PDF Downloads
4774 Navaho TrailMerritt Island, FL 32953
This listing is courtesy of Real Broker LLC.

Real Estate and Luxury homes in Melbourne Beach, Merritt Island, Cocoa Beach, Lansing Island, Tortoise Island, Vero Beach, Barefoot Bay, Cape Canaveral, Cocoa, Grant Valkaria, Indialantic, Indian Harbour Beach, Malabar, Melbourne, Palm Bay, Rockledge, Satellite Beach, Titusville, West Melbourne and surrounding areas in Brevard and Central Florida.
Property Listing Data contained within this site is the property of Brevard MLS and is provided for consumers looking to purchase real estate. Any other use is prohibited. We are not responsible for errors and omissions on this web site. All information contained herein should be deemed reliable but not guaranteed, all representations are approximate, and individual verification is recommended.