7437 Monterey Court
Melbourne, FL 32940
MLS #: 1066520
Property Type: Residential
Beds: 3
Full Baths: 2.00
List Date: 01-15-2026
Year Built: 1993
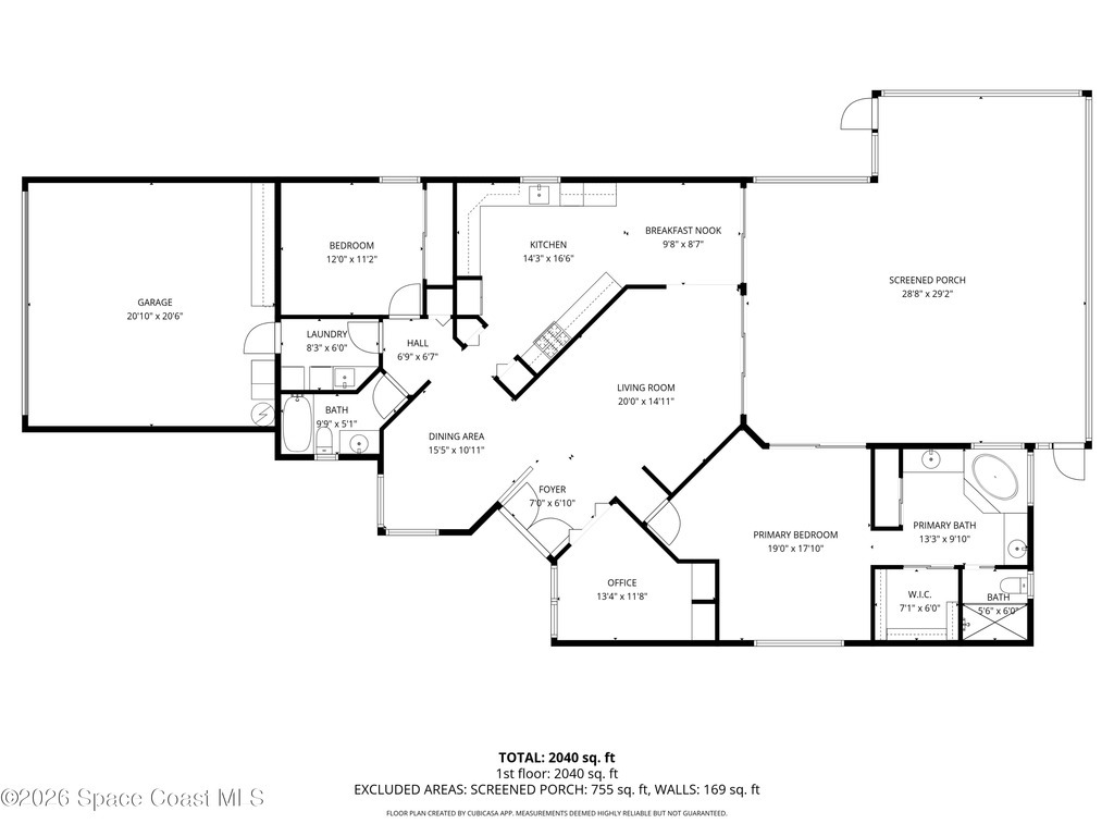
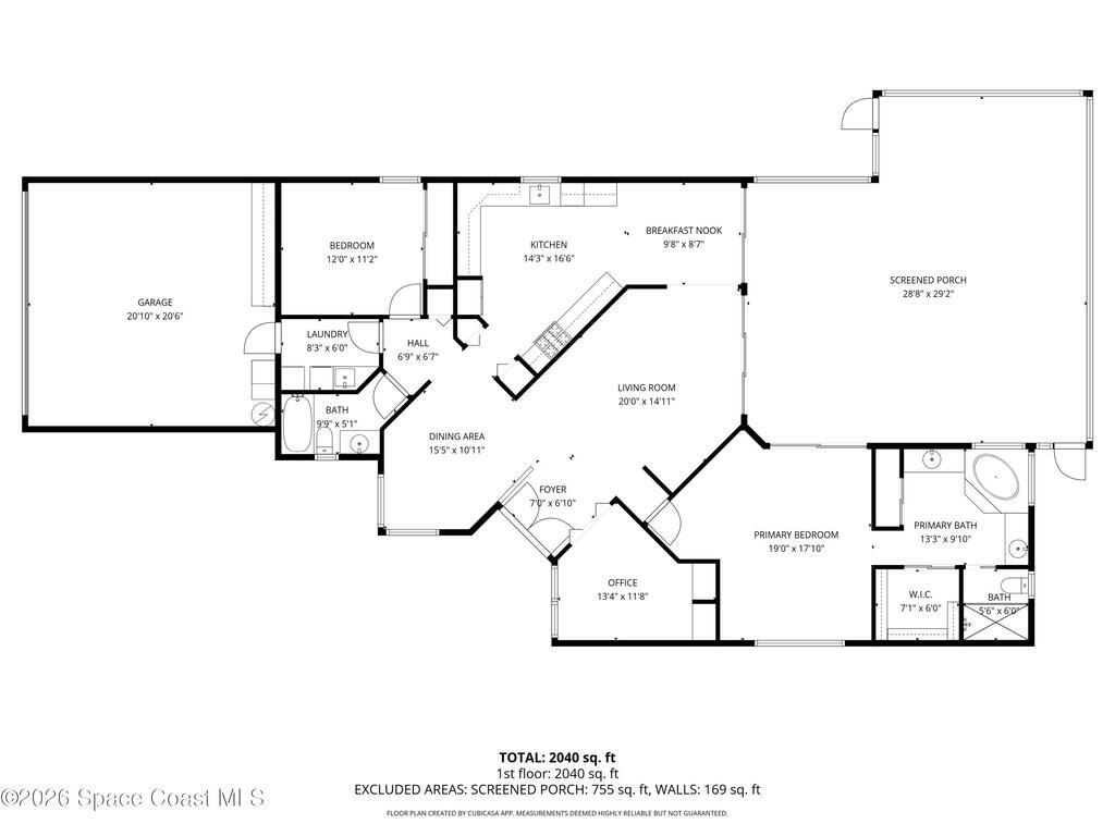
1,700 Sq. Ft.
Zoning: Residential
Property Description
You have to see this one because she is GORGEOUS! Meticulously maintained inside and out this picture perfect Suntree home is tucked into a charming cul-de-sac and built on a lot TWICE the size of most in this quaint community. Pull into the oversized driveway and make your way down the manicured pathway leading to the double door entry featuring custom stained glass. The main entry overlooks the living room featuring the first of 3 oversized glass sliders that cover almost the entire rear of the home. To the right is the 1st of 3 bedrooms with this one set up as an office with French doors and built ins. To the left is a formal dining space which would also make a nice office area. A small hallway leads to the second guest bedroom and guest bath. The spacious kitchen is brand new and features all wood cabinets with slide outs, granite countertops and all new appliances with the exception of the awesome gas range. A large breakfast nook area overlooks the lanai. On the opposite side
Exterior Features
Impact Windows, Storm Shutters
Interior Features
Breakfast Nook, Built-in Features, Ceiling Fan(s), His and Hers Closets, Pantry, Primary Bathroom -Tub with Separate Shower, Split Bedrooms, Vaulted Ceiling(s), Walk-In Closet(s)
Equipment / Appliances
Dishwasher, Disposal, Electric Water Heater, Gas Oven, Gas Range, Ice Maker, Microwave, Refrigerator
Street
Monterey Court
County
Brevard
Listing Status
Active
Floor
Tile, Vinyl
Tax Year
2025
Pool
No
Private Pool
No
Utilities
Cable Connected, Electricity Connected, Natural Gas Connected, Sewer Connected, Water Connected
Waterfront
No
ZipCode
Subdivision
Mission Lake Villas Unit 2
Construction
Block
Roof Type
Tile
Tax Amount
$3,743.89
Furnishings
Negotiable
Parking
Garage, Garage Door Opener
HOA Dues
$0.00
PDF Downloads
7437 Monterey CourtMelbourne, FL 32940
This listing is courtesy of Waterman Real Estate, Inc..

Real Estate and Luxury homes in Melbourne Beach, Merritt Island, Cocoa Beach, Lansing Island, Tortoise Island, Vero Beach, Barefoot Bay, Cape Canaveral, Cocoa, Grant Valkaria, Indialantic, Indian Harbour Beach, Malabar, Melbourne, Palm Bay, Rockledge, Satellite Beach, Titusville, West Melbourne and surrounding areas in Brevard and Central Florida.
Property Listing Data contained within this site is the property of Brevard MLS and is provided for consumers looking to purchase real estate. Any other use is prohibited. We are not responsible for errors and omissions on this web site. All information contained herein should be deemed reliable but not guaranteed, all representations are approximate, and individual verification is recommended.