2338 Maeve Circle
Melbourne, FL 32904
MLS #: 1066619
Property Type: Residential
Beds: 4
Full Baths: 3.00
Half Baths: 1
List Date: 01-15-2026
Year Built: 2006
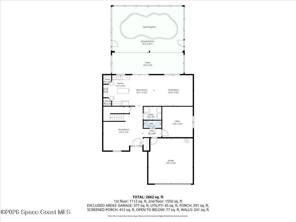
2,882 Sq. Ft.
Property Description
An exceptional opportunity includes an ASSUMABLE MORTGAGE @ 2.49% with approximately $275, 000 remaining offering significant savings in today's rate environment. This well-maintained home is nestled in a desirable gated community known for its sidewalks, green spaces and convenient access to top-rated schools shopping dining and nearby beaches. Designed for both comfort and flexibility the home offers four bedrooms two and a half baths plus two bonus rooms ideal for a home office, gym, playroom or guest space. Recent upgrades provide peace of mind including a new roof 2023, new AC units 2024 & 2025 and a new hot water heater 2022. Outdoor living shines with fresh landscaping completed in 2025 a fully fenced backyard and a private saltwater pool with a newer pool pump 2022 perfect for entertaining or relaxing year-round. A rare opportunity to enjoy low-maintenance Florida living at its best with an incredible low interest rate.
Exterior Features
Storm Shutters
Interior Features
Ceiling Fan(s), Eat-in Kitchen, Kitchen Island, Open Floorplan, Pantry, Primary Bathroom -Tub with Separate Shower
Equipment / Appliances
Dishwasher, Disposal, Electric Range, Microwave, Refrigerator
Street
Maeve Circle
County
Brevard
Listing Status
Active
Home Style
Other
Floor
Carpet, Tile
Tax Year
2025
Pool
Yes
Private Pool
Yes
Pool Description
In Ground, Salt Water, Screen Enclosure
Utilities
Cable Available, Electricity Connected, Sewer Connected, Water Available, Water Connected
Waterfront
No
ZipCode
Subdivision
Eastwood 1 at Heritage Oaks
Construction
Block, Frame, Stucco
Roof Type
Shingle
Tax Amount
$2,171.51
Furnishings
Unfurnished
Home View
Pool
Parking
Garage, On Street
HOA Dues
$0.00
2338 Maeve CircleMelbourne, FL 32904
This listing is courtesy of One Sotheby's International.

Real Estate and Luxury homes in Melbourne Beach, Merritt Island, Cocoa Beach, Lansing Island, Tortoise Island, Vero Beach, Barefoot Bay, Cape Canaveral, Cocoa, Grant Valkaria, Indialantic, Indian Harbour Beach, Malabar, Melbourne, Palm Bay, Rockledge, Satellite Beach, Titusville, West Melbourne and surrounding areas in Brevard and Central Florida.
Property Listing Data contained within this site is the property of Brevard MLS and is provided for consumers looking to purchase real estate. Any other use is prohibited. We are not responsible for errors and omissions on this web site. All information contained herein should be deemed reliable but not guaranteed, all representations are approximate, and individual verification is recommended.