3460 Thurloe Drive
Rockledge, FL 32955
MLS #: 1066670
Property Type: Residential
Beds: 6
Full Baths: 5.00
Half Baths: 1
List Date: 01-16-2026
Year Built: 2015
3,575 Sq. Ft.
Zoning: Residential
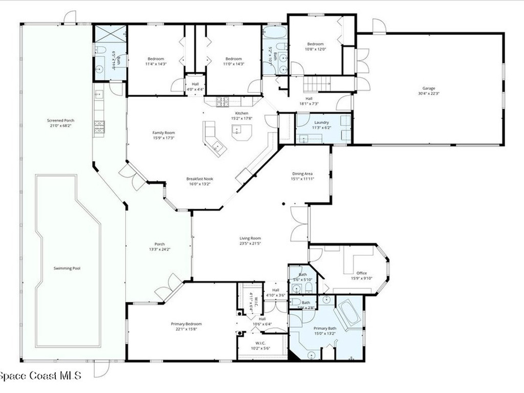
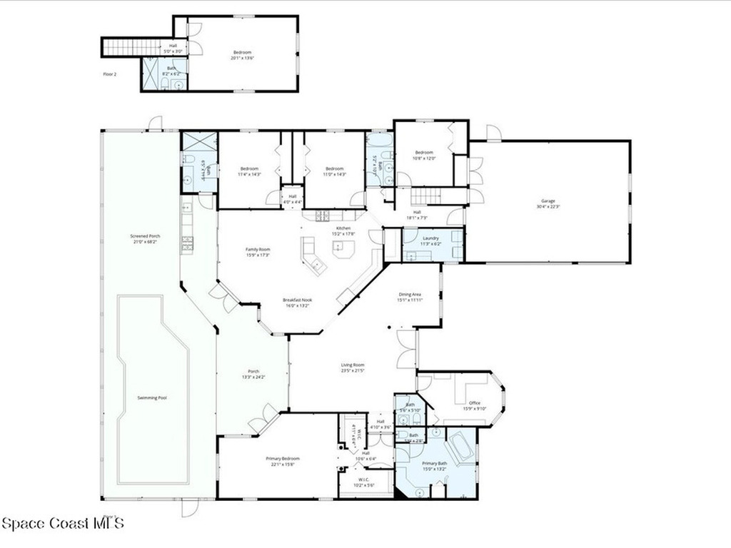
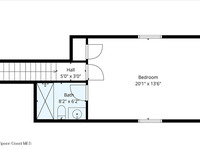
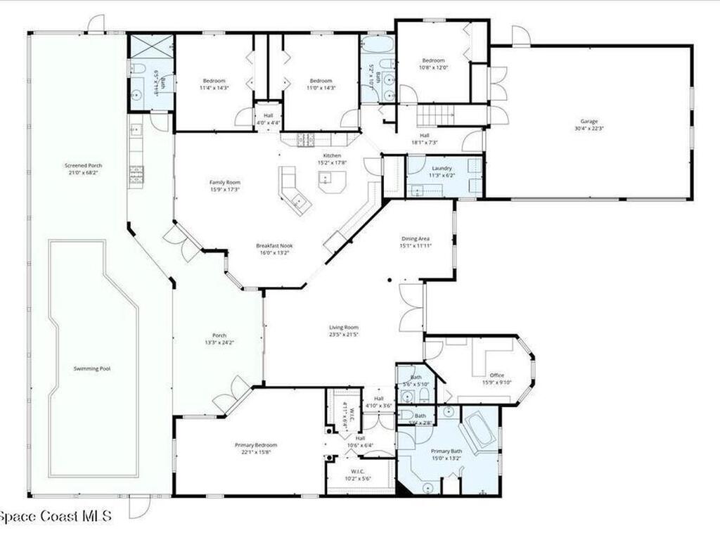
Property Description
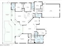
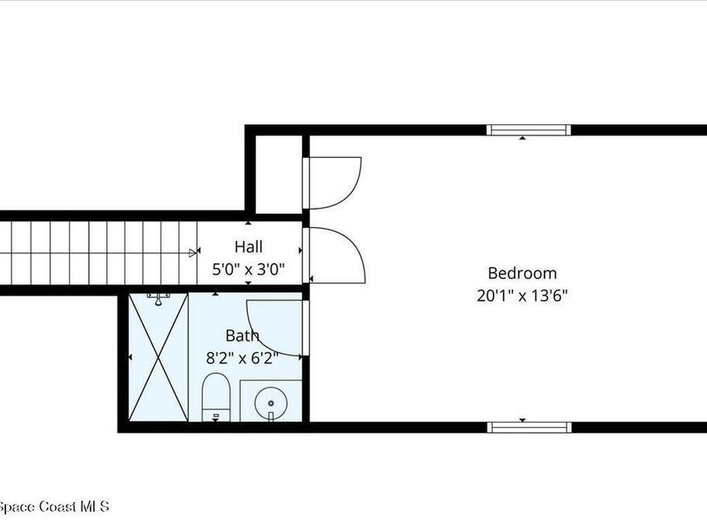
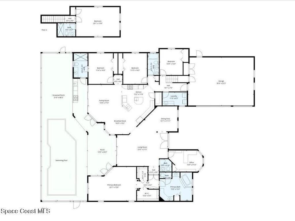
Discover this stunning custom-built pool home in the prestigious gated Colfax Landing community of West Viera. This expansive residence features 6 bedrooms (or 4 bedrooms plus an office and bonus room) and five bathrooms, with a 3 car garage- ideal for family living. Bask in the elegance of tray ceilings soaring up to 14 ft in areas, crown molding, 8 foot doors, plantation shutters, and an abundance of sliders and French doors leading to a tropical lanai that floods the interior with natural light. The gourmet kitchen boasts custom cabinetry, granite countertops, soft-close drawers, under-cabinet lighting, SS appliances, a 5 burner gas range and a spacious pantry. Step outside to the private screened-in heated pool with a tranquil water feature, covered seating area, dining area and a summer kitchen perfect for family BBQS. Located in a top-rated school zone with community amenities nearby, this home offers both luxury and convenience, just a 30 minute drive to the beach and close to
Exterior Features
Outdoor Kitchen, Storm Shutters
Interior Features
Breakfast Bar, Ceiling Fan(s), Eat-in Kitchen, Entrance Foyer, Guest Suite, His and Hers Closets, In-Law Floorplan, Kitchen Island, Open Floorplan, Pantry, Primary Bathroom -Tub with Separate Shower, Primary Downstairs, Split Bedrooms, Vaulted Ceiling(s), Walk-In Closet(s)
Equipment / Appliances
Convection Oven, Dishwasher, Disposal, Dryer, Gas Cooktop, Gas Water Heater, Microwave, Refrigerator, Washer
Street
Thurloe Drive
County
Brevard
Listing Status
Active
Home Style
Contemporary
Floor
Carpet, Tile, Wood
Pool
Yes
Private Pool
Yes
Pool Description
Heated, Salt Water, Screen Enclosure, Waterfall
Utilities
Cable Connected, Electricity Connected, Natural Gas Connected, Sewer Connected, Water Connected
Waterfront
No
ZipCode
Subdivision
Colfax Landing Phase 2
Construction
Block, Stone, Stucco
Roof Type
Tile
Tax Amount
$0.00
Furnishings
Unfurnished
Home View
Pool
Parking
Attached, Garage, Garage Door Opener
HOA Dues
$0.00
PDF Downloads
3460 Thurloe DriveRockledge, FL 32955
This listing is courtesy of Dale Sorensen Real Estate Inc..

Real Estate and Luxury homes in Melbourne Beach, Merritt Island, Cocoa Beach, Lansing Island, Tortoise Island, Vero Beach, Barefoot Bay, Cape Canaveral, Cocoa, Grant Valkaria, Indialantic, Indian Harbour Beach, Malabar, Melbourne, Palm Bay, Rockledge, Satellite Beach, Titusville, West Melbourne and surrounding areas in Brevard and Central Florida.
Property Listing Data contained within this site is the property of Brevard MLS and is provided for consumers looking to purchase real estate. Any other use is prohibited. We are not responsible for errors and omissions on this web site. All information contained herein should be deemed reliable but not guaranteed, all representations are approximate, and individual verification is recommended.