300 S Banana River Boulevard #205
Cocoa Beach, FL 32931
MLS #: 1066688
Property Type: Residential
Beds: 3
Full Baths: 2.00
List Date: 01-16-2026
Year Built: 1981
1,632 Sq. Ft.
Property Description
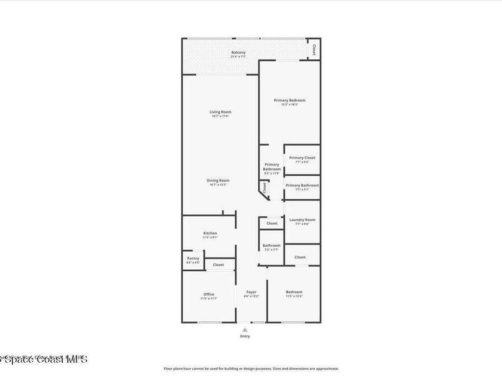
Welcome to your Banana River sanctuary! This beautifully updated 3-bedroom, 2-bath waterfront condo at Colonial House offers 1, 632 sq ft of coastal living with front-row seats to rocket launches and wildlife. Watch dolphins and manatees glide by from your private screened balcony overlooking the navigable canal to the Banana River. Inside, you'll find a bright open floor plan with luxury vinyl flooring throughout, a chef's kitchen with quartz countertops and stainless appliances, elegant shiplap accents, modern barn doors, and two completely renovated bathrooms with marble-look tile and custom vanities. The primary suite boasts a spa-inspired ensuite with dual vanities. Impact-rated windows and sliders provide peace of mind and energy efficiency. Enjoy resort-style amenities including community pool, private boat docks with slip availability, fishing pier, and kayak storage. Your private 1-car garage plus ample guest parking complete this waterfront retreat. Perfect for full-time
Exterior Features
Balcony, Boat Slip, Dock, Impact Windows, Outdoor Shower
Interior Features
Ceiling Fan(s), Open Floorplan, Pantry, Smart Thermostat, Split Bedrooms
Equipment / Appliances
Dishwasher, Disposal, Electric Oven, Electric Range, Microwave, Refrigerator
Street
Banana River Boulevard
County
Brevard
Listing Status
Active
Tax Year
2025
Pool
No
Private Pool
No
Utilities
Cable Connected, Electricity Connected, Sewer Connected, Water Connected
Waterfront
Yes
Water Type
ZipCode
Subdivision
Colonial House Condo
Construction
Block, Concrete, Stucco
Roof Type
Tile
Tax Amount
$6,094.44
Furnishings
Unfurnished
Home View
Canal, Marina, Pool, River
Parking
Additional Parking, Detached, Garage, Garage Door Opener, Guest
HOA Dues
$0.00
300 S Banana River Boulevard #205Cocoa Beach, FL 32931
This listing is courtesy of LIV Signature Real Estate, LLC.

Real Estate and Luxury homes in Melbourne Beach, Merritt Island, Cocoa Beach, Lansing Island, Tortoise Island, Vero Beach, Barefoot Bay, Cape Canaveral, Cocoa, Grant Valkaria, Indialantic, Indian Harbour Beach, Malabar, Melbourne, Palm Bay, Rockledge, Satellite Beach, Titusville, West Melbourne and surrounding areas in Brevard and Central Florida.
Property Listing Data contained within this site is the property of Brevard MLS and is provided for consumers looking to purchase real estate. Any other use is prohibited. We are not responsible for errors and omissions on this web site. All information contained herein should be deemed reliable but not guaranteed, all representations are approximate, and individual verification is recommended.