119 Casseekee Trail #3-119
Melbourne Beach, FL 32951
MLS #: 1067018
Property Type: Residential
Beds: 2
Full Baths: 2.00
List Date: 01-20-2026
Year Built: 1990
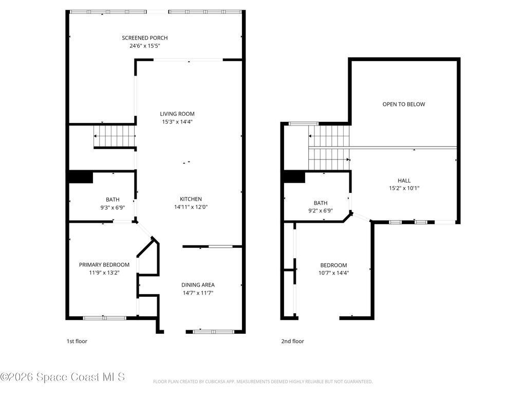
1,599 Sq. Ft.
Property Description
Live the Ultimate Ocean-to-River Lifestyle in Lighthouse Cove!Welcome to your slice of paradise in the highly desirable Lighthouse Cove community of Melbourne Beach--where every day feels like a vacation. This stunning two-story condo is move-in ready and perfectly positioned for the best of coastal living. Bring your fishing pole, beachwear, and flip-flops--you're home.Step inside to find a beautifully updated interior featuring a modern kitchen with granite countertops, tile backsplash, and brand-new appliances, including a new refrigerator (2024) and new dishwasher (2025). Major systems have already been taken care of with a new roof (2021), brand-new A/C (June 2025), and all new plumbing pipes, giving you peace of mind for years to come.Tile flooring flows seamlessly across both levels, creating a clean, coastal feel throughout. Enjoy the added bonus of a 249 sq ft Florida room under central A/C--perfect for a home office, lounge, or guest retreat
Exterior Features
Boat Ramp - Private, Other, Outdoor Shower
Interior Features
Ceiling Fan(s), Primary Bathroom - Tub with Shower, Smart Thermostat, Split Bedrooms
Equipment / Appliances
Disposal, Dryer, Electric Oven, Electric Water Heater, ENERGY STAR Qualified Dishwasher, ENERGY STAR Qualified Refrigerator, Microwave, Washer
Street
Casseekee Trail
County
Brevard
Listing Status
Active
Floor
Carpet, Tile
Tax Year
2025
Pool
No
Private Pool
No
Utilities
Electricity Connected, Water Connected
Additional Rooms
Bedroom 2, Family Room, Florida Room, Loft, Primary Bedroom
Waterfront
No
ZipCode
Subdivision
Lighthouse Cove Condo Ph I
Construction
Concrete, Frame, Stucco
Tax Amount
$3,725.48
Furnishings
Unfurnished
Parking
Garage, Garage Door Opener, Other
HOA Dues
$0.00
119 Casseekee Trail #3-119Melbourne Beach, FL 32951
This listing is courtesy of RE/MAX Elite.

Real Estate and Luxury homes in Melbourne Beach, Merritt Island, Cocoa Beach, Lansing Island, Tortoise Island, Vero Beach, Barefoot Bay, Cape Canaveral, Cocoa, Grant Valkaria, Indialantic, Indian Harbour Beach, Malabar, Melbourne, Palm Bay, Rockledge, Satellite Beach, Titusville, West Melbourne and surrounding areas in Brevard and Central Florida.
Property Listing Data contained within this site is the property of Brevard MLS and is provided for consumers looking to purchase real estate. Any other use is prohibited. We are not responsible for errors and omissions on this web site. All information contained herein should be deemed reliable but not guaranteed, all representations are approximate, and individual verification is recommended.