3480 Rixford Way
Palm Bay, FL 32909
MLS #: 1067655
Property Type: Residential
Beds: 5
Full Baths: 4.00
Half Baths: 1
List Date: 01-27-2026
Year Built: 2024
2,751 Sq. Ft.
Property Description
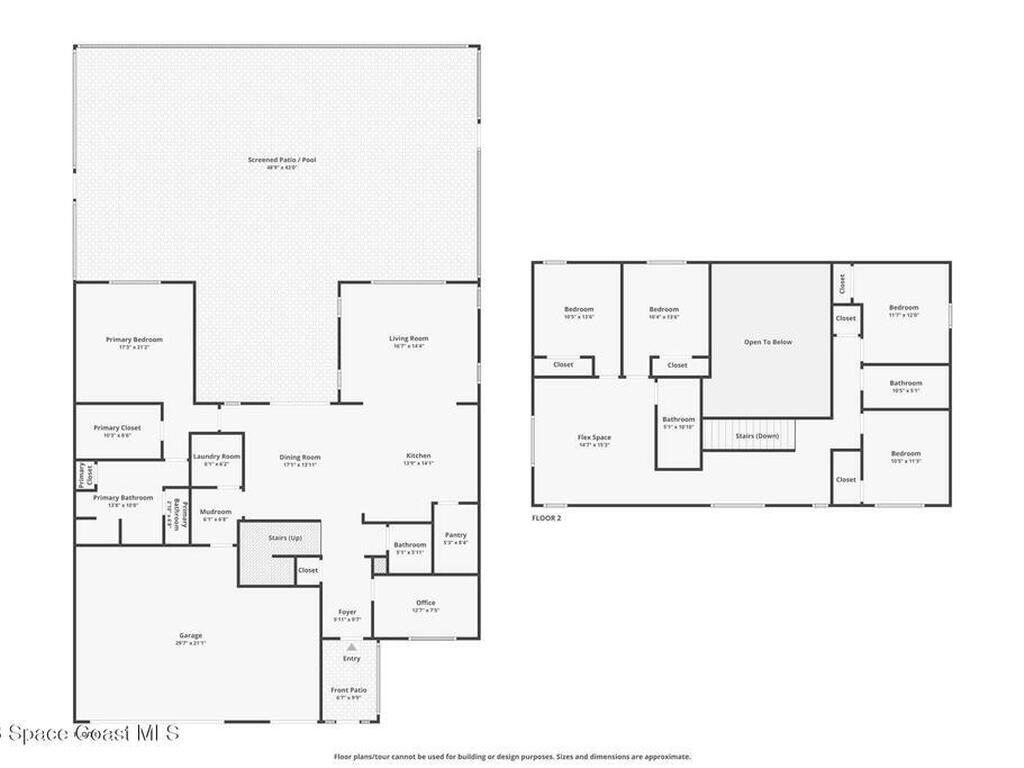
Built in 2024 with over $150, 000 in upgrades, this exceptional two-story home is located in the gated Courtyard at Waterstone community in Palm Bay. Offering nearly 2, 800 sq ft, this 5-bedroom, 3.5-bath residence features a 3-car garage, a private home office, and a spacious upstairs loft. The open-concept design showcases a gourmet kitchen with quartz countertops, oversized island, sleek white cabinetry, and designer lighting. Upgraded tile flows throughout the main living areas, while carpeted bedrooms provide added comfort. Custom accent walls throughout the home add a modern, upscale touch. Step outside to your private backyard retreat featuring a fully screened, heated pool and spa overlooking a serene lake and beautifully landscaped views. Conveniently located near the future Emerald Lakes master-planned development, this home combines modern construction, luxury upgrades, and long-term growth in a highly desirable location.
Exterior Features
Storm Shutters
Interior Features
Breakfast Bar, Butler Pantry, Ceiling Fan(s), Eat-in Kitchen, Entrance Foyer, His and Hers Closets, Kitchen Island, Open Floorplan, Pantry, Primary Bathroom - Shower No Tub, Primary Downstairs, Split Bedrooms, Walk-In Closet(s)
Equipment / Appliances
Dishwasher, Disposal, Dryer, Electric Cooktop, Electric Range, Microwave, Refrigerator, Washer, Water Softener Owned
Street
Rixford Way
County
Brevard
Listing Status
Active
Home Style
Contemporary, Multi Generational
Floor
Carpet, Tile
Tax Year
2025
Pool
Yes
Private Pool
Yes
Pool Description
Electric Heat, Heated, In Ground, Salt Water, Screen Enclosure, Waterfall
Utilities
Cable Connected, Electricity Connected, Sewer Connected, Water Connected
Waterfront
Yes
Water Type
ZipCode
Subdivision
COURTYARDS AT WATERSTONE PH I
Construction
Block, Concrete, Frame, Stone, Stucco
Roof Type
Shingle
Tax Amount
$72.70
Furnishings
Unfurnished
Parking
Attached, Garage, Garage Door Opener
HOA Dues
$0.00
3480 Rixford WayPalm Bay, FL 32909
This listing is courtesy of EXP Realty, LLC.

Real Estate and Luxury homes in Melbourne Beach, Merritt Island, Cocoa Beach, Lansing Island, Tortoise Island, Vero Beach, Barefoot Bay, Cape Canaveral, Cocoa, Grant Valkaria, Indialantic, Indian Harbour Beach, Malabar, Melbourne, Palm Bay, Rockledge, Satellite Beach, Titusville, West Melbourne and surrounding areas in Brevard and Central Florida.
Property Listing Data contained within this site is the property of Brevard MLS and is provided for consumers looking to purchase real estate. Any other use is prohibited. We are not responsible for errors and omissions on this web site. All information contained herein should be deemed reliable but not guaranteed, all representations are approximate, and individual verification is recommended.