2319 Hunterfield Road
Maitland, FL 32751
MLS #: 1068069
Property Type: Residential
Beds: 4
Full Baths: 2.00
List Date: 01-30-2026
Year Built: 1962
1,798 Sq. Ft.
Zoning: Residential
Property Description
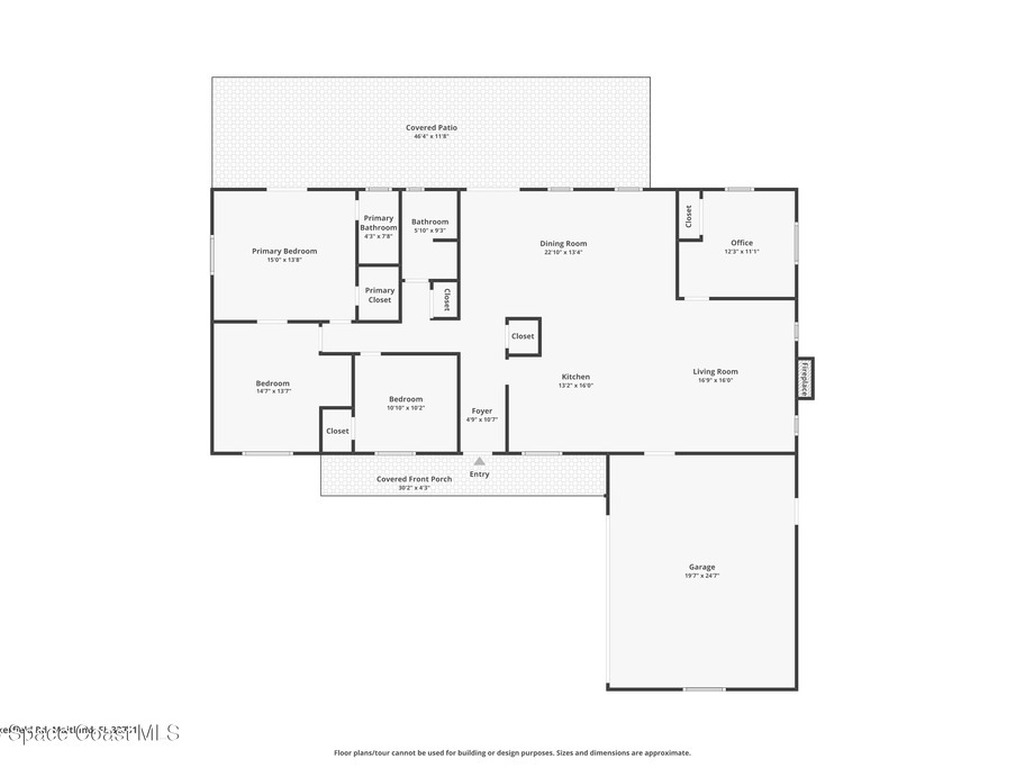
Situated on a desirable corner lot in the lovely English Estates, this beautifully remodeled 4BR / 2BA home blends style with comfort. An open floor plan, LVP flooring throughout (no carpet), and abundant windows create a bright, airy atmosphere filled with natural light. At the heart of the home is a stunning eat-in kitchen with quartz countertops, Whirlpool appliances, and a spacious L-shaped island accented by woven pendant lighting; perfect for entertaining or casual meals. The cozy living room invites you to unwind with an authentic masonry wood-burning fireplace. The primary suite offers a serene retreat with an en-suite bath offering marble countertops and flooring, along with a sleek porcelain tiled glass-door shower. The fourth bedroom has been converted into a generous primary closet and can easily be reverted to a bedroom if desired. French doors lead to the privately fenced-in backyard; enjoy al fresco dining under the covered lanai or take a dip in the sparkling pool.
Interior Features
Breakfast Bar, Built-in Features, Ceiling Fan(s), Eat-in Kitchen, Entrance Foyer, Kitchen Island, Open Floorplan, Primary Bathroom - Shower No Tub, Smart Thermostat, Split Bedrooms, Walk-In Closet(s)
Equipment / Appliances
Dishwasher, Disposal, Dryer, Electric Oven, Electric Range, Electric Water Heater, Microwave, Refrigerator, Washer
Street
Hunterfield Road
County
Seminole
Listing Status
Active
Floor
Marble, Vinyl
Tax Year
2025
Pool
Yes
Private Pool
Yes
Pool Description
In Ground, Pool Sweep
Utilities
Cable Available, Electricity Connected, Water Connected
Waterfront
No
ZipCode
Subdivision
None
Construction
Block, Concrete
Roof Type
Shingle
Tax Amount
$6,236.76
Fireplace
Other, Wood Burning
Furnishings
Unfurnished
Home View
Pool
Parking
Attached, Garage, Garage Door Opener, RV Access/Parking
HOA Dues
$0.00
2319 Hunterfield RoadMaitland, FL 32751
This listing is courtesy of Misty Morrison Real Estate.

Real Estate and Luxury homes in Melbourne Beach, Merritt Island, Cocoa Beach, Lansing Island, Tortoise Island, Vero Beach, Barefoot Bay, Cape Canaveral, Cocoa, Grant Valkaria, Indialantic, Indian Harbour Beach, Malabar, Melbourne, Palm Bay, Rockledge, Satellite Beach, Titusville, West Melbourne and surrounding areas in Brevard and Central Florida.
Property Listing Data contained within this site is the property of Brevard MLS and is provided for consumers looking to purchase real estate. Any other use is prohibited. We are not responsible for errors and omissions on this web site. All information contained herein should be deemed reliable but not guaranteed, all representations are approximate, and individual verification is recommended.