3521 Watergrass Street
West Melbourne, FL 32904
MLS #: 1068187
Property Type: Residential
Beds: 5
Full Baths: 4.00
List Date: 02-01-2026
Year Built: 2017
3,496 Sq. Ft.
Property Description
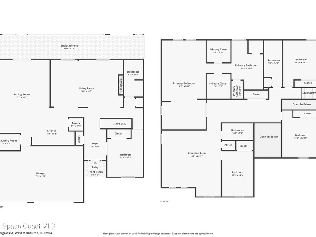
Situated on a .35-acre lot in a highly sought-after community, this spacious pool home offers a balanced layout ideal for everyday living and entertaining. The main level features an open kitchen, living, and dining area, a conveniently located laundry room, and a bedroom currently used as an office. Upstairs includes four bedrooms, three full bathrooms, and a secondary living area ideal for a media or playroom. The primary suite offers a generous sitting area, a custom barn door leading to spacious his-and-hers closets, and a spa-like en-suite bath with a relaxing garden tub. The fully fenced backyard features a saltwater pool and ample space for gatherings or relaxation. A screened-in patio provides year-round enjoyment while overlooking the water. Recent updates include a new roof (2023), AC (2023), and fresh exterior paint. Resort-style amenities include a pool, playground, tennis courts, and a fitness area. Don't miss the opportunity to make this home yours.
Exterior Features
Storm Shutters
Interior Features
Ceiling Fan(s), Kitchen Island, Pantry, Primary Bathroom -Tub with Separate Shower, Walk-In Closet(s)
Equipment / Appliances
Dishwasher, Disposal, Electric Range, Electric Water Heater, Microwave, Refrigerator
Street
Watergrass Street
County
Brevard
Listing Status
Active Under Contract
Home Style
Other
Floor
Carpet, Tile
Tax Year
2025
Pool
Yes
Private Pool
Yes
Pool Description
In Ground, Salt Water
Utilities
Electricity Connected, Water Connected
Waterfront
No
ZipCode
Subdivision
Sawgrass Lakes Phase One
Construction
Concrete, Frame, Stucco
Tax Amount
$5,367.70
Furnishings
Unfurnished
Home View
Pond, Pool
Parking
Attached, Garage
HOA Dues
$0.00
3521 Watergrass StreetWest Melbourne, FL 32904
This listing is courtesy of Premium Properties Real Estate.

Real Estate and Luxury homes in Melbourne Beach, Merritt Island, Cocoa Beach, Lansing Island, Tortoise Island, Vero Beach, Barefoot Bay, Cape Canaveral, Cocoa, Grant Valkaria, Indialantic, Indian Harbour Beach, Malabar, Melbourne, Palm Bay, Rockledge, Satellite Beach, Titusville, West Melbourne and surrounding areas in Brevard and Central Florida.
Property Listing Data contained within this site is the property of Brevard MLS and is provided for consumers looking to purchase real estate. Any other use is prohibited. We are not responsible for errors and omissions on this web site. All information contained herein should be deemed reliable but not guaranteed, all representations are approximate, and individual verification is recommended.