2890 Harper Road
Melbourne, FL 32904
MLS #: 1068496
Property Type: Commercial
List Date: 02-04-2026
Year Built: 1980
0 Sq. Ft.
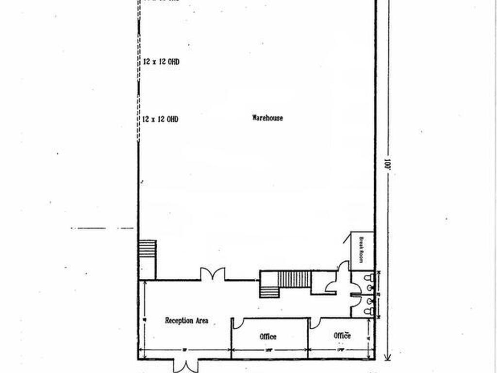
7,380 Total Sq. Ft.
Property Description
Situated on a full 1-acre lot, this property features a 7, 380 SF concrete block industrial building complemented by a 1/2-acre fenced and secure storage yard. The site is ideally suited for industrial users requiring outdoor space for vehicle parking, material storage, or exterior operations.The building includes 2, 400 SF of office space, efficiently divided between the first and second floors. The second floor offers a private executive office suite, complete with a wet bar, private restroom, and shower, providing a rare combination of functionality and comfort.The warehouse area is well-equipped with four (4) 12' x 12' grade-level loading doors, allowing for efficient loading, unloading, and operational flexibility.This property offers an excellent blend of secure yard space, functional office buildout, and high-utility warehouse features, making it ideal for a wide range of industrial users.
2890 Harper RoadMelbourne, FL 32904
This listing is courtesy of SouthTrend Realty.

Real Estate and Luxury homes in Melbourne Beach, Merritt Island, Cocoa Beach, Lansing Island, Tortoise Island, Vero Beach, Barefoot Bay, Cape Canaveral, Cocoa, Grant Valkaria, Indialantic, Indian Harbour Beach, Malabar, Melbourne, Palm Bay, Rockledge, Satellite Beach, Titusville, West Melbourne and surrounding areas in Brevard and Central Florida.
Property Listing Data contained within this site is the property of Brevard MLS and is provided for consumers looking to purchase real estate. Any other use is prohibited. We are not responsible for errors and omissions on this web site. All information contained herein should be deemed reliable but not guaranteed, all representations are approximate, and individual verification is recommended.