1267 Rockledge Boulevard
Rockledge, FL 32955
MLS #: 1068616
Property Type: Commercial
Full Baths: 2.00
List Date: 02-05-2026
Year Built: 1983
0 Sq. Ft.
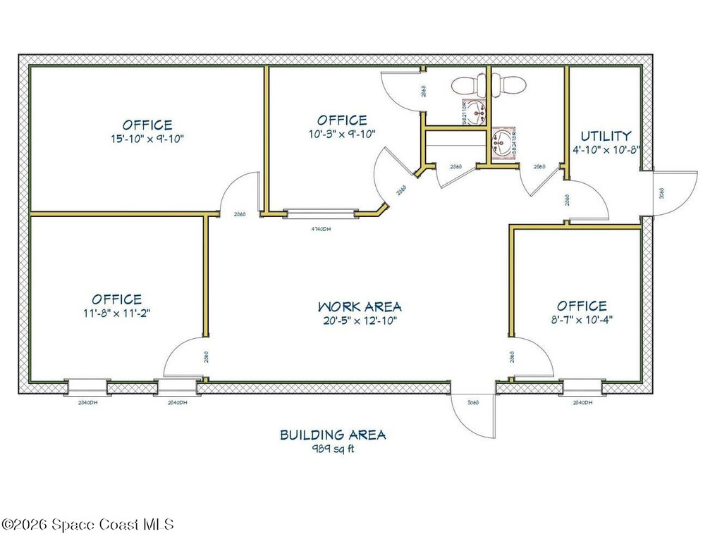
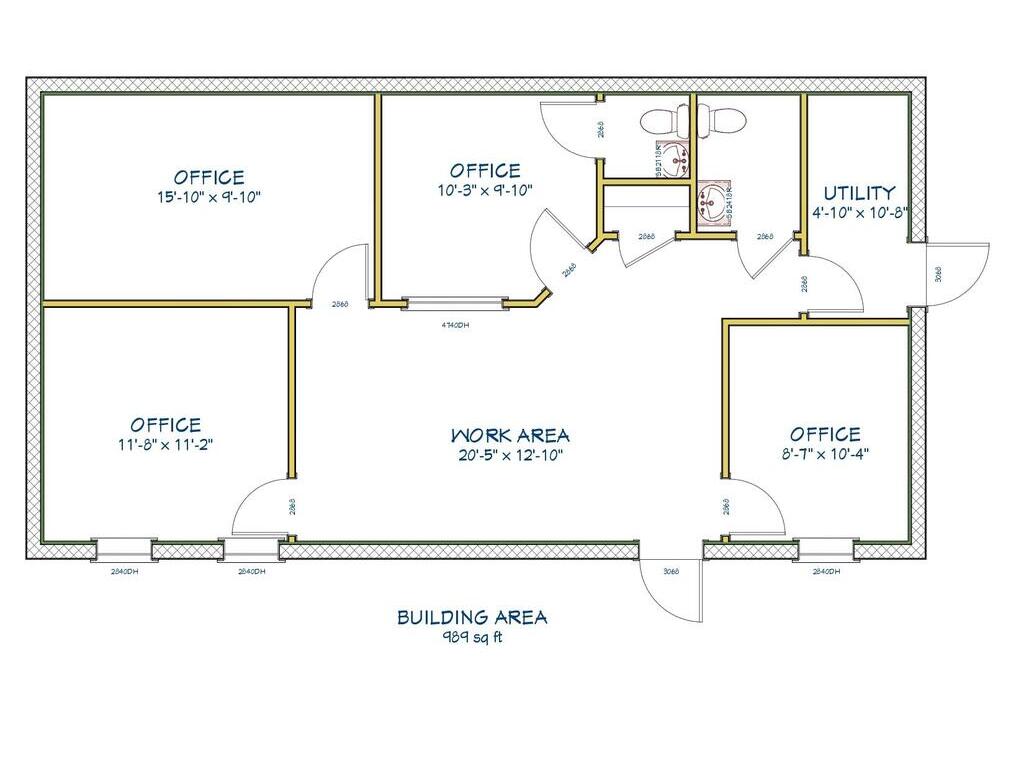
989 Total Sq. Ft.
Property Description
Like new free standing office building on US 1. Four private offices, 2 bathrooms and reception area. Currently, the wall in the front to the left has been removed, leaving 3 private offices, but can be put back. Rent is $1975 monthly (includes lawn maintenace). Tenant pays for electric and water. There are 7 parking spaces. See floor plan in the Document Tab.
1267 Rockledge BoulevardRockledge, FL 32955
This listing is courtesy of Rahal Real Estate LLC.

Real Estate and Luxury homes in Melbourne Beach, Merritt Island, Cocoa Beach, Lansing Island, Tortoise Island, Vero Beach, Barefoot Bay, Cape Canaveral, Cocoa, Grant Valkaria, Indialantic, Indian Harbour Beach, Malabar, Melbourne, Palm Bay, Rockledge, Satellite Beach, Titusville, West Melbourne and surrounding areas in Brevard and Central Florida.
Property Listing Data contained within this site is the property of Brevard MLS and is provided for consumers looking to purchase real estate. Any other use is prohibited. We are not responsible for errors and omissions on this web site. All information contained herein should be deemed reliable but not guaranteed, all representations are approximate, and individual verification is recommended.