1705 24th Avenue
Vero Beach, FL 32960
MLS #: 1068668
Property Type: Residential
Beds: 3
Full Baths: 2.00
List Date: 02-05-2026
Year Built: 1955
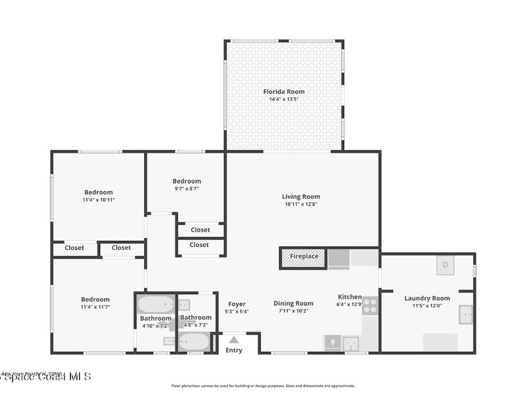
1,400 Sq. Ft.
Property Description
entrally located, this move-in ready Vero Beach home offers walkable access to parks, shops, beaches, and downtown--perfect for enjoying the Florida lifestyle. Major upgrades within the last two years include new electrical wiring and panel, new central A/C with ductwork, insulated attic, new roof, and a new front bay kitchen window. All work completed with permits and receipts. Features include an enclosed Florida/sunroom (not under air), laundry/tool room, side-entry carport, and fenced-in yard. Cosmetic updates allow room to add your personal touch. Schedule an appointment today!
Interior Features
Ceiling Fan(s), Open Floorplan, Primary Downstairs
Equipment / Appliances
Electric Oven, Electric Range, Microwave, Refrigerator
Street
24th Avenue
County
Indian River
Listing Status
Active
Floor
Terrazzo
Tax Year
2025
Pool
No
Private Pool
No
Utilities
Other
Additional Rooms
Bathroom 1, Bathroom 2, Bathroom 3, Kitchen, Living Room
Waterfront
No
ZipCode
Subdivision
None
Construction
Block, Concrete
Tax Amount
$1,647.75
Furnishings
Unfurnished
Parking
Carport, Off Street
HOA Dues
$0.00
PDF Downloads
1705 24th AvenueVero Beach, FL 32960
This listing is courtesy of Real Broker LLC.

Real Estate and Luxury homes in Melbourne Beach, Merritt Island, Cocoa Beach, Lansing Island, Tortoise Island, Vero Beach, Barefoot Bay, Cape Canaveral, Cocoa, Grant Valkaria, Indialantic, Indian Harbour Beach, Malabar, Melbourne, Palm Bay, Rockledge, Satellite Beach, Titusville, West Melbourne and surrounding areas in Brevard and Central Florida.
Property Listing Data contained within this site is the property of Brevard MLS and is provided for consumers looking to purchase real estate. Any other use is prohibited. We are not responsible for errors and omissions on this web site. All information contained herein should be deemed reliable but not guaranteed, all representations are approximate, and individual verification is recommended.