3031 Southern Oaks Drive
Merritt Island, FL 32952
MLS #: 1069205
Property Type: Residential
Beds: 3
Full Baths: 3.00
List Date: 02-12-2026
Year Built: 2001
3,214 Sq. Ft.
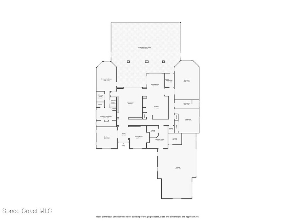
Property Description
Welcome to luxury living in the heart of Merritt Island at The Plantation! This stunning 3-Bed/3-Bath home on an expansive lot showcases an open floor plan with elegant formal living and dining rooms. The chef's kitchen boasts hardwood cabinets, a center island with range, a generous breakfast bar, and a walk-in pantry. Through pocket sliding glass doors, enter your resort-style backyard featuring an outdoor summer kitchen, paver patio, and screen-enclosed solar-heated infinity pool with serene lake views. The spa-like primary ensuite bath features a lighted whirlpool bath, dual vanities, and his-and-hers walk-in showers. Highlights include built-in features, lighted & tiered ceilings, a gas fireplace, storm shutters, fresh paint inside and out, an expansive laundry room, and an oversized 3-car garage. The circular paver driveway welcomes you to this tree-lined sanctuary with lush tropical landscaping. Don't miss your chance to own this stunning lakefront beauty!
Exterior Features
Outdoor Kitchen, Outdoor Shower, Storm Shutters
Interior Features
Breakfast Bar, Breakfast Nook, Built-in Features, Ceiling Fan(s), Central Vacuum, Eat-in Kitchen, His and Hers Closets, Kitchen Island, Open Floorplan, Pantry, Primary Bathroom -Tub with Separate Shower, Smart Thermostat, Solar Tube(s), Split Bedrooms, Walk-In Closet(s)
Equipment / Appliances
Dishwasher, Disposal, Dryer, Electric Oven, Gas Cooktop, Gas Range, Microwave, Refrigerator, Tankless Water Heater, Washer
Street
Southern Oaks Drive
County
Brevard
Listing Status
Active
Floor
Carpet, Tile, Wood
Tax Year
2025
Pool
Yes
Private Pool
Yes
Pool Description
In Ground, Other, Salt Water, Screen Enclosure, Solar Heat, Waterfall
Utilities
Cable Available, Electricity Available, Electricity Connected, Water Available, Water Connected
Additional Rooms
Bathroom 2, Bathroom 3, Bedroom 2, Bedroom 3, Bonus Room, Dining Room, Kitchen, Laundry, Living Room, Other Room, Primary Bathroom, Primary Bedroom
Waterfront
Yes
Water Type
ZipCode
Subdivision
The Plantation Phase 1
Construction
Block, Concrete, Stucco
Roof Type
Shingle
Tax Amount
$6,627.37
Fireplace
Gas
Furnishings
Partially
Home View
Lake, Pond, Pool, Water
Parking
Additional Parking, Circular Driveway, Garage, Garage Door Opener, Guest
HOA Dues
$0.00
PDF Downloads
3031 Southern Oaks DriveMerritt Island, FL 32952
This listing is courtesy of Florida Lifestyle Realty LLC.

Real Estate and Luxury homes in Melbourne Beach, Merritt Island, Cocoa Beach, Lansing Island, Tortoise Island, Vero Beach, Barefoot Bay, Cape Canaveral, Cocoa, Grant Valkaria, Indialantic, Indian Harbour Beach, Malabar, Melbourne, Palm Bay, Rockledge, Satellite Beach, Titusville, West Melbourne and surrounding areas in Brevard and Central Florida.
Property Listing Data contained within this site is the property of Brevard MLS and is provided for consumers looking to purchase real estate. Any other use is prohibited. We are not responsible for errors and omissions on this web site. All information contained herein should be deemed reliable but not guaranteed, all representations are approximate, and individual verification is recommended.