300 Amberjack Place
Melbourne Beach, FL 32951
MLS #: 1069234
Property Type: Residential
Beds: 6
Full Baths: 4.00
List Date: 02-12-2026
Year Built: 1989
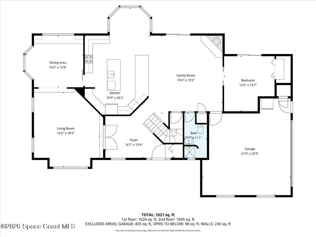
3,507 Sq. Ft.
Zoning: Residential
Property Description
Tucked into a desirable coastal community this beautifully updated home offers the Florida lifestyle at its best. Conveniently located near the beach local parks and in close proximity to A-rated Gemini Elementary. The quiet neighborhood setting provides a relaxed and inviting atmosphere. The home features tall ceilings and has been freshly painted creating a bright open feel throughout.The remodeled kitchen showcases quartz countertops white appliances and stylish floating shelves ideal for both everyday living and entertaining. Hurricane-rated impact glass and doors provide added peace of mind along with a newer roof installed in 2021.Situated on an oversized corner lot the outdoor space is designed for enjoyment with fresh landscaping a vinyl fenced backyard and a pool with newly resurfaced finish. Enjoy scenic views of the golf course and lake offering a serene backdrop and enhanced privacy. Move-in ready and thoughtfully upgraded this home delivers comfort convenience and coastal
Exterior Features
Impact Windows, Outdoor Shower
Interior Features
Breakfast Nook, Built-in Features, Ceiling Fan(s), Eat-in Kitchen, Jack and Jill Bath, Kitchen Island, Open Floorplan, Primary Bathroom -Tub with Separate Shower, Walk-In Closet(s)
Equipment / Appliances
Convection Oven, Dishwasher, Double Oven, Electric Oven, Electric Range, Microwave, Refrigerator
Street
Amberjack Place
County
Brevard
Listing Status
Active
Home Style
Other
Floor
Carpet, Tile
Tax Year
2025
Pool
Yes
Private Pool
Yes
Pool Description
In Ground
Utilities
Electricity Connected, Sewer Connected, Water Connected
Waterfront
No
ZipCode
Subdivision
Rivers Edge Subd
Construction
Frame, Stucco
Roof Type
Shingle
Tax Amount
$1,026.49
Furnishings
Unfurnished
Home View
Golf Course, Lake
Parking
Garage, Garage Door Opener, On Street
HOA Dues
$0.00
PDF Downloads
300 Amberjack PlaceMelbourne Beach, FL 32951
This listing is courtesy of One Sotheby's International.

Real Estate and Luxury homes in Melbourne Beach, Merritt Island, Cocoa Beach, Lansing Island, Tortoise Island, Vero Beach, Barefoot Bay, Cape Canaveral, Cocoa, Grant Valkaria, Indialantic, Indian Harbour Beach, Malabar, Melbourne, Palm Bay, Rockledge, Satellite Beach, Titusville, West Melbourne and surrounding areas in Brevard and Central Florida.
Property Listing Data contained within this site is the property of Brevard MLS and is provided for consumers looking to purchase real estate. Any other use is prohibited. We are not responsible for errors and omissions on this web site. All information contained herein should be deemed reliable but not guaranteed, all representations are approximate, and individual verification is recommended.