612 Baywood Drive
Sanford, FL 32771
MLS #: 1069928
Property Type: Residential
Beds: 3
Full Baths: 3.00
Half Baths: 1
List Date: 02-20-2026
Year Built: 1960
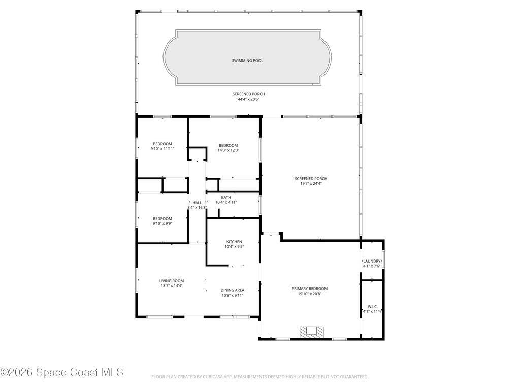
1,612 Sq. Ft.
Property Description
Value-add opportunity in Seminole County with strong upside and flexible layout. This block home features a separate entrance to a private area that could be transformed into an in-law suite or income-producing space after renovation (buyer to verify permitted use). Enjoy a screen-enclosed pool, multiple living areas, and a floor plan ready for reconfiguration to maximize value.The interior requires updates, making it ideal for buyers looking to renovate and build long-term equity. Located in a no HOA community and zoned for Seminole County schools, including Lake Mary High School, with convenient access to major roads, shopping, and dining.Cash or renovation-friendly financing preferred. Schedule your showing and explore the potential.
Street
Baywood Drive
County
Seminole
Listing Status
Active
Tax Year
2025
Pool
Yes
Private Pool
Yes
Pool Description
In Ground
Utilities
Electricity Connected, Water Connected
Additional Rooms
Bedroom 2, Bedroom 3, Primary Bedroom
Waterfront
No
ZipCode
Subdivision
None
Construction
Block
Tax Amount
$1,123.88
Furnishings
Unfurnished
Parking
Carport
HOA Dues
$0.00
612 Baywood DriveSanford, FL 32771
This listing is courtesy of La Rosa Realty CW Prop LLC.

Real Estate and Luxury homes in Melbourne Beach, Merritt Island, Cocoa Beach, Lansing Island, Tortoise Island, Vero Beach, Barefoot Bay, Cape Canaveral, Cocoa, Grant Valkaria, Indialantic, Indian Harbour Beach, Malabar, Melbourne, Palm Bay, Rockledge, Satellite Beach, Titusville, West Melbourne and surrounding areas in Brevard and Central Florida.
Property Listing Data contained within this site is the property of Brevard MLS and is provided for consumers looking to purchase real estate. Any other use is prohibited. We are not responsible for errors and omissions on this web site. All information contained herein should be deemed reliable but not guaranteed, all representations are approximate, and individual verification is recommended.