1795 Cogswell Street #101
Rockledge, FL 32955
MLS #: 1070064
Property Type: Commercial
List Date: 02-23-2026
Year Built: 1974
0 Sq. Ft.
4,800 Total Sq. Ft.
Property Description
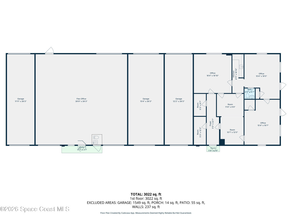
Unit 101 offers a functional office suite with reception, private offices, dedicated kitchen and private bathroom plus a separate warehouse bay (Bay 3) ideal for contractors, trades or storage users. The bay is not physically attached to the office and is accessed from the exterior, providing flexibility for operations and equipment. Property features a high-clearance roll-up door, insulated warehouse ceiling and a large gravel parking and yard area suitable for trucks, trailers and service vehicles in a convenient Rockledge industrial location near major corridors.
1795 Cogswell Street #101Rockledge, FL 32955
This listing is courtesy of 321 Realty, LLC.

Real Estate and Luxury homes in Melbourne Beach, Merritt Island, Cocoa Beach, Lansing Island, Tortoise Island, Vero Beach, Barefoot Bay, Cape Canaveral, Cocoa, Grant Valkaria, Indialantic, Indian Harbour Beach, Malabar, Melbourne, Palm Bay, Rockledge, Satellite Beach, Titusville, West Melbourne and surrounding areas in Brevard and Central Florida.
Property Listing Data contained within this site is the property of Brevard MLS and is provided for consumers looking to purchase real estate. Any other use is prohibited. We are not responsible for errors and omissions on this web site. All information contained herein should be deemed reliable but not guaranteed, all representations are approximate, and individual verification is recommended.