201 Mediterranean Way
Indian Harbour Beach, FL 32937
MLS #: 1070432
Property Type: Commercial
List Date: 02-26-2026
Year Built: 2026
0 Sq. Ft.
Property Description
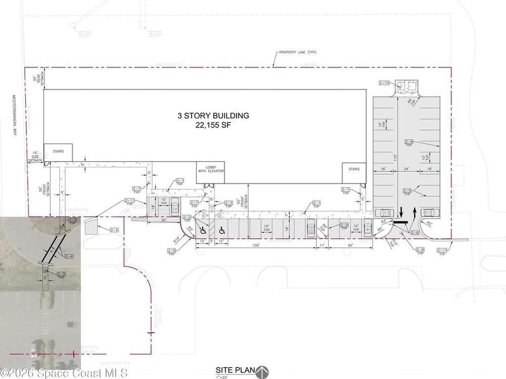
The subject property consists of a 1.31-acre parcel located in the City of Indian Harbour Beach and is currently zoned B-1 (General Commercial). Permitted uses under this zoning designation include retail, restaurant, professional office, religious facilities, and other commercial uses.In addition, the property has been granted a Conditional Land Use approval allowing for the development of an assisted living facility. The previous property owner planned a three-story, 96-bed assisted living facility on the site, but that design would require official city approval.The City has also indicated a willingness to rezone the property to R-2 (Residential), which would permit development at a density of seven (7) dwelling units per acre. At this density, the 1.31-acre site would support approximately nine (9) units, with the potential to accommodate up to ten (10) townhome lots, subject to final site design and municipal approvals, as illustrated in the attached conceptual site plan.
PDF Downloads
201 Mediterranean WayIndian Harbour Beach, FL 32937
This listing is courtesy of SouthTrend Realty.

Real Estate and Luxury homes in Melbourne Beach, Merritt Island, Cocoa Beach, Lansing Island, Tortoise Island, Vero Beach, Barefoot Bay, Cape Canaveral, Cocoa, Grant Valkaria, Indialantic, Indian Harbour Beach, Malabar, Melbourne, Palm Bay, Rockledge, Satellite Beach, Titusville, West Melbourne and surrounding areas in Brevard and Central Florida.
Property Listing Data contained within this site is the property of Brevard MLS and is provided for consumers looking to purchase real estate. Any other use is prohibited. We are not responsible for errors and omissions on this web site. All information contained herein should be deemed reliable but not guaranteed, all representations are approximate, and individual verification is recommended.