5 Lee Street
Cocoa, FL 32926
MLS #: 1070931
Property Type: Residential
Beds: 3
Full Baths: 2.00
List Date: 03-03-2026
Year Built: 1956
1,440 Sq. Ft.
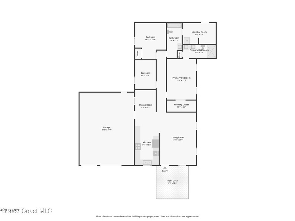
Property Description
Charming country-style living with modern updates and NO HOA! This 3-bedroom, 2-bath home sits on a spacious 0.45-acre lot, offering plenty of room to spread out while still being conveniently close to everyday essentials. Inside, you'll find 1, 440 sq ft of space with new LVP flooring in the main living areas, new laminate flooring in the primary bedroom, and fresh interior and exterior paint. Recent upgrades include a brand-new roof with transferable warranty, newer AC units with new ductwork and updated thermostat, and a 2024 septic system for peace of mind. The home also features updated lighting, new exterior door hardware, and a water softener/reverse osmosis system. Outside, enjoy the newly built and stained front deck, improved landscaping, concrete driveway repairs, a large garage, and additional outbuilding for extra storage or workspace. All of that and there's still plenty of room for a pool! This home is a great blend of quiet country charm and everyday convenience.
Equipment / Appliances
Dishwasher, Electric Range, Microwave, Refrigerator, Washer
Street
Lee Street
County
Brevard
Listing Status
Active
Home Style
Ranch
Floor
Laminate, Tile, Vinyl
Tax Year
2025
Pool
No
Private Pool
No
Utilities
Cable Available, Electricity Connected, Water Connected
Waterfront
No
ZipCode
Subdivision
Clearview Hgts Subd
Construction
Frame, Stucco
Roof Type
Shingle
Tax Amount
$2,412.90
Furnishings
Unfurnished
Parking
Garage
HOA Dues
$0.00
PDF Downloads
5 Lee StreetCocoa, FL 32926
This listing is courtesy of Keller Williams Space Coast.

Real Estate and Luxury homes in Melbourne Beach, Merritt Island, Cocoa Beach, Lansing Island, Tortoise Island, Vero Beach, Barefoot Bay, Cape Canaveral, Cocoa, Grant Valkaria, Indialantic, Indian Harbour Beach, Malabar, Melbourne, Palm Bay, Rockledge, Satellite Beach, Titusville, West Melbourne and surrounding areas in Brevard and Central Florida.
Property Listing Data contained within this site is the property of Brevard MLS and is provided for consumers looking to purchase real estate. Any other use is prohibited. We are not responsible for errors and omissions on this web site. All information contained herein should be deemed reliable but not guaranteed, all representations are approximate, and individual verification is recommended.